Gordon Road, Whitehall, Bristol, BS5 7DR

£35,000 Per Annum - To Let

  • 2,990 ft² (278m²)
  • Modern Unit
  • LED Lighting
  • Air Conditioning
  • Full Height Roller Shutter Accesss
  • New Lease Available.



Share:

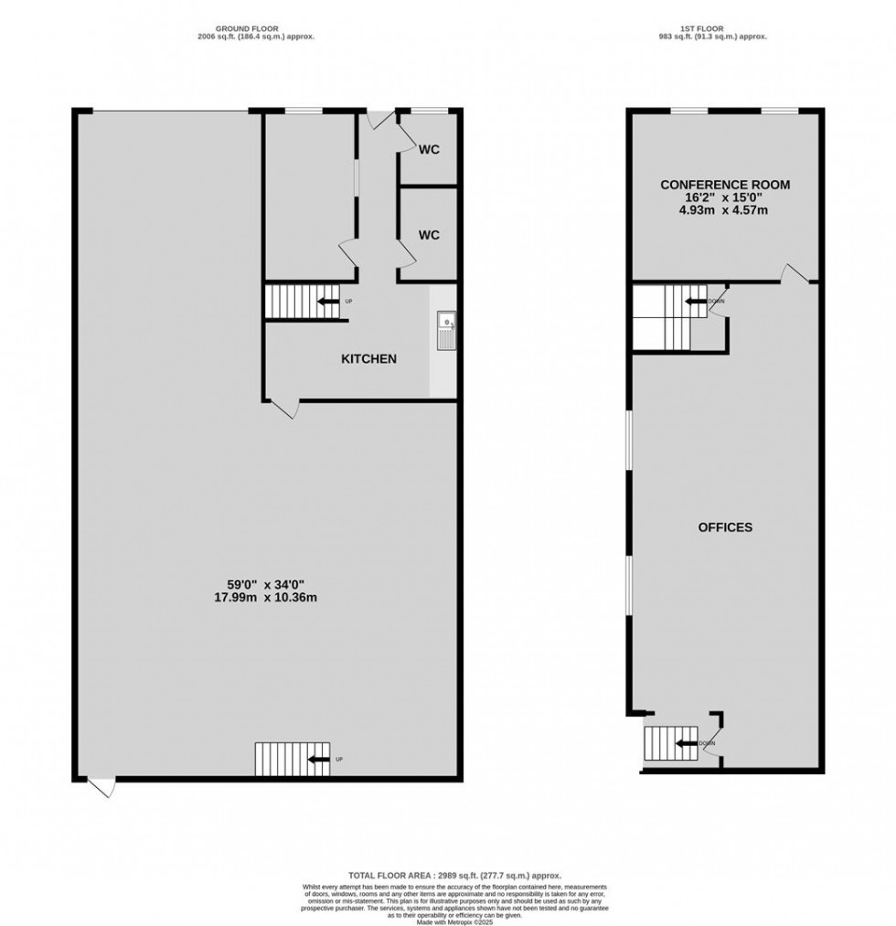
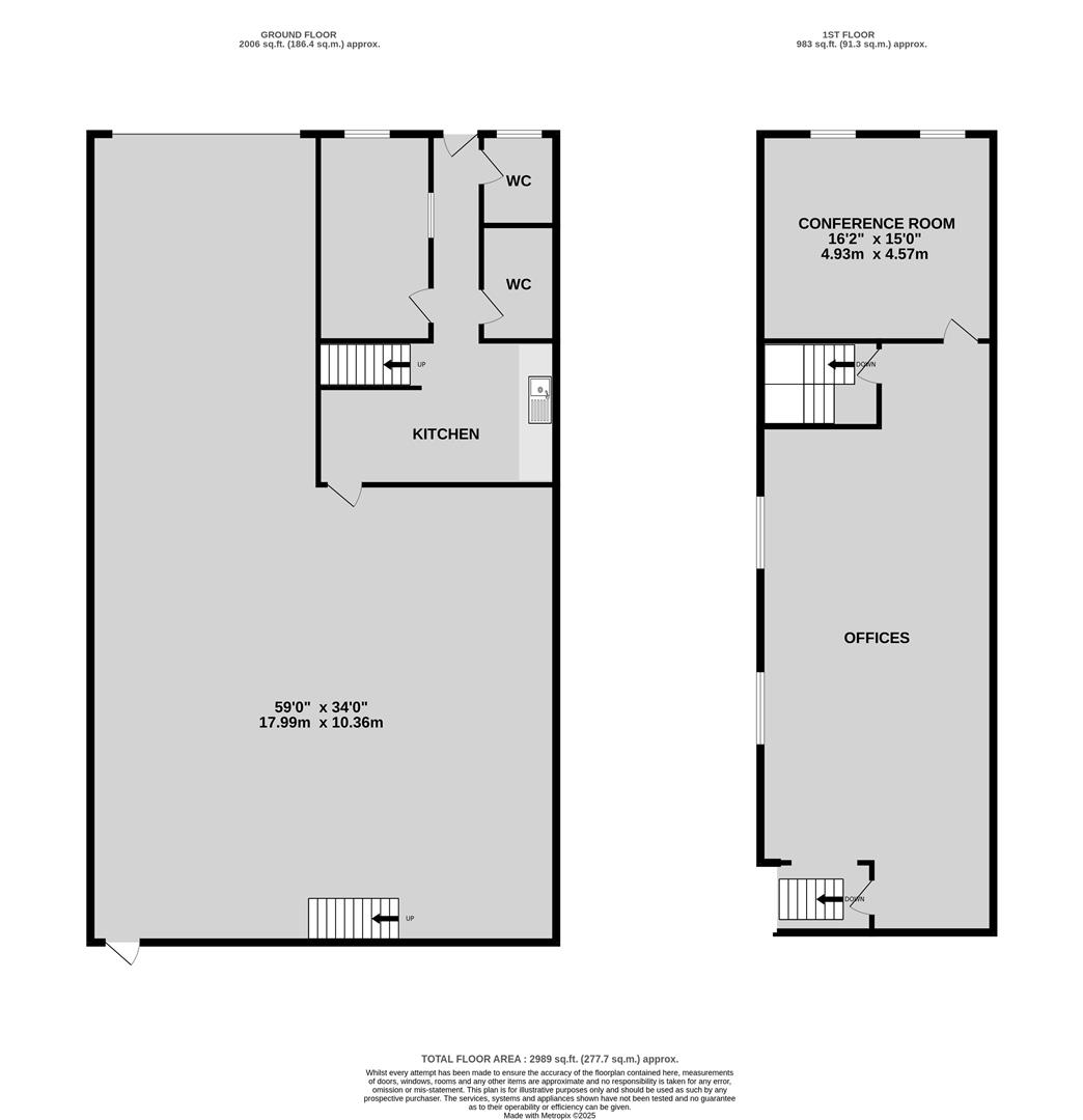
A modern industrial unit of just under 3,000 ft². The ground floor is arranged as a unit with roller shutter access with reception/office, kitchen and toilet facilities. The first floor provides further office accommodation. The unit benefits from benefiting from air conditioning, electric panel heating, and LED lighting and allocated parking.

The unit is located in an established business park in Whitehall, providing easy reach of the M32. The unit is available to let on a new fully repairing and insuring basis.

DESCRIPTION -

A modern unit of approximately 2,990 ft² (278m²) arranged as a ground floor unit with roller shutter access, with kitchen, office and toilet facilities. The first floor provides further office accommodation. The unit benefits from air conditioning, electric panel heating, LED lighting and allocated parking.

LOCATION -

The unit is located in Eastpark Trading Estate just off Gordon Road in Whitehall in East Bristol.

BUSINESS RATES -

The rateable value with effect from April 2023 is £17.250.

ENERGY PERFORMANCE CERTIFICATE (EPC) -

Rating: D

VAT -

All figures quoted are exclusive of VAT unless otherwise stated.

LEASE DETAILS -

The units is available to let on a new fully repairing and insuring basis, subject to estate service charge, further details available on request. Each party to incur their own respective legal fees.

FLOOR PLAN -

The floor plan is provided for indicative purposes only and should not be relied upon.

TENANT APPLICATION FEE -

The ingoing tenant will be charged an application fee of £300 plus VAT (£360 inc VAT) towards the costs incurred in undertaking appropriate credit and reference checks. Accounts will be requested where available and a deposit and/or personal guarantee may be required.

VIEWINGS -

viewings are strictly by appointment with Maggs & Allen.

CODE FOR LEASING BUSINESS PREMISES -

We advise all interested parties to refer to the RICS Code for Leasing Business Premises, link available via our website.

CONTROL OF ASBESTOS REGULATIONS -

As per the Control of Asbestos Regulations 2012, the owner or tenant of the property, or anyone else who has control over it and/or responsibility for maintaining it, must comply with the regulations which may include the detection of and/or management of any asbestos or asbestos related compounds contained at the property. Maggs & Allen has not tested or inspected for Asbestos and therefore recommend all interested parties to make their own enquiries.