Whiteladies Road, Clifton, Bristol, BS8 1PB

£80,000 Per Annum - Let Agreed

  • Offices of 1,535 ft² - 3,320 ft²
  • Whiteladies Road
  • Highly Prominent Position
  • New Lease Available
  • Ample Parking Available

***INCENTIVES AVAILABLE***

A stunning four storey period office Head Quarters situated in a highly prominent position in the heart of Clifton, on Whiteladies Road, offering approximately 1,535 ft² - 3,320 ft².

The offices benefit from a significant parking provision and have recently been refurbished and now include new LED lighting and air conditioning throughout.

The offices are located on the junction of St Paul's Road and Whiteladies Road within easy reach of the shops and amenities on Clifton Triangle and Whiteladies Road, and the BBC.

DESCRIPTION -

A stunning four storey period office Head Quarters situated in a highly prominent position in the heart of Clifton, on Whiteladies Road. The offices benefit from two kitchens, shower faculties and a significant parking provision. The property has recently been refurbished to include new LED lighting and air conditioning/HVAC.

The offices are available as a whole or as two separate demises, ranging from approx. 1,535 ft² - 3,320 ft².

LOCATION -

The property is situated in a highly prominent position on the junction of Whiteladies Road and St Paul's Road/Tyndall's Park Road, within close proximity to the BBC, Royal West of England Academy, The Victoria Rooms and Clifton Train Station. the office is also located within easy reach of the shops and amenities of Clifton Triangle and Whiteladies Road.

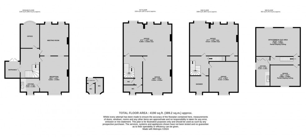
SCHEDULE OF ACCOMODATION (APPROX.) -

Ground Floor & First Floor: Approx 1,785 ft² (166m²)
Second Floor & Top Floor: Approx 1,535 ft² (143m²)

Parking - 10 Tandem parking space are included in the combined offering, although further parking is also available by negotiation.

RENT -

The 4 floors are available to let at £80,00pa.
The ground and first floor offices are available at £40,000pa and the second and third floor at £35,000pa.

BUSINESS RATES -

The Rateable Value with effect from April 2023 is £49,250. This reflects the vale of the 4 floors combined.

ENERGY PERFORMANCE CERTIFICATE (EPC) -

Rating: B valid to July 2035.

FLOOR PLAN -

The floor plan is provided for indicative purposes only and should not be relied upon.

VAT -

All figures quoted are exclusive of VAT unless otherwise stated. We understand the building is opted for VAT and therefore VAT will be applied to the rent.

LEASE DETAILS -

The offices are offered to let on a new internal repairing and insuring basis subject to service charge. Service charge details available on request. Each party to incur their own respective legal fees.

CODE FOR LEASING BUSINESS PREMISES -

We advise all interested parties to refer to the RICS Code for Leasing Business Premises, link available via our website.

TENANT APPLICATION FEE -

The ingoing tenant will be charged an application fee of £300 plus VAT (£360 inc VAT) towards the costs incurred in undertaking appropriate credit and reference checks. Accounts will be requested where available and a deposit and/or personal guarantee may be required.

VIEWINGS -

By appointment.

NOTES -

Please note, the landlord is a connected party to Maggs & Allen.

CONTROL OF ASBESTOS REGULATIONS -

As per the Control of Asbestos Regulations 2012, the owner or tenant of the property, or anyone else who has control over it and/or responsibility for maintaining it, must comply with the regulations which may include the detection of and/or management of any asbestos or asbestos related compounds contained at the property. Maggs & Allen has not tested or inspected for Asbestos and therefore recommend all interested parties to make their own enquiries.

JOINT AGENTS -

Joint Agents with Savills
(Sam Williams / Harry Allen)