Merchants Road, Hotwells, Bristol, BS8 4QD

£13,500 Per Annum - To Let

  • Ground floor shop/office
  • Approximately 600 sq ft
  • Harbourside views
  • Easy access to city centre



Share:

A flexible ground floor commercial unit of approximately 600 sq ft, arranged as an open plan space with a rear office/storage area, kitchenette, and WC. Suitable for a variety of uses including retail, office, or studio. Prominent frontage with good visibility and access. Offered to let on an effectively new full repairing and insuring basis.

DESCRIPTION -

A flexible ground floor commercial unit of approximately 600 sq ft, arranged as an open plan space with a rear office/storage area, kitchenette, and WC. Suitable for a variety of uses including retail, office, or studio. Prominent frontage with good visibility and access.

LOCATION -

The property is situated within the historic Britannia Buildings in Hotwells, offering a highly visible position fronting the River Avon. This sought after waterfront location not only provides picturesque views but also benefits from excellent connectivity to Bristol city centre and surrounding areas

LEASE DETAILS -

The shop/office is available to let on a new Full Repairing and Insuring Lease. Each party to incur their own respective legal fees.

BUSINESS RATES -

The rateable value with effect from April 2023 is £7,700. We therefore would expect those eligible for small business relief to benefit from 100% exemption at this time. However, we advise all interested parties to confirm directly with the local authority.

ENERGY PERFORMANCE CERTIFICATE (EPC) -

EPC rating: E. Valid until 3rd November 2035.

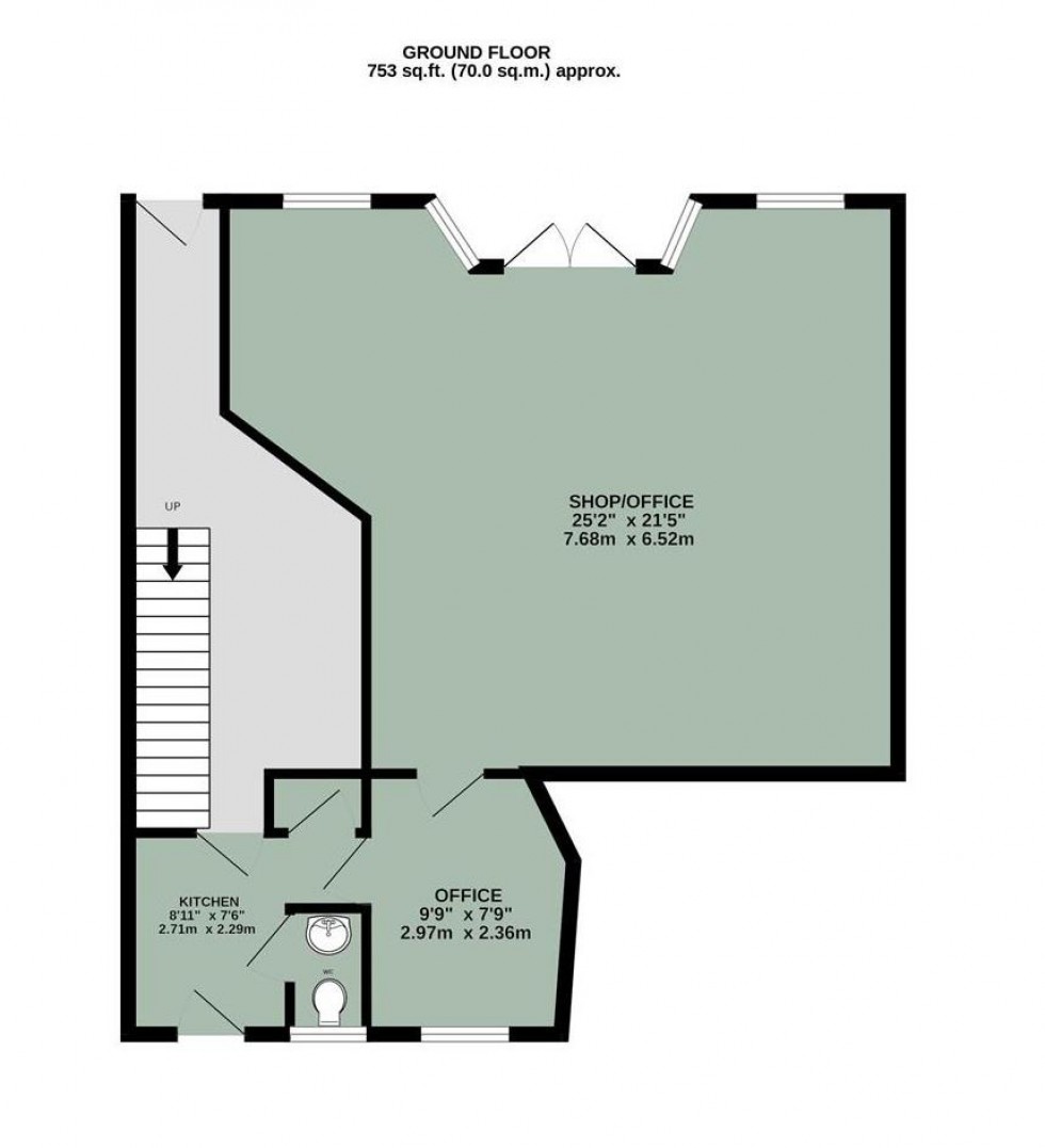
FLOOR PLAN -

The floor plan is provided for indicative purposes only and should not be relied upon.

VAT -

All figures quoted are exclusive of VAT unless otherwise stated.

VIEWINGS -

By appointment.

TENANT APPLICATION FEE -

The ingoing tenant will be charged an application fee of £300 plus VAT (£360 inc VAT) towards the costs incurred in undertaking appropriate credit and reference checks. Accounts will be requested where available and a deposit and/or personal guarantee may be required.

CONTROL OF ASBESTOS REGULATIONS -

As per the Control of Asbestos Regulations 2012, the owner or tenant of the property, or anyone else who has control over it and/or responsibility for maintaining it, must comply with the regulations which may include the detection of and/or management of any asbestos or asbestos related compounds contained at the property. Maggs & Allen has not tested or inspected for Asbestos and therefore recommend all interested parties to make their own enquiries.

CODE FOR LEASING BUSINESS PREMISES -

We advise all interested parties to refer to the RICS Code for Leasing Business Premises, link available via our website.