A two double-bedroom, first floor flat located in a quiet spot within Westbury-on-Trym. Offering generous living space, its own private entrance, ample and off-street parking.
Approach -
From Clover Ground, you will find a communal parking area, which offers off-street parking on a 'first-come, first-serve' basis. A pathway leads from the road to the front of the property; which features a patio front garden and pathway to the front door.
Summary -
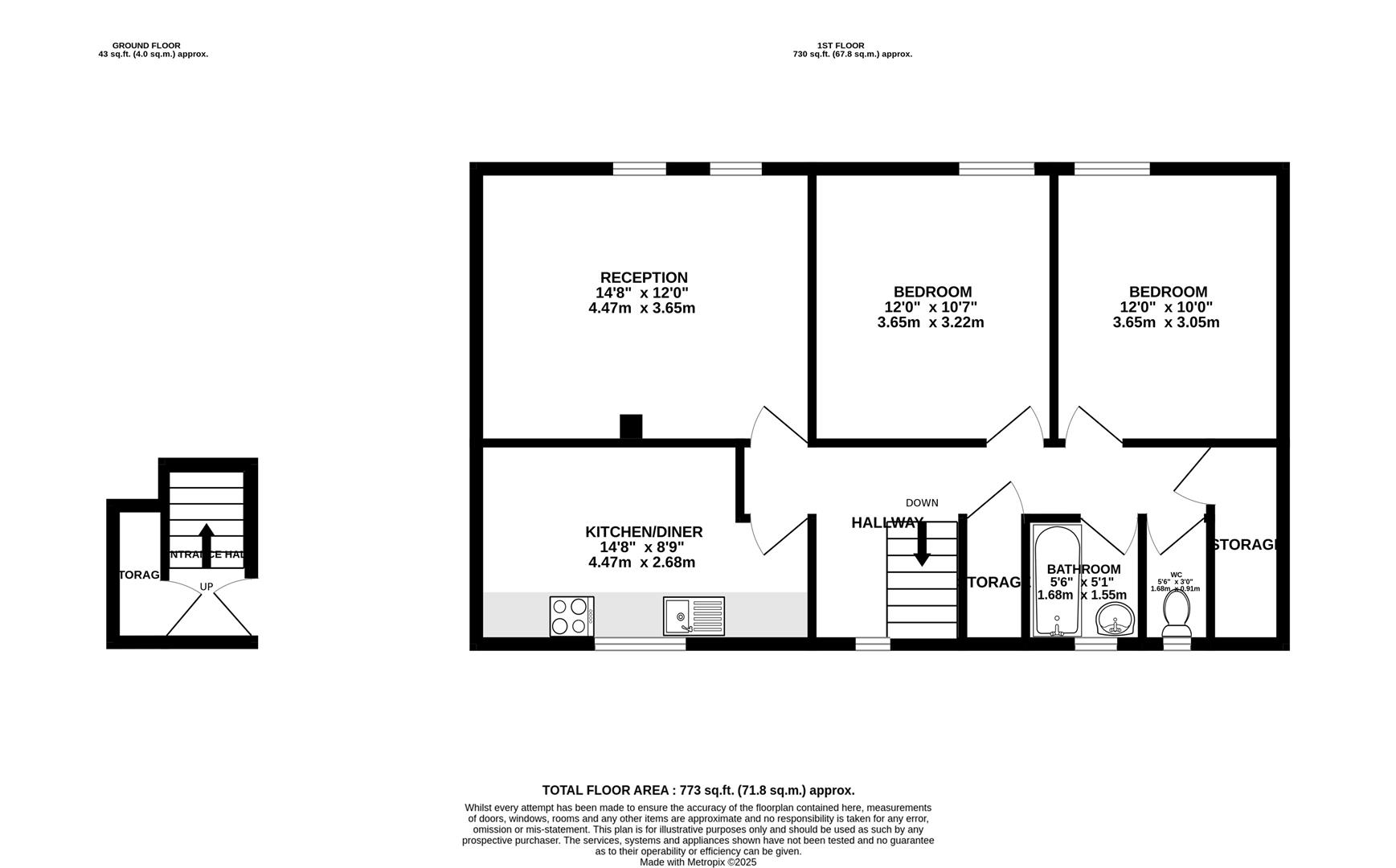
The front door opens into a ground floor entrance hall, with access to a storage cupboard and stairs rising to the main hallway; which is light and spacious; providing access to the accommodation and two very useful storage cupboards.
This in turn leads to a generous lounge, with dual windows overlooking the rear aspect. Adjacent, the kitchen/diner is fitted with a range of wall and base-mounted units with work surfaces, stainless steel sink with drainer and integrated fridge/freezer. Ample space is available for a small dining table.
Both bedrooms are sizeable doubles, offering a clean slate for decoration and windows to the rear aspect.
Also accessed via the main hallway is the bathroom; which encompasses a bath with electric shower over and sink. Next door is a separate WC, which could be knocked through to create a larger family bathroom.
Location -
Westbury-on-Trym is a village on the outskirts of Bristol city centre dating back over a 1000 years. Named after the River Trym running through it, with a strong community feel, centred around The Holy Trinity Church. At the heart of the village is a war memorial where the three main shopping streets converge. The village boasts a good selection of local independent shops as well as cafes, banks, restaurants and family friendly pubs.
The village is ideally suited to the needs of growing families offering excellent local schools including Westbury-on-Trym Church of England Academy, Elmlea Infant School, Elmlea Junior School and Bristol Free School. The jewel in its crown has to be the ever-popular Canford Park - a family friendly recreational space with playground, tennis courts, football pitches and a bowling green.
Well-known for its 1930s architecture and well-sized gardens, Westbury-on-Trym is a stones-throw from open green spaces of The Downs, just 3 miles from the city centre and providing excellent public transport and easy access to the motorway network and Cribbs Causeway shopping centre.
The Ministry of Housing Communities & Local Government have confirmed the housing market remains open.
All of our departments will be open for business as usual but please be assured that stringent measures are being followed to ensure of the safety of all our clients and staff.
We will continue to offer both physical and virtual valuations and viewings for residential, auction, commercial and lettings as will at our full range of RICS surveys.
If we can be of any assistance please get in touch:
Henleaze: 0117 949 9000 Clifton: 0117 973 4940
Residential Stamp Duty Calculator
Calculate Your Stamp Duty
Results
Stamp Duty To Pay:
Effective Rate:
Tax Band
%
Taxable Sum
Tax
* The calculated figures are offered as a guide only. We advise interested parties to seek advice
from their legal representative.
Commercial Stamp Duty Calculator
Calculate Stamp Duty
Results
Stamp Duty To Pay
£0.00
Effective Rate
2%
Tax Band
%
Taxable Sum
Tax
* The calculated figures are offered as a guide only. We advise interested parties to seek advice
from their legal representative.
Do you want to purchase this property prior to the auction?
Complete the form below to submit a pre-auction offer. Please
note that the property will only be removed from the auction once contracts have
been exchanged. Offers can only be submitted once the legal pack is available.