Gloucester Road, Horfield, Bristol, BS7 8TZ

£1,250pcm - Let Agreed

  • Open plan retail unit
  • Approximately 625 sq ft
  • Corner position
  • Electric security shutter



Share:

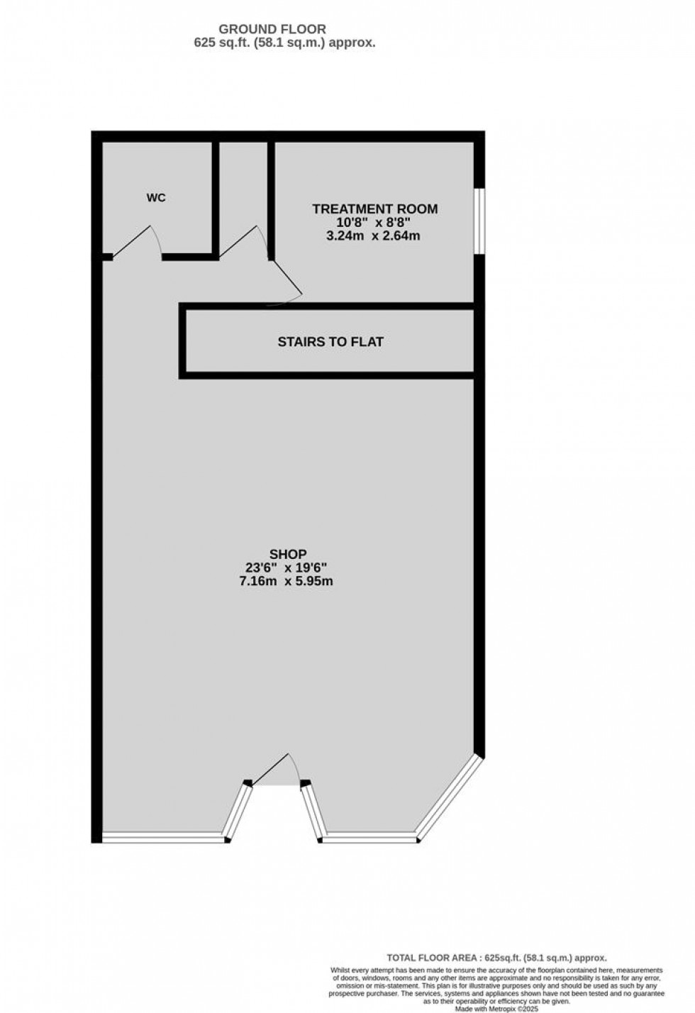
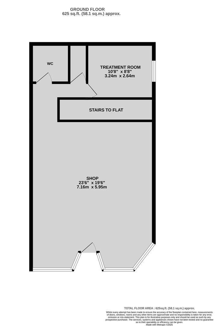
Ground floor retail unit of approximately 625 sq ft (58.1 sq m) located on Gloucester Road, offering a flexible layout suitable for a range of uses. The space is arranged with an open plan retail/showroom area to the front, benefiting from prominent street frontage. To the rear, there is a an office or consultation room, storage and WC. Available to let on a new effectively full repairing and insuring basis.

DESCRIPTION -

Ground floor retail unit of approximately 625 sq ft (58.1 sq m), offering a flexible layout suitable for a range of uses. The space is arranged with an open plan retail/showroom area to the front, benefiting from prominent street frontage. To the rear, there is a an office or consultation room, storage and WC.

LOCATION -

Located on the ever popular Gloucester Road, the premises enjoys a vibrant setting renowned for its eclectic mix of independent businesses and strong local footfall. Nearby occupiers include well established brands such as Grounded Café/Bar and Domino’s Pizza.

LEASE DETAILS -

The offices shop is available to let on a new Full Repairing and Insuring Lease. Each party to incur their own respective legal fees.

BUSINESS RATES -

The rateable value with effect from April 2023 is £9,500. We therefore would expect those eligible for small business relief to benefit from 100% exemption at this time. However, we advise all interested parties to confirm directly with the local authority.

ENERGY PERFORMANCE CERTIFICATE (EPC) -

EPC rating: E - valid until May 2034.

FLOOR PLAN -

The floor plan is provided for indicative purposes only and should not be relied upon.

VAT -

All figures quoted are exclusive of VAT unless otherwise stated.

VIEWINGS -

By appointment.

TENANT APPLICATION FEE -

The ingoing tenant will be charged an application fee of £300 plus VAT (£360 inc VAT) towards the costs incurred in undertaking appropriate credit and reference checks. Accounts will be requested where available and a deposit and/or personal guarantee may be required.

CONTROL OF ASBESTOS REGULATIONS -

As per the Control of Asbestos Regulations 2012, the owner or tenant of the property, or anyone else who has control over it and/or responsibility for maintaining it, must comply with the regulations which may include the detection of and/or management of any asbestos or asbestos related compounds contained at the property. Maggs & Allen has not tested or inspected for Asbestos and therefore recommend all interested parties to make their own enquiries.

CODE FOR LEASING BUSINESS PREMISES -

We advise all interested parties to refer to the RICS Code for Leasing Business Premises, link available via our website.