Park Row, Clifton, Bristol, BS1 5LJ

£22,500 Per Annum - To Let

  • Very well presented café
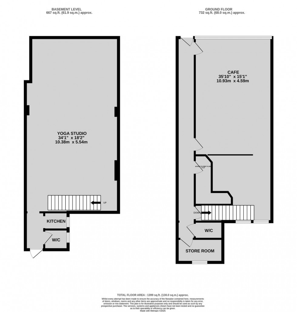
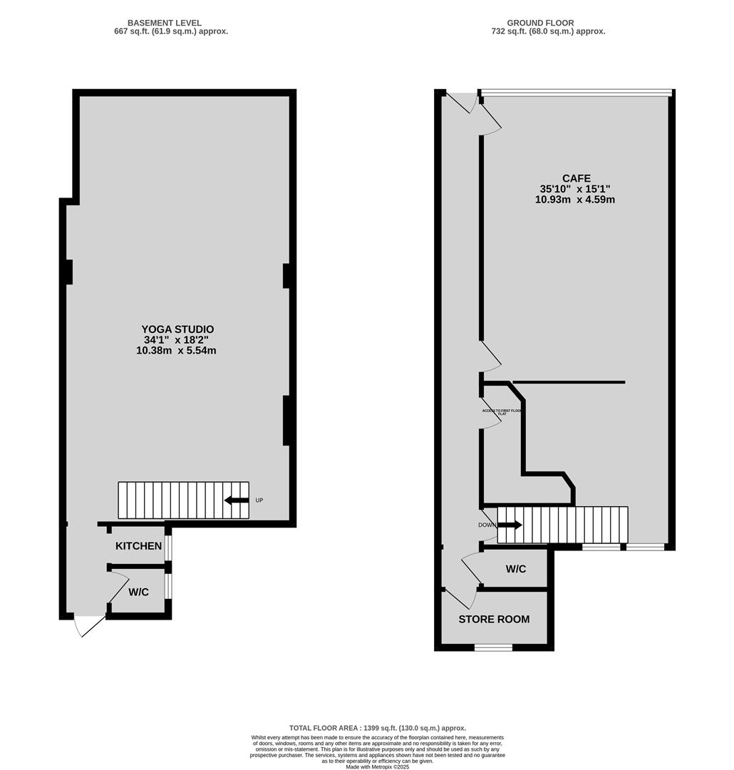
  • Basement - sub let to yoga studio
  • Great location
  • Fully fitted



Share:

Well presented café located on Park Row. The property features a welcoming customer seating and dining area to the front, with a fully fitted commercial kitchen to the rear, suitable for a variety of food and drink offerings.

Additionally, the basement is currently sublet to a yoga studio at £950 per calendar month (inclusive of VAT), providing an attractive supplementary revenue stream.

An excellent opportunity with added income potential.

Please note the lease is subject to an ingoing premium of £60,000 to include fixtures and fittings.

DESCRIPTION -

The property features a welcoming customer seating and dining area to the front, with a fully fitted commercial kitchen to the rear, suitable for a variety of food and drink offerings.

Additionally, the basement is currently sublet to a yoga studio at £950 per calendar month (inclusive of VAT), providing an attractive supplementary revenue stream.

An excellent opportunity with added income potential.

LOCATION -

Occupying a prominent position on Park Row, this property is ideally located within a busy and diverse parade of shops, ensuring strong footfall throughout the day. It benefits from close proximity to major local landmarks, including the Bristol Royal Infirmary, Park Street, and Bristol University.

LEASE DETAILS -

Offered to let by way of assignment of the current tenant's existing lease until February 2027. We understand the lease is granted within sections 24-28 of the landlord and tenant act 1954 and therefore offering security of tenure. Alternatively the landlord would consider a new lease if preferred. The current planning prohibits the café trading after 18:00.

Each party to incur their own legal costs with the landlords legal fees split 50/50 between the assignee and assignor.

INVENTORY / PREMIUM -

A premium of £60,000 is sort to include fixtures and fittings.

ACCOMODATION -

Café: Approximately 473sqft
Store Room - 42sqft
Basement - Approximately 620sqft
plus additional toilets and kitchenette.

FLOOR PLAN -

The floor plan is provided for indicative purposes only and should not be relied upon.

BUSINESS RATES -

The rateable value for the ground floor is £9,600.
The rateable value for the basement is £3,300.

ENERGY PERFORMANCE CERTIFICATE -

EPC rating: E (expires February 2027).

VIEWINGS -

By appointment with Maggs & Allen.

VAT -

We understand that VAT is applicable to the rent.

TENANT APPLICATION FEE -

The ingoing tenant will be charged an application fee of £250 plus VAT (£300 inc VAT) towards the costs incurred in undertaking appropriate credit and reference checks. Accounts will be requested where available and a deposit and/or personal guarantee may be required.

CONTROL OF ASBESTOS REGULATIONS -

As per the Control of Asbestos Regulations 2012, the owner or tenant of the property, or anyone else who has control over it and/or responsibility for maintaining it, must comply with the regulations which may include the detection of and/or management of any asbestos or asbestos related compounds contained at the property. Maggs & Allen has not tested or inspected for asbestos and therefore recommend all interested parties to make their own enquiries.

CODE FOR LEASING BUSINESS PREMISES -

We advise all interested parties to refer to the RICS Code for Leasing Business Premises, link available via our website.