Flat 8, Vision, 17 North View, Westbury Park, Bristol, BS6 7PT

£330,000 - Sold Subject to Contract

2 1 1
  • Constructed in 2013
  • A modern, two double bedroom apartment
  • Located on the second floor, with lift access
  • Approx 27ft. open-plan living space with Juliet balcony
  • High-quality fittings throughout
  • Secure private parking with electric gates
  • Located on a popular road within Westbury Park, close to amenities and transport links



Share:

A beautiful example of a modern, two double bedroom apartment situated close to amenities within Westbury Park. Constructed in 2013, the property boasts spacious, contemporary accommodation, open-plan living and secure underground parking.

Approach -

From North View, a communal door with video intercom system opens to a communal hallway; where you will find stairs rising to the second floor, as well as lift access.

The property boasts a secure, underground parking space, accessed via electric gates.

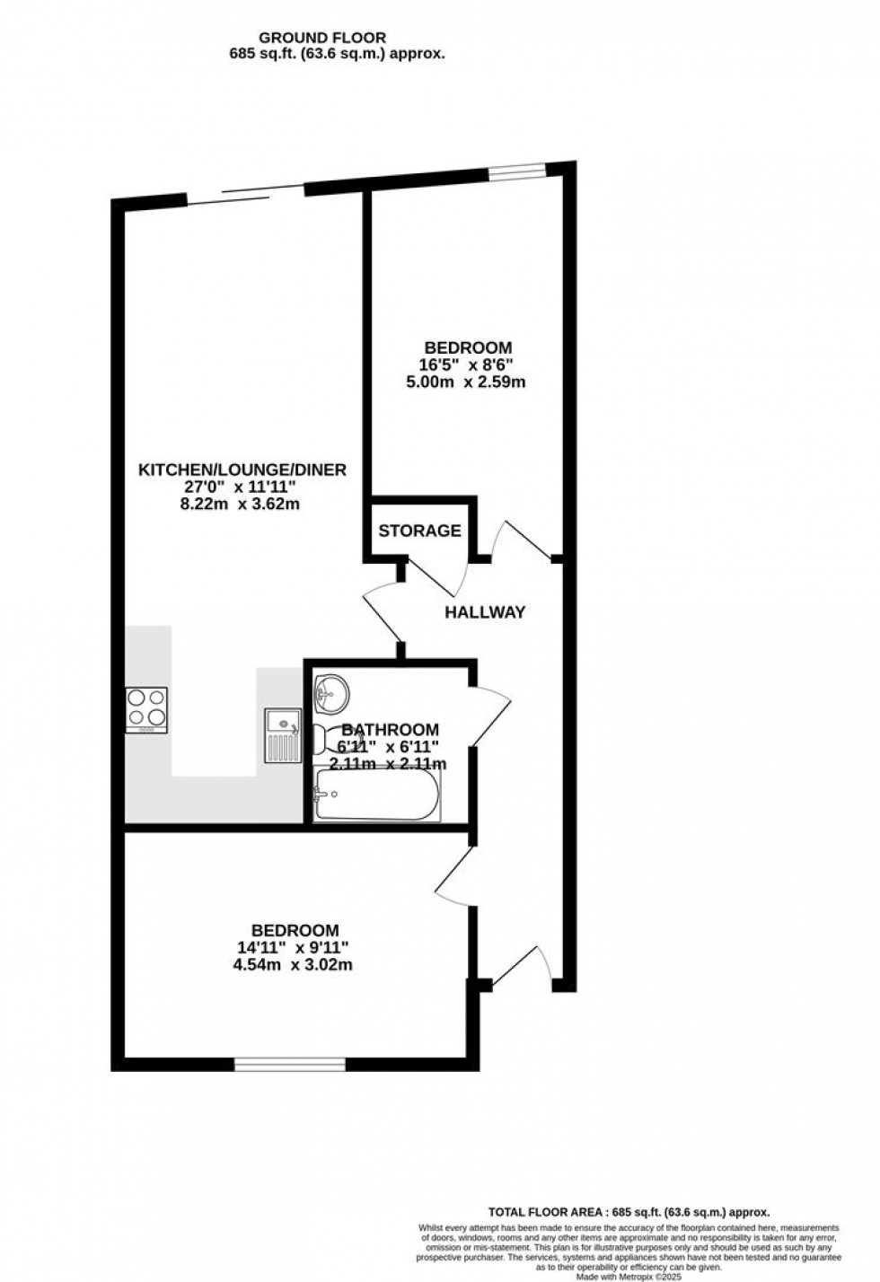
Accommodation -

From the communal corridor, the front door opens into a spacious entrance hall, with solid oak flooring throughout, which provides access to a useful storage cupboard and in turn the principal rooms.

Towards the end of the hall, you will find an approx. 27ft open-plan living space; flooded with natural light and providing ample space for living and dining. Also benefiting from solid oak flooring, this space also boasts a Juliet balcony overlooking North View.

The kitchen is beautifully-fitted; comprising a range of wall and base-mounted units with high-gloss fronts and black granite work surfaces. Integrated appliances include a dishwasher, washing machine, electric oven, electric hob with extractor and an undermount sink with draining grooves.

Both bedrooms are sizeable doubles, with carpeted floors and offering ample space for wardrobes and furniture.

The bathroom encompasses a contemporary, three-piece suite of large bath with mains shower over, toilet and sink. The walls and floor are fully tiled, offering a high-quality feel throughout.

Location -

Westbury Park is a charming residential neighbourhood known for its Victorian architecture and family-friendly atmosphere. The area features well-maintained homes and gardens, creating a picturesque suburban setting.

Residents enjoy the community feel with local schools, parks, and amenities within easy reach. Coldharbour Road and North View are nearby and offer an array of shops, cafes, restaurants and other independent business including Little French and Lavender.

Green spaces like Redland Green and Durdham Downs provide opportunities for outdoor activities, contributing to the neighbourhood’s appeal. Well-connected to Bristol's city centre, Westbury Park maintains a peaceful residential character while ensuring convenient access to amenities and

EPC Graph for North View | Westbury Park