Park Street, Bristol, BS1 5JN

£4,167pcm - Let Agreed

  • Restaurant Premises
  • Park Street, BS1
  • Includes Basement/Part First Floor
  • Large Commercial Kitchen
  • No Ingoing Premium
  • New Lease Available



Share:

An exceptional opportunity to lease a restaurant premises located in a prime trading position on Park Street, BS1. The premises measures approximately 2,500 ft² and is arranged predominantly over ground floor, with additional part first floor and basement. The unit benefits from a large commercial kitchen with commercial extraction, a rear courtyard garden, and was previously arranged as a restaurant with additional karaoke rooms.

The unit is available to let, without an ingoing premium, on a new effectively fully repairing and insuring basis.

DESCRIPTION -

An exceptional opportunity to lease a restaurant premises located in a prime trading position on Park Street, BS1. The premises measures approximately 2,500 ft² and is arranged predominantly over ground floor, with additional part first floor and basement. The unit benefits from a large commercial kitchen with commercial extraction, a rear courtyard garden, and was previously arranged as a restaurant with additional karaoke rooms. The unit is available to let, without an ingoing premium, on a new effectively fully repairing and insuring basis.

LOCATION -

The unit is located in a prime trading position on Park Street opposite Nando's.

BUSINESS RATES -

The rateable value with effect from April 2023 is £27,250pa.

ENERGY PERFORMANCE CERTIFICATE (EPC) -

Rating: B

VAT -

All figures quoted are exclusive of VAT unless otherwise stated. We understand the property is opted for VAT and therefore VAT will be applied to the rent.

LEASE DETAILS -

The premises are available to let on an effectively fully repairing and insuring basis. Each party to incur their own respective legal fees.

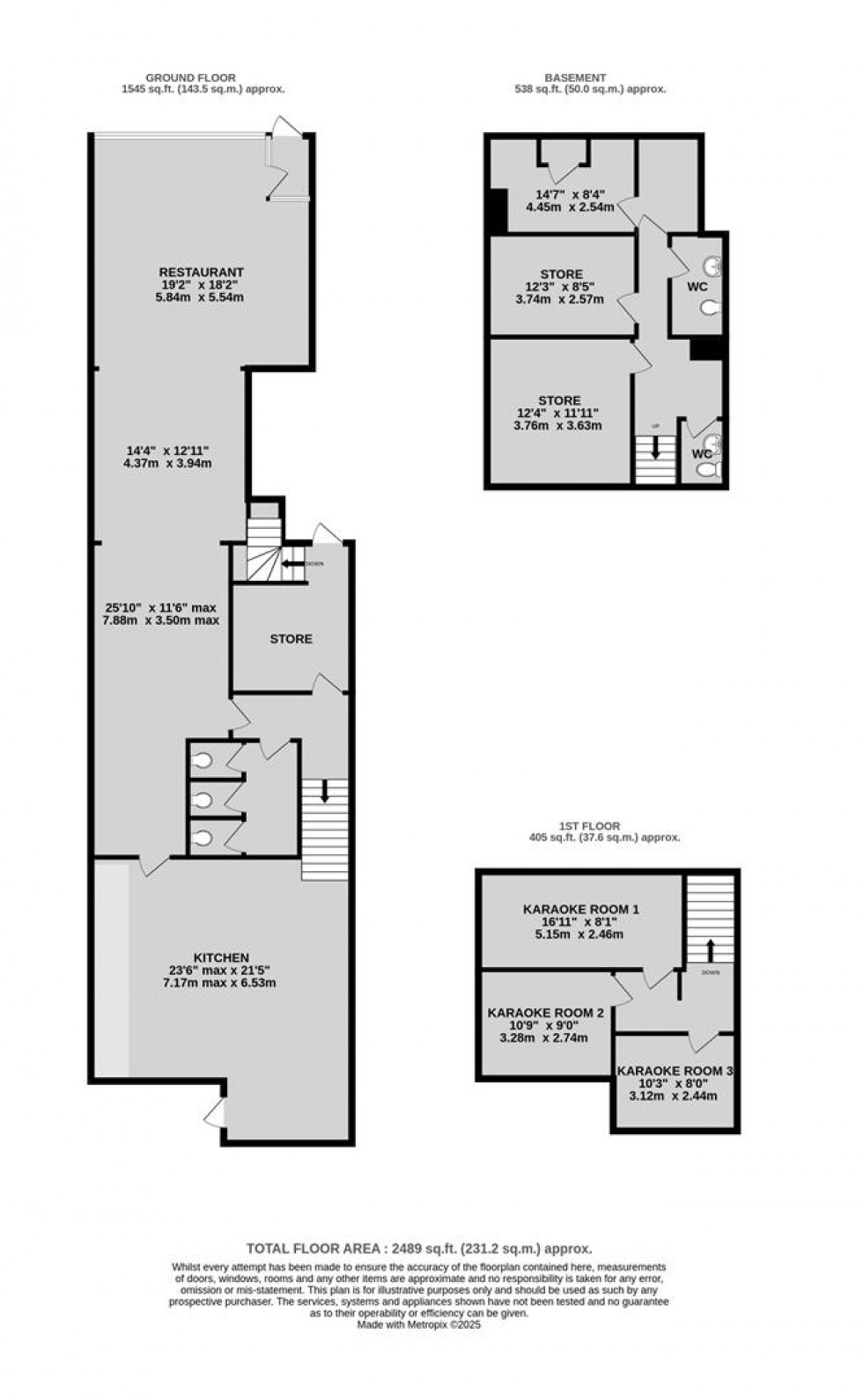
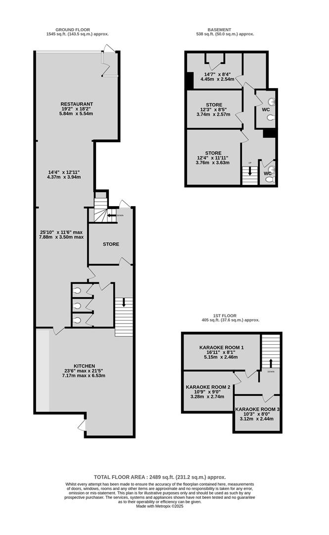
FLOOR PLAN -

The floor plan and floor areas are provided for indicative purposes only and should not be relied upon.

VIEWINGS -

By appointment.

ACCOMODATION -

GROUND FLOOR -

Approx. 1,545 ft² (143.5m²) arranged as restaurant, customer toilets, kitchen and stores.

FIRST FLOOR -

Approx. 405 ft² (37.6m²) arranged as three karaoke rooms.

BASEMENT -

Approx. 538 ft² (50m²) providing further former karaoke rooms and stores and toilet facilities.

OUTSIDE -

To the rear of the property is a large enclosed courtyard garden and further storage shed.

TENANT APPLICATION FEE -

The ingoing tenant will be charged an application fee of £300 plus VAT (£360 inc VAT) towards the costs incurred in undertaking appropriate credit and reference checks. Accounts will be requested where available and a deposit and/or personal guarantee may be required.

CONTROL OF ASBESTOS REGULATIONS -

As per the Control of Asbestos Regulations 2012, the owner or tenant of the property, or anyone else who has control over it and/or responsibility for maintaining it, must comply with the regulations which may include the detection of and/or management of any asbestos or asbestos related compounds contained at the property. Maggs & Allen has not tested or inspected for Asbestos and therefore recommend all interested parties to make their own enquiries.