Soundwell Road, Soundwell, Bristol, BS16 4RP

£12,000 Per Annum - Let Agreed

  • Approximately 500 ft²
  • Commercial Kitchen Extraction
  • Prominent Corner Position
  • Ideal for Retailer / Cafe
  • New Lease Available



Share:

A former café of approximately 500 ft² arranged as a seating area with kitchen (with commercial extraction) and wc to the rear. The shop benefits from a prominent corner position, located within close proximity to Kingswood Leisure Centre, and is available to let as a retail unit or cafe on a new and effectively fully repairing and insuring basis.

DESCRIPTION -

A former café of approximately 500 ft² arranged as a seating area with kichen (with commercial extraction) and wc to the rear. The unit is available to let as a retail unit or cafe, but restaurant/takeaway will not be considered.

LOCATION -

the unit benefits from a prominent corner position on Soundwell Road, from great road presence occupying a corner position on Soundwell Road within close proximity to the Kingswood Leisure centre.

LEASE DETAILS -

The shop is available to let on a new effectively fully repairing and insuring basis. Each party to incur their own legal costs.

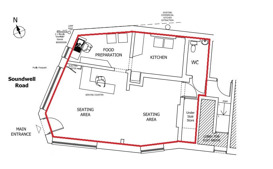
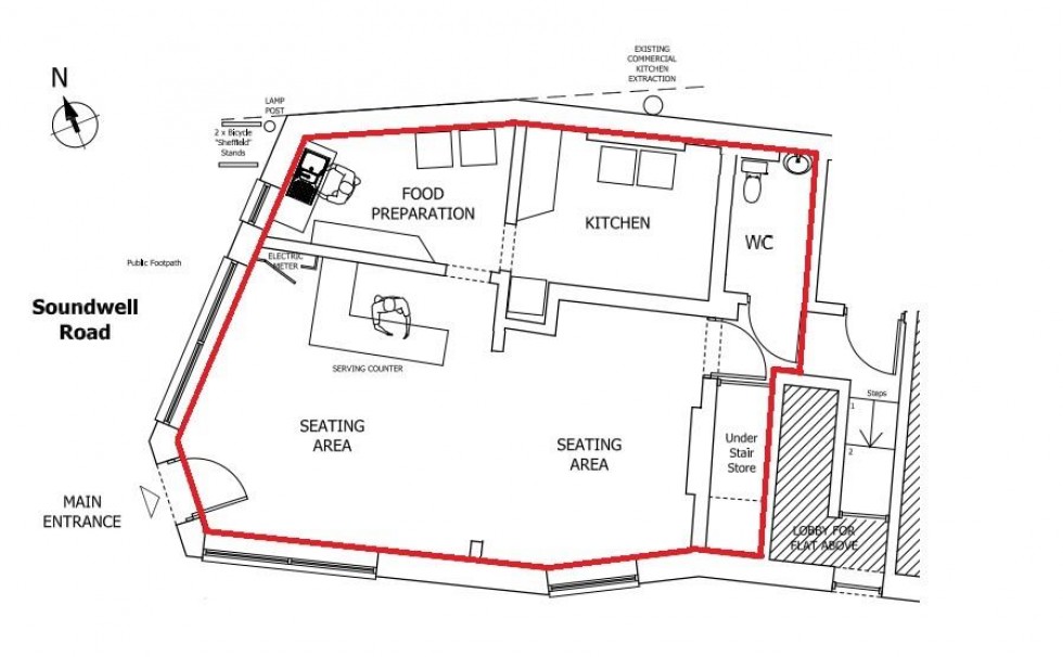
FLOOR PLAN -

The floor plan and floor areas are provided for indicative purposes only and should not be relied upon.

BUSINESS RATES -

The rateable value effective from April 2023 is £14,250. However, this appears to include an addition unit to the rear which is not included in the demise, and therefore will need to be re-rated by the VOA.

ENERGY PERFORMANCE CERTIFICATE -

EPC rating: TBC

VAT -

All figures quoted are exclusive of VAT unless otherwise stated.

VIEWING -

Strictly by appointment with Maggs & Allen.

TENANT APPLICATION FEE -

The ingoing tenant will be charged an application fee of £300 plus VAT (£360 inc VAT) towards the costs incurred in undertaking appropriate credit and reference checks. Accounts will be requested where available and a deposit and/or personal guarantee may be required.

CONTROL OF ABSESTOS REGULATIONS -

As per the Control of Asbestos Regulations 2012, the owner or tenant of the property, or anyone else who has control over it and/or responsibility for maintaining it, must comply with the regulations which may include the detection of and/or management of any asbestos or asbestos related compounds contained at the property. Maggs & Allen has not tested or inspected for asbestos and therefore recommend all interested parties to make their own enquiries.

CODE FOR LEASING BUSINESS PREMISES -

We advise all interested parties to refer to the RICS Code for Leasing Business Premises, link available via our website.