44, High Street, Bristol, BS1 2AZ

Asking Price £500,000 - For Sale

  • Freehold Commercial Investment
  • Let at £40,000pa to 2031.
  • Let to an Established Dental Practice
  • Rent Review Due Feb 2026
  • Bristol City Centre



Require Finance?

Compare Property Finance from over 100 lenders
Click HERE to start your search

A representive from South West Business Finance will contact you to discuss your options



Share:

An opportunity to purchase a Grade II Listed freehold commercial investment property located in Bristol city centre. The premises are let to an established Dental Practice at a total rent of £40,000pa +VAT until 2031.

The tenant has completed a refurbishment of the ground floor which is presented to a high specification, with further surgeries and offices on the upper floors. The upper floors also offer long term potential for residential conversion.n.

DESCRIPTION -

An opportunity to purchase a Grade II Listed freehold property located in Bristol city centre. The premises are let to an established Dental Practice at a total rent of £40,000pa +VAT until 2031. The tenant has completed a refurbishment of the ground floor which is presented to a high specification, with further surgeries and offices on the upper floors. The upper floors also offer long term potential for residential conversion.

LOCATION -

The property is located in a prominent position in Bristol City Centre, close to Bristol Bridge and Baldwin Street.

BUSINESS RATES -

Ground Floor - Rateable Value of £17,500.
Upper Floors - Rateable Value of £15,500
(with effect from April 2023).

ENERGY PERFORMANCE CERTIFICATE (EPC) -

Ground Floor: E (valid to September 2028)
First, Second & Third Floors: E (valid to October 2025).

VAT -

All figures quoted are exclusive of VAT unless otherwise stated. We understand the property is opted for VAT and therefore VAT will be applied to the purchase price, although we expect the transaction could be treated as a Transfer Of a Going Concern.

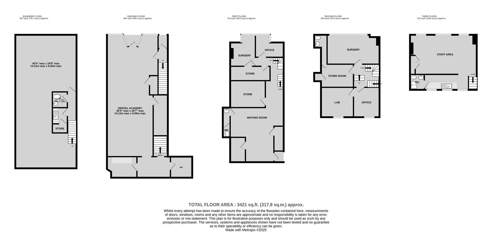
FLOOR PLAN -

The floor plan is provided for indicative purposes only and should not be relied upon.

VIEWINGS -

Viewings are stictly by appointment with Maggs & Allen.

TENURE -

The property is offered for sale on a freehold basis, subject to the occupational leases.

LEASE DETAILS -

The ground floor is let to Cinal Limitedo to December 2031 at £25,000+VAT pa. The lease is drawn on an internal repairing and insuring basis and is subject to 5 yearly upward only rent reviews and a 2 months lease deposit.

The basement is mostly retained by the landlord for storage but will be offered for sale with vacant possession.

The upper floors are let on a separate lease to Cinal Limited (with a Director's guarantee) on a 15 year lease from February 2016 (to 20th December 2031) at a passing rent of £15,000pa+VAT. the lease is drawn on an effectively fully repairing and insuring basis and is also subject to 5 yearly rent reviews. A rent review is due February 2026.

The property is therefore let producing a total rent of £40,000+VAT per annum, although offers potential to increase.

CONTROL OF ASBESTOS REGULATIONS -

As per the Control of Asbestos Regulations 2012, the owner or tenant of the property, or anyone else who has control over it and/or responsibility for maintaining it, must comply with the regulations which may include the detection of and/or management of any asbestos or asbestos related compounds contained at the property. Maggs & Allen has not tested or inspected for Asbestos and therefore recommend all interested parties to make their own enquiries.