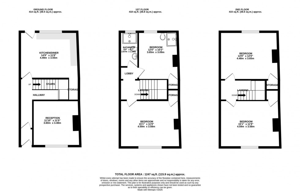
Spanning three levels, this four-bedroom property provides flexible, spacious living space that can easily adapt to the needs of a growing family. The home also benefits from a private garden and rear parking, offering a rare blend of city convenience and privacy.
Summary -
Upon entering the ground floor, you are welcomed by a bright living room to the right and a stunning kitchen-diner to the rear. This fantastic open-plan space is ideal for modern family living.
The first floor hosts two generous double bedrooms, including one with a contemporary en-suite, alongside a stylish family bathroom. The top floor provides a further two large double bedrooms, both offering plenty of space and flexibility to suit a variety of needs.
Outside, the property boasts a private, tiered rear garden, which provides an excellent space for relaxing or entertaining. Offering a wonderful opportunity to secure a spacious home in a fantastic location, this home is a must-see for families.
Location -
Situated in the heart of Montpelier, the property is perfectly positioned for a fantastic lifestyle. The popular Picton Street and Cheltenham and Gloucester Road are on your doorstep, offering a fantastic selection of independent shops, cafés, and restaurants. For green open spaces, St Andrews Park is also a short walk away.
Excellent transport links are available with a rail connection to Clifton, Redland, and Bristol Temple Meads within a few hundred yards. This is complemented by a number of useful bus routes along Cheltenham Road.
Schools -
E-Act the Dolphin School - Distance: 0.1 miles Montpelier High School - Distance: 0.18 miles Fairlawn Primary School - Distance: 0.32 miles Cotham Gardens Primary School - Distance: 0.47 miles
The Ministry of Housing Communities & Local Government have confirmed the housing market remains open.
All of our departments will be open for business as usual but please be assured that stringent measures are being followed to ensure of the safety of all our clients and staff.
We will continue to offer both physical and virtual valuations and viewings for residential, auction, commercial and lettings as will at our full range of RICS surveys.
If we can be of any assistance please get in touch:
Henleaze: 0117 949 9000 Clifton: 0117 973 4940
Residential Stamp Duty Calculator
Calculate Your Stamp Duty
Results
Stamp Duty To Pay:
Effective Rate:
Tax Band
%
Taxable Sum
Tax
* The calculated figures are offered as a guide only. We advise interested parties to seek advice
from their legal representative.
Commercial Stamp Duty Calculator
Calculate Stamp Duty
Results
Stamp Duty To Pay
£0.00
Effective Rate
2%
Tax Band
%
Taxable Sum
Tax
* The calculated figures are offered as a guide only. We advise interested parties to seek advice
from their legal representative.
Do you want to purchase this property prior to the auction?
Complete the form below to submit a pre-auction offer. Please
note that the property will only be removed from the auction once contracts have
been exchanged. Offers can only be submitted once the legal pack is available.