Land Opposite, 85, Kingsdown Parade, Cotham, BS6 5UJ

Auction Guide £225,000 - Sold

  • SOLD FOR £245,000 - September Auction
  • Building Plot In Prime Location
  • Level parcel of land
  • Full planning for 3 bedroom house
  • Provision for off street parking
  • Highly desirable location
  • Very Rare Opportunity



Require Finance?

Compare Property Finance from over 100 lenders
Click HERE to start your search

A representive from South West Business Finance will contact you to discuss your options



Share:

Rare Development Opportunity – Planning Granted for 3-Bedroom House

A unique opportunity to acquire a level building plot with full planning permission granted for the construction of a 3-bedroom house featuring off-street parking for two vehicles to the front.

The site extends to approximately 0.05 acres (2,081 sq ft) and is ideally suited to builders and developers seeking a well-located project in a popular residential area.

We are advised by our client that a material start to the foundations has already been made, ensuring that the planning permission remains.

Opportunities of this nature are rare in this location, making early interest highly recommended.

FOR SALE BY AUCTION -

This property is due to feature in our online auction on 18 September 2025 at 6.00pm. Bidding is via proxy, telephone or online remote bidding.

VIEWINGS -

By appointment.

SUMMARY -

SOLD FOR £245,000 LAND WITH PLANNING GRANTED FOR 3 BED HOUSE WITH PARKING

DESCRIPTION -

Rare opportunity to purchase a level building plot that has planning granted for a 3 bedroom house with off street parking for two vehicles to the front. The site is approx 0.05 acres (2081sqft) and we understand from our client that a material start to the foundations was made so that the planning has remained live. This is rare opportunity in this location and would be of interest to all builders and developers looking to acquire a site in this popular location.

LOCATION -

Situated in this highly desirable and well-regarded area within the fashionable suburb of Kingsdown and within ½ a mile of the City Centre. There are a wide selection of local amenities. Bristol’s M4/M5 motorway network can be reached from the M32 link road, which is approximately ½ a mile away. A choice of Temple Meads and Parkway main line railway stations offer direct access to London’s Paddington and are both located within three miles.

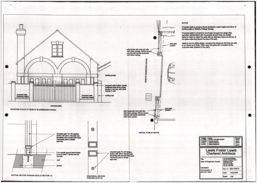
PLANNING -

Planning granted 3.7.1996
Application No: 1372F/95C to demolish and construct small dwelling.

Our client has advised us that a material start was made by laying the foundations to keep the planning consent live.

Please refer to the legal pack for further information.

COMPLETION -

Completion for this lot will be 6 weeks from exchange of contracts or sooner by mutual agreement.

SITE PLAN -

The site plan is provided for indicative purposes only, please refer to the title plan within the legal pack for confirmation of the site boundaries.

TENURE -

To be confirmed within the legal pack.

AUCTION OR BRIDGING FINANCE REQUIRED? -

Do you need a mortgage or loan quickly? Maggs & Allen have specialist Independent Brokers who can arrange residential and commercial finance on all types of property. Contact the Auction Team today to be put through to our mortgage and loan experts on 0117 9734940 or email admin@maggsandallen.co.uk

BUYER'S PREMIUM -

Please be advised that all purchasers are subject to a £1,800 plus VAT (£2,160 inc VAT) buyer’s premium payable upon exchange of contracts.

*GUIDE PRICE -

Guide Prices are provided as an indication of each seller's minimum expectation. They are not necessarily figures which a property will sell for and may change at any time prior to the auction. Each property will be offered subject to Reserve Price (a figure below which the Auctioneer cannot sell the property during the auction) which we expect will be set within the Guide Range or no more than 10% above a single figure Guide.

RESERVE PRICE -

The seller's minimum acceptable price at auction and the figure below which the auctioneer cannot sell. The reserve price is not disclosed and remains confidential between the seller and the auctioneer. Both the guide price and the reserve price can be subject to change up to and including the day of the auction.

PROXY, TELEPHONE & ONLINE REMOTE BIDDING -

The auction will be held online via live video stream with buyers able to bid via telephone, online or by submitting a proxy bid. You will need to complete our remote bidding form, which is available to download from our website. The completed form, ID (driving licence or passport and a recent utility bill stating the home address of the purchaser) and a bank transfer for the Preliminary Deposit must be received no later than 24 hours before the date of the auction.

PRELIMINARY DEPOSITS -

The Preliminary Deposit required for each lot you wish to bid for is £5,000.

If you bid is successful, the balance of the deposit monies and Buyer’s Premium (£1,800 plus VAT) must be transferred to our client account within 24 hours of the auction sale. If you are unsuccessful at the auction, your Preliminary Deposit will be returned to you within 5 working days.