Stockwell Drive, Mangotsfield, Bristol, BS16 9DN

£1,000pcm - Let Agreed

  • Retail unit
  • Approximately 464 sq ft
  • Corner position
  • Potential for various uses



Share:

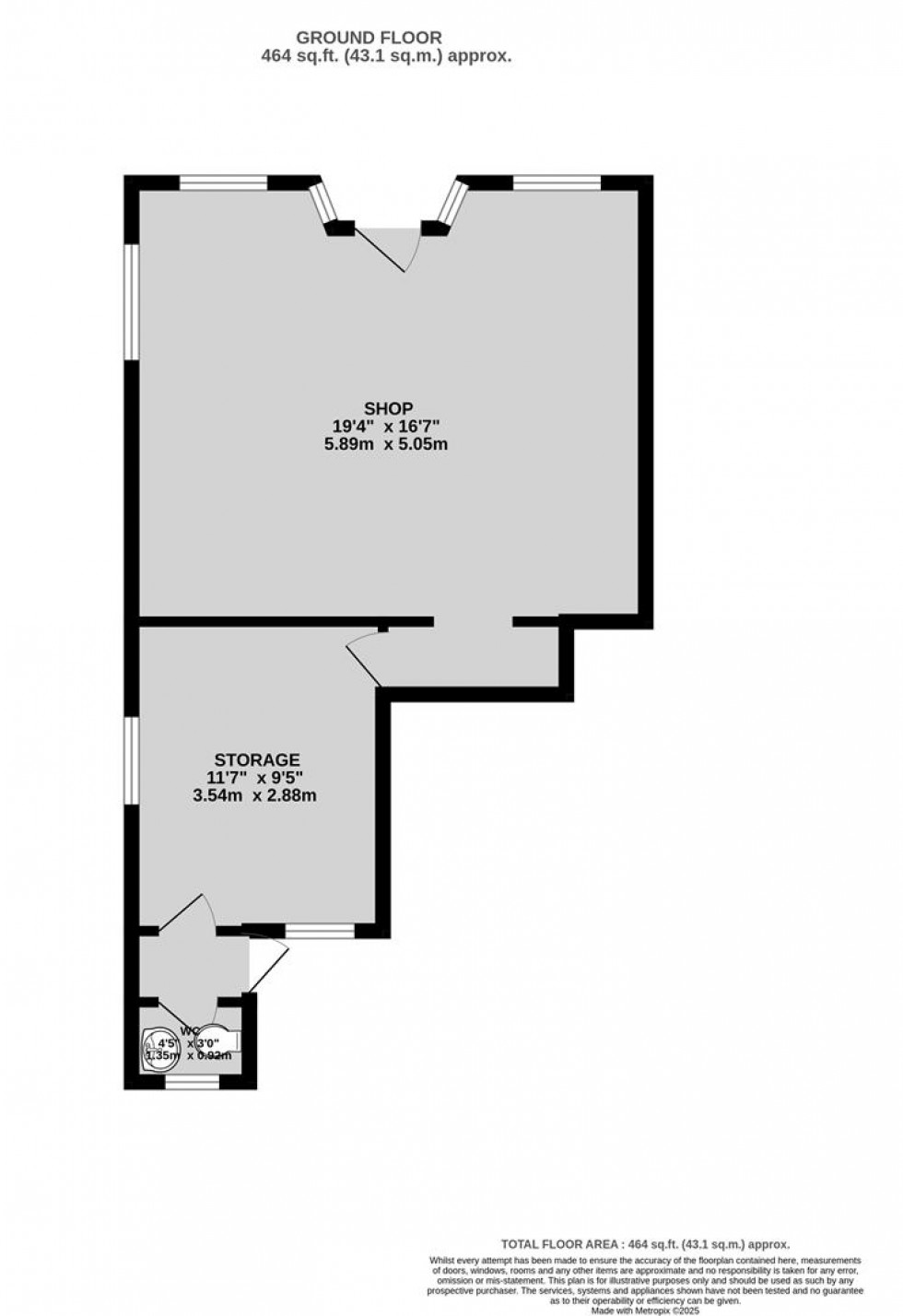
Ground floor retail unit located on Stockwell Drive, Mangotsfield, extending to approximately 464 sq ft (43.1 sq m). Arranged primarily as open plan shop space the premises offers a flexible layout suitable for a variety of commercial uses. The unit also benefits from rear storage area and a WC. The premises would be ideal for businesses within Use Class E – which includes retail, office, café and other commercial uses, subject to consent.

DESCRIPTION -

Ground floor retail unit extending to approximately 464 sq ft (43.1 sq m), arranged primarily as open plan shop space, offering a flexible layout suitable for a variety of commercial uses. The unit also benefits from rear storage area and a WC. The premises would be ideal for businesses within Use Class E – which includes retail, office, café and other commercial uses, subject to consent.

LOCATION -

The property enjoys a highly visible corner position on Stockwell Drive, in the popular area of Mangotsfield.

LEASE DETAILS -

The shop is available to let on a new Full Repairing and Insuring Lease. Each party to incur their own respective legal fees.

BUSINESS RATES -

The rateable value with effect from April 2023 is £4,250. We therefore would expect those eligible for small business relief to benefit from 100% exemption at this time. However, we advise all interested parties to confirm directly with the local authority.

ENERGY PERFORMANCE CERTIFICATE (EPC) -

EPC rating: D

FLOOR PLAN -

The floor plan is provided for indicative purposes only and should not be relied upon.

VAT -

All figures quoted are exclusive of VAT unless otherwise stated.

VIEWINGS -

By appointment with Maggs & Allen.

TENANT APPLICATION FEE -

The ingoing tenant will be charged an application fee of £300 plus VAT (£360 inc VAT) towards the costs incurred in undertaking appropriate credit and reference checks. Accounts will be requested where available and a deposit and/or personal guarantee may be required.

CONTROL OF ASBESTOS REGULATIONS -

As per the Control of Asbestos Regulations 2012, the owner or tenant of the property, or anyone else who has control over it and/or responsibility for maintaining it, must comply with the regulations which may include the detection of and/or management of any asbestos or asbestos related compounds contained at the property. Maggs & Allen has not tested or inspected for asbestos and therefore recommend all interested parties to make their own enquiries.

CODE FOR LEASING BUSINESS PREMISES -

We advise all interested parties to refer to the RICS Code for Leasing Business Premises, link available via our website.