11, The Parade, Hengrove Lane, Bristol, BS14 9DB

Asking Price £165,000 - Sold Subject to Contract

  • Retail unit & large garage
  • Potential rent of £15,000pa
  • Suitable for owner occupiers or investors



Require Finance?

Compare Property Finance from over 100 lenders
Click HERE to start your search

A representive from South West Business Finance will contact you to discuss your options



Share:

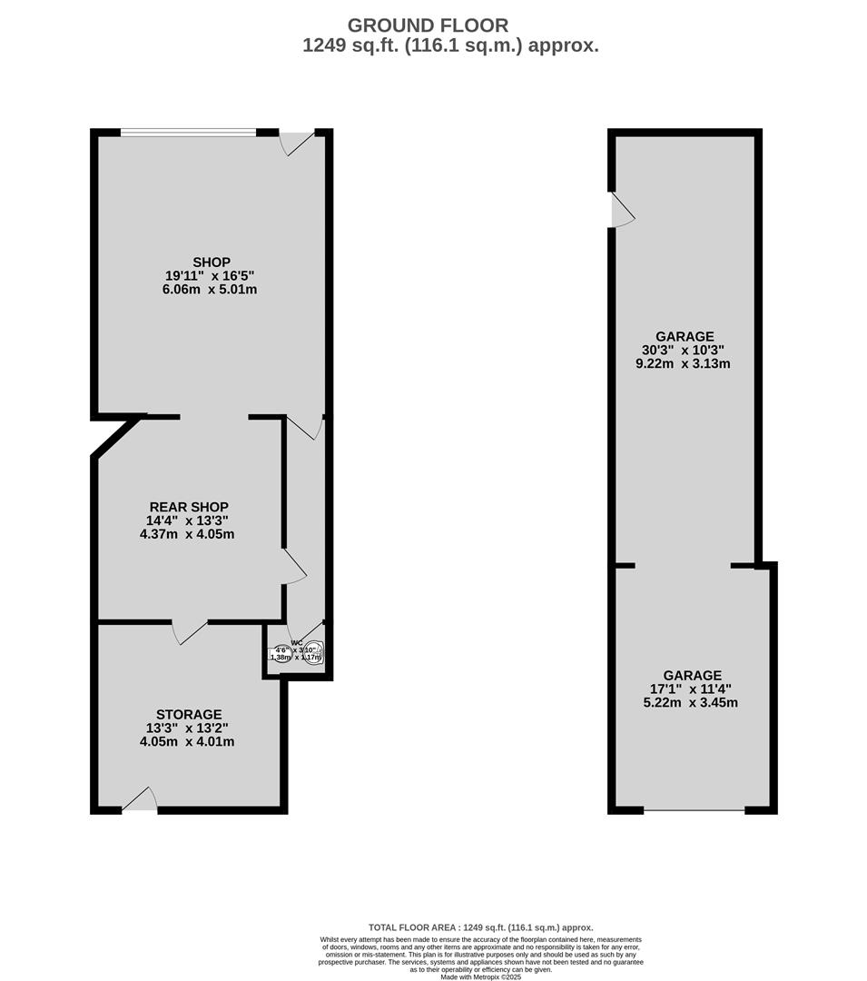
Ground floor retail premises of approximately 744 sq ft of space, arranged as front and rear shop areas with storage and WC facilities. The property is situated on The Parade, Hengrove Lane, positioned within a well established and diverse parade of retail units.

DESCRIPTION -

This ground floor retail premises offers approximately 744 sq ft of space, arranged as front and rear shop areas with storage and WC facilities. To the rear, there's a large extended garage, ideal for additional storage, parking, or potential workshop use.
Suitable for owner occupiers or investors, the property has the potential to generate an annual rental income of approximately £15,000.

LOCATION -

The property is situated on The Parade, Hengrove Lane, positioned within a well established and diverse parade of retail units. The location benefits from excellent visibility, making it well-suited for a range of retail or service oriented occupiers.

TENURE -

Understood to be freehold.

FLOOR PLAN -

The floor plan is provided for indicative purposes only and should not be relied upon.

OUTSIDE -

Large extended garage.

BUSINESS RATES -

The rateable value with effect from April 2023 is £7,200. We therefore would expect those eligible for small business relief to benefit from 100% exemption at this time. However, we advise all interested parties to confirm directly with the local authority.

ENERGY PERFORMANCE CERTIFICATE (EPC) -

EPC rating: D (valid until April 2035).

VAT -

All figures quoted are exclusive of VAT unless otherwise stated.

VIEWINGS -

By appointment with Maggs & Allen.

CONTROL OF ASBESTOS REGULATIONS -

As per the Control of Asbestos Regulations 2012, the owner or tenant of the property, or anyone else who has control over it and/or responsibility for maintaining it, must comply with the regulations which may include the detection of and/or management of any asbestos or asbestos related compounds contained at the property. Maggs & Allen has not tested or inspected for Asbestos and therefore recommend all interested parties to make their own enquiries.