A recently-modernised, one bedroom ground-floor flat situated in Horfield. Offered to the market with no onward chain.
Property Details -
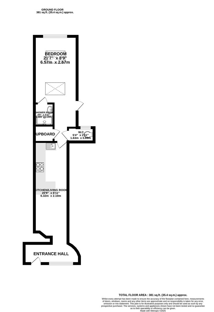
From Bishopthorpe Road, a private front entrance opens straight into a contemporary, open-plan living/kitchen space with wood effect flooring throughout and a window to the front elevation. The kitchen is well-appointed, and comprises a range of wall and base-mounted units with white gloss fronts and wood-effect work surfaces. Integrated appliances include an electric oven, electric hob with extractor over and a stainless steel sink.
From this space, you will find a large double bedroom with access to a WC and shower room, as well as a side door to the rear access.
Location -
Horfield is situated within close proximity to Gloucester Road with its vast array of independent shops, cafes & restaurants including Burra cafe, Pinkmans' Bakery and FED 313, and Bottles & Books.
The area features a blend of tree-lined Victorian streets such as Churchways Avenue, and the 1930’s properties that are emblematic of the area. The open spaces of Muller Road Recreational Ground and Horfield Common are nearby as well as Horfield Leisure Centre and the Memorial Stadium.
Boasting excellent schools, spacious properties, and abundant green spaces, this suburb in North Bristol has gained popularity among both families and young professionals seeking a location just beyond the Bristol City Centre.
Lease Information -
We are advised that there is 117 years remaining on the lease. Annual ground rent is £150 and annual service charge is £1000 which includes building insurance.
The Ministry of Housing Communities & Local Government have confirmed the housing market remains open.
All of our departments will be open for business as usual but please be assured that stringent measures are being followed to ensure of the safety of all our clients and staff.
We will continue to offer both physical and virtual valuations and viewings for residential, auction, commercial and lettings as will at our full range of RICS surveys.
If we can be of any assistance please get in touch:
Henleaze: 0117 949 9000 Clifton: 0117 973 4940
Residential Stamp Duty Calculator
Calculate Your Stamp Duty
Results
Stamp Duty To Pay:
Effective Rate:
Tax Band
%
Taxable Sum
Tax
* The calculated figures are offered as a guide only. We advise interested parties to seek advice
from their legal representative.
Commercial Stamp Duty Calculator
Calculate Stamp Duty
Results
Stamp Duty To Pay
£0.00
Effective Rate
2%
Tax Band
%
Taxable Sum
Tax
* The calculated figures are offered as a guide only. We advise interested parties to seek advice
from their legal representative.
Do you want to purchase this property prior to the auction?
Complete the form below to submit a pre-auction offer. Please
note that the property will only be removed from the auction once contracts have
been exchanged. Offers can only be submitted once the legal pack is available.