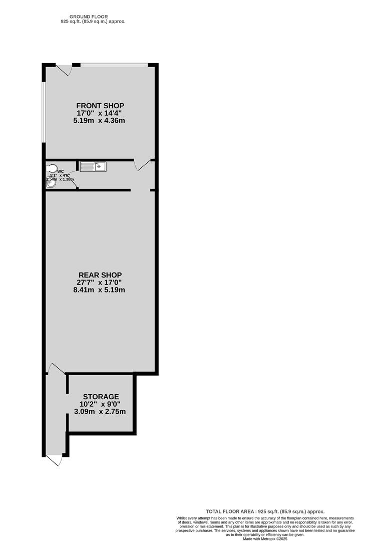
A ground floor retail unit of approximately 925 sq ft, located on Hollway Road, Stockwood. The premises comprises an open plan front and rear shop area, with a separate toilet and storage space.
                                        
                                        DESCRIPTION -  
                                        A ground floor retail unit of approximately 925 sq ft, comprising an open plan front and rear shop area, with a separate toilet and storage space. The premises benefits from security shutters and rear access. The space is well suited for a range of uses, subject to consent.
                                        
                                        LOCATION -  
                                        The property is located on Hollway Road, Stockwood, a well established residential and commercial district in South Bristol. This location benefits from good local footfall, easy access to surrounding neighbourhoods, and proximity to a range of amenities including shops, schools, and public transport links.
                                        
                                        LEASE DETAILS -  
                                        The shop is available to let on a new Full Repairing and Insuring Lease. Each party to incur their own respective legal fees.
                                        
                                        BUSINESS RATES -  
                                        The rateable value with effect from April 2023 is £6,900. We therefore would expect those eligible for small business relief to benefit from 100% exemption at this time. However, we advise all interested parties to confirm directly with the local authority.
                                        
                                        ENERGY PERFORMANCE CERTIFICATE (EPC) -  
                                        EPC rating: C (valid until April 2033).
                                        
                                        FLOOR PLAN -  
                                        The floor plan is provided for indicative purposes only and should not be relied upon.
                                        
                                        VAT -  
                                        All figures quoted are exclusive of VAT unless otherwise stated.
                                        
                                        VIEWINGS -  
                                        By appointment with Maggs & Allen.
                                        
                                        TENANT APPLICATION FEE -  
                                        The ingoing tenant will be charged an application fee of £300 plus VAT (£360 inc VAT) towards the costs incurred in undertaking appropriate credit and reference checks. Accounts will be requested where available and a deposit and/or personal guarantee may be required.
                                        
                                        CONTROL OF ASBESTOS REGULATIONS -  
                                        As per the Control of Asbestos Regulations 2012, the owner or tenant of the property, or anyone else who has control over it and/or responsibility for maintaining it, must comply with the regulations which may include the detection of and/or management of any asbestos or asbestos related compounds contained at the property. Maggs & Allen has not tested or inspected for Asbestos and therefore recommend all interested parties to make their own enquiries.
                                        
                                        CODE FOR LEASING BUSINESS PREMISES -  
                                        We advise all interested parties to refer to the RICS Code for Leasing Business Premises, link available via our website.