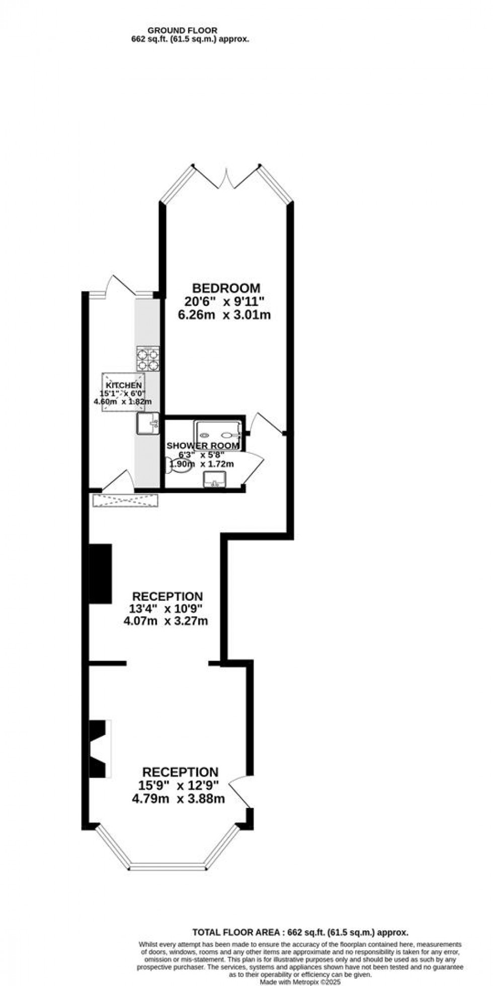
Ground Floor Flat, 41, St. Albans Road, Westbury Park, Bristol, BS6 7SF

£335,000 - Sold Subject to Contract

1 1 1
  • One bedroom, ground floor apartment
  • Two large reception rooms
  • Contemporary shower room
  • Recently-fitted galley kitchen
  • A large double bedroom with double doors to the courtyard garden
  • Situated on a quiet road, close to Henleaze Road and amenities
  • Offered to the market with no onward chain.



Share:

A well-maintained, one bedroom ground floor flat situated within a popular road in Westbury Park. Featuring two reception rooms, a modern kitchen and shower room, and a courtyard garden. Offered to the market with no onward chain.

Summary -

From St Albans Road, a pathway leads to the main front door. Proceed through this door to the communal entrance hallway, and the door on the left-hand side is the private entrance for this apartment.

The sitting room is an exceptionally bright room with a large bay window to the front elevation comprising four sash windows and stained glass above. It features ceiling cornicing, a Victorian-style period fireplace with an open fire and marble hearth, and chimney recesses to either side of the fireplace, and a double radiator. An opening leads through into the dining room/reception 2, which has plenty of space for a table and chairs, a double radiator, ceiling coving, and a central ceiling light point. A door leads off to the kitchen.

The kitchen is a modern space comprising a range of wall and base units with a roll-edged worktop, a stainless steel sink bowl unit with a mixer tap, a 4-ring Neff gas hob, an electric oven, an integrated low-level fridge with a freezer compartment, space and plumbing for a washing machine, an integrated slimline dishwasher, and a wall-mounted gas combination boiler. A door leads out to the south-facing courtyard garden.

The bedroom features two sash windows with double doors in the middle also leading onto a small courtyard garden. It has a radiator, moulded skirting boards, and two ceiling light points. The bathroom/WC has a white suite comprising a free-standing wash hand basin with a storage cupboard below, a low-level WC, a panelled bath with a shower above, partially tiled walls, a radiator, an extractor fan, and recessed spotlights.

Location -

Westbury Park is a charming residential neighbourhood known for its Victorian architecture and family-friendly atmosphere. The area features well-maintained homes and gardens, creating a picturesque suburban setting.

Residents enjoy the community feel with local schools, parks, and amenities within easy reach. Coldharbour Road and North View are nearby and offer an array of shops, cafes, restaurants and other independent business including Little French and Lavender.

Green spaces like Redland Green and Durdham Downs provide opportunities for outdoor activities, contributing to the neighbourhood’s appeal. Well-connected to Bristol's city centre, Westbury Park maintains a peaceful residential character while ensuring convenient access to amenities and transportation. It's a sought-after destination for those seeking classic charm, community spirit, and modern convenience.

Lease Information -

The property is on a 999 year lease from 1985 and offered with a 50% share of freehold. We understand there is no ground rent or service charge.

EPC Graph for St. Albans Road | Westbury Park