The Printworks, Foundry Lane, Bristol, BS5 7UZ

£19,675 Per Annum - To Let

  • 31 New Units Available
  • For Sale / To Let
  • 1,500ft² - 12,000ft+
  • Substantial Car Park
  • On-site Cafe
  • Industrial/Retail and Trade Counter Units Available



Share:

An exciting development of industrial units, trade counters and retail units ranging from 1,500 ft² - 12,000 ft² with ample parking, situated in a central position in Bristol within easy reach of the M32.

The Printworks is an old factory building first established in 1880 which is currently undergoing significant redevelopment to provide 31 new industrial units with substantial internal height.

3-Phase electricity is available if required and parking is provided for all of the units and additional parking is readily available if required. A large on-site café is also proposed.

The units are offered for sale on a long leasehold basis and with vacant possession, and to let on an internal repairing and insuring basis, subject to estate service charge.

DESCRIPTION -

An exciting development of industrial units, trade counters and retail units ranging from 1,500 ft² - 12,000 ft² with ample parking, situated in a central position in Bristol. Please note, any vehicle repair/sales businesses will not be considered.

The Printworks is an old factory building first established in 1880 which is undergoing significant redevelopment to provide 31 new industrial units. The units benefit from small mezzanines providing an office, kitchen and wc, which can be extended if required. The units sub 9,000ft² benefit from an internal height of circa 8m and the larger units have an internal heigh of circa 17m. 3-Phase electricity is also available if required and parking is provided for all of the units and additional parking is readily available if required. A large on-site café is also proposed.

The units are offered for sale on a long leasehold basis and with vacant possession, and to let on an internal repairing and insuring basis, subject to estate service charge.

LOCATION -

Situated in a central location to the east of Fishponds Trading Estate, providing easy access to the M32.

VAT -

The site is opted for VAT and therefore VAT will be applicable to the rents and sales prices.

BUSINESS RATES -

The units are yet to be assessed for Business Rates.

ENERGY PERFORMANCE CERTIFICATES -

To be confirmed.
Unit 16-Unit 20: Rating D

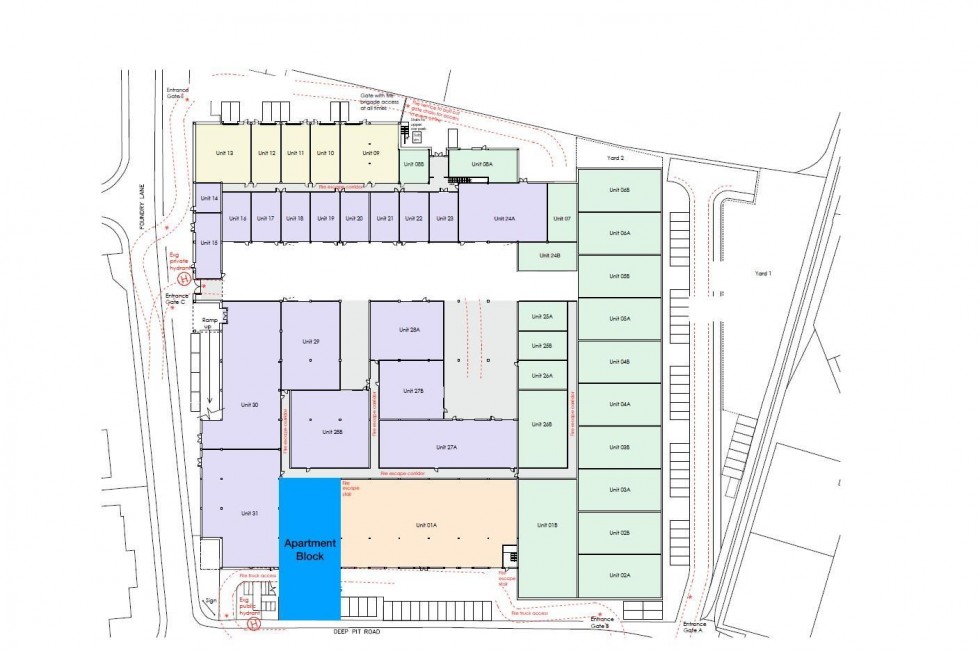
FLOOR PLAN -

The floor plans and Schedule of Areas are provided for indicative purposes only and should not be relied on.

TENANT APPLICATION FEE -

The ingoing tenant will be charged an application fee of £300 plus VAT (£360 inc VAT) towards the costs incurred in undertaking appropriate credit and reference checks. Accounts will be requested where available and a deposit and/or personal guarantee may be required.

LEASE DETAILS -

The units are available to let on an internal repairing and insuring basis, subject to estate service charge. Quotes for the service charge are currently being obtained and further details are available on request.
Each party to incur their own respective legal fees.

VIEWINGS -

Strictly by appointment with Maggs & Allen and their joint agents Lambert Smith Hampton.