26, Ashgrove Avenue, Ashley Down, Bristol, BS7 9LJ

£495,000 - Sold

4 1 1
  • Three double-bedroom Victorian terraced home
  • Two reception rooms
  • Separate kitchen, utility area and bathroom
  • Sizeable loft room
  • South-easterly facing rear garden
  • Situated close to amenities and Gloucester Road
  • Offered to the market with no onward chain



Share:

A well-maintained, three bedroom Victorian terrace located on a quiet road within Ashley Down. Offered to the market with no onward chain.

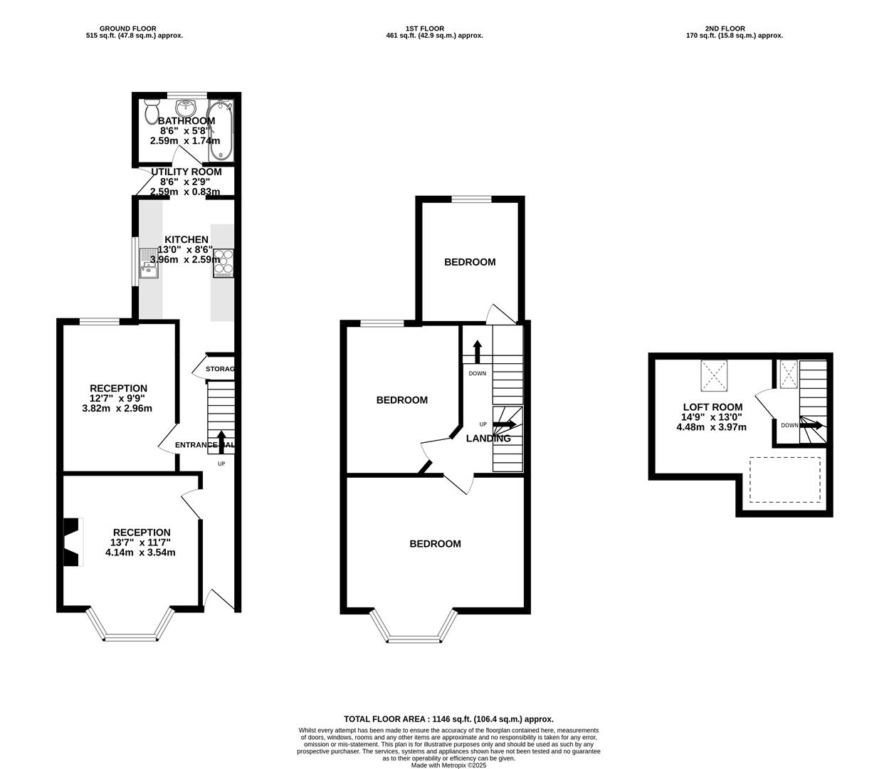
Ground Floor -

To the left, the bay-fronted lounge offers high ceilings and a fireplace. The property integrates period features with contemporary elements.

Further down the hall, the dining room provides views of the rear garden and space for a formal dining arrangement.

The kitchen, at the rear, includes counter space, storage (below counter and wall units), and a gas hob.

Off the kitchen, you will find a useful utility space with a door leading to the rear garden. This in turn leads to a three piece bathroom comprising a suite of bath, toilet and sink.

First Floor -

Upstairs, there are three bedrooms. Bedroom Three, at the rear, is a double room with garden views. This room is sometimes converted into an upstairs bathroom in similar properties, offering a potential option subject to inspection.

Adjacent is Bedroom Two, also a double-sized room with garden views and floor space for furniture.

At the front, Bedroom One (the master bedroom) spans the width of the property. It includes a bay window, similar to the lounge below, and features high ceilings.

A staircase from the landing leads to the boarded loft space, which has skylights, providing additional storage or future conversion potential.

Garden -

The rear garden includes a patio area adjacent to the kitchen, transitioning to a garden path and a lawned section.

Location -

A well-connected suburb bordering Horfield, St. Andrews, Bishopston, and St. Werburghs, Ashley Down offers a diverse range of homes from Victorian terraces to modern apartments. Its main artery, Ashley Down Road, leads through these residential pockets.

Historically significant, the area was home to George Müller's 1849 orphanage and even served as a set for the BBC's Casualty.

Residents benefit from excellent local amenities, with Gloucester Road's independent shops and eateries nearby, and local pubs like The Lazy Dog. For families, Ashley Down Juniors is a popular school option.

Despite its urban setting, Ashley Down provides refreshing green spaces; allotments line Muller Road, and Purdown's open expanses, just minutes away, offer stunning views and a quick escape from city life.

Schools -

Brunel Field Primary School - Distance: 0.19 miles
Ashley Down Primary School - Distance: 0.31 miles
Sefton Park Junior School - Distance: 0.35 miles
Fairfield High School - Distance: 0.43 miles
E-Act Montpelier High School - Distance: 0.98 miles