10, North View, Westbury Park, Bristol, BS6 7QB

Asking Price £425,000 - For Sale

1
  • Mixed use
  • Retail unit/office
  • One bedroom flat
  • Great location
  • Potential for redevelopment



Share:

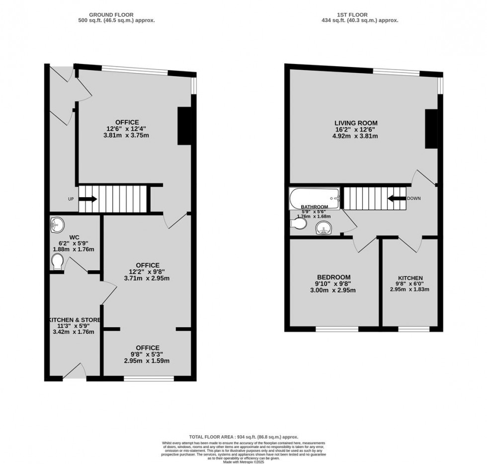
This well presented mixed use property spans approximately 943 sq ft and comprises a ground floor retail unit/office of approximately 500 sq ft, ideal for a variety of business ventures or professional services. Above the commercial space, you will find a one bedroom flat of approximately 434 sq ft, providing a comfortable living area with modern amenities. The flat has been recently newly carpeted and decorated throughout. In addition there is a fully boarded and clean front to rear loft storage with a pull down ladder. To the rear of the property there is a courtyard garden and access to a secure rear lane.

The property presents a unique opportunity for a range of potential buyers, including owner occupiers, investors, or developers. For those seeking to add value, there is potential to convert the current layout into a family home or into two separate flats, subject to consent. The flat is currently let on a 12 month AST from February 2025, at £1,100pcm. Please note the vendor may be interested in a lease back of the ground floor offices.

DESCRIPTION -

This well presented mixed use property spans approximately 943 sq ft and comprises a ground floor retail unit/office of approximately 500 sq ft, ideal for a variety of business ventures or professional services. Above the commercial space, you will find a one bedroom flat of approximately 434 sq ft, providing a comfortable living area with modern amenities. The flat has been recently newly carpeted and decorated throughout. In addition there is a fully boarded and clean front to rear loft storage with a pull down ladder. To the rear of the property there is a courtyard garden and access to a secure rear lane.

The property presents a unique opportunity for a range of potential buyers, including owner occupiers, investors, or developers. For those seeking to add value, there is potential to convert the current layout into a family home or into two separate flats, subject to consent. The flat is currently let on a 12 month AST from February 2025, at £1,100pcm. Please note the vendor may be interested in a lease back of the ground floor offices.

LOCATION -

The property is ideally located on the highly desirable North View in Westbury Park, a sought after and affluent area known for its attractive residential appeal and proximity to various local amenities. Situated just a short distance from the Durdham Downs, this prime location offers an abundance of green space. The tranquil surroundings and convenient access to the Downs make it an ideal setting for both residents and businesses.

TENURE -

Understood to be freehold.

BUSINESS RATES -

The rateable value with effect from April 2023 is £4,600. We therefore would expect those eligible for small business relief to benefit from 100% exemption at this time. However, we advise all interested parties to confirm directly with the local authority.

ENERGY PERFORMANCE CERTIFICATE (EPC) -

GF EPC rating: D (valid until December 2034)
Flat EPC rating: D (valid until October 2030)

FLOOR PLAN -

The floor plan is provided for indicative purposes only and should not be relied upon.

VAT -

All figures quoted are exclusive of VAT unless otherwise stated.

VIEWINGS -

By appointment with Maggs & Allen.

CONTROL OF ASBESTOS REGULATIONS -

As per the Control of Asbestos Regulations 2012, the owner or tenant of the property, or anyone else who has control over it and/or responsibility for maintaining it, must comply with the regulations which may include the detection of and/or management of any asbestos or asbestos related compounds contained at the property. Maggs & Allen has not tested or inspected for asbestos and therefore recommend all interested parties to make their own enquiries.

NOTES -

Please note the vendor may be interested in a lease back of the ground floor offices.