Guinea Street, Bristol, BS1 6SD

£1,667pcm - Let Agreed

  • Located within The General
  • Close to Bristol City Centre
  • Approx. 1,330 ft²
  • New Lease Available
  • Stunning/Contemporary Unit
  • Disabled Access/Toilets



Share:

A contemporary ground floor commercial unit of approximately 1,330 ft² situated in The General, a prestigious mixed-use development in central Bristol. The unit benefits from kitchen and toilet facilities and would suit office occupiers, yoga/pilate studios, hair salons and other commercial uses, subject to obtaining the necessary consents.

DESCRIPTION -

A contemporary ground floor commercial unit of approximately 1,330 ft² situated in The General, a prestigious mixed-use development in central Bristol. The unit benefits from kitchen and toilet facilities and would suit office occupiers, yoga/pilate studios, hair salons and other commercial uses, subject to obtaining the necessary consents.

LOCATION -

The General is located close to Bristol City Centre with views over the waterside. Bristol General Hospital dates back to the early 1830's but was recently redeveloped into 205 luxury residential units and various commercial units and restaurants.

BUSINESS RATES -

The Rateable Value with effect from April 2023 is £9,000. We therefore would expect those eligible for small business relief to benefit from 100% exemption at this time. However, we advise all interested parties to confirm directly with the local authority.

ENERGY PERFORMANCE CERTIFICATE (EPC) -

Rating: C - valid to Feb 2035.

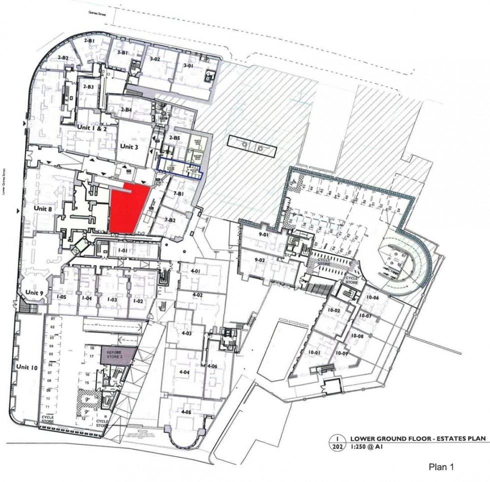
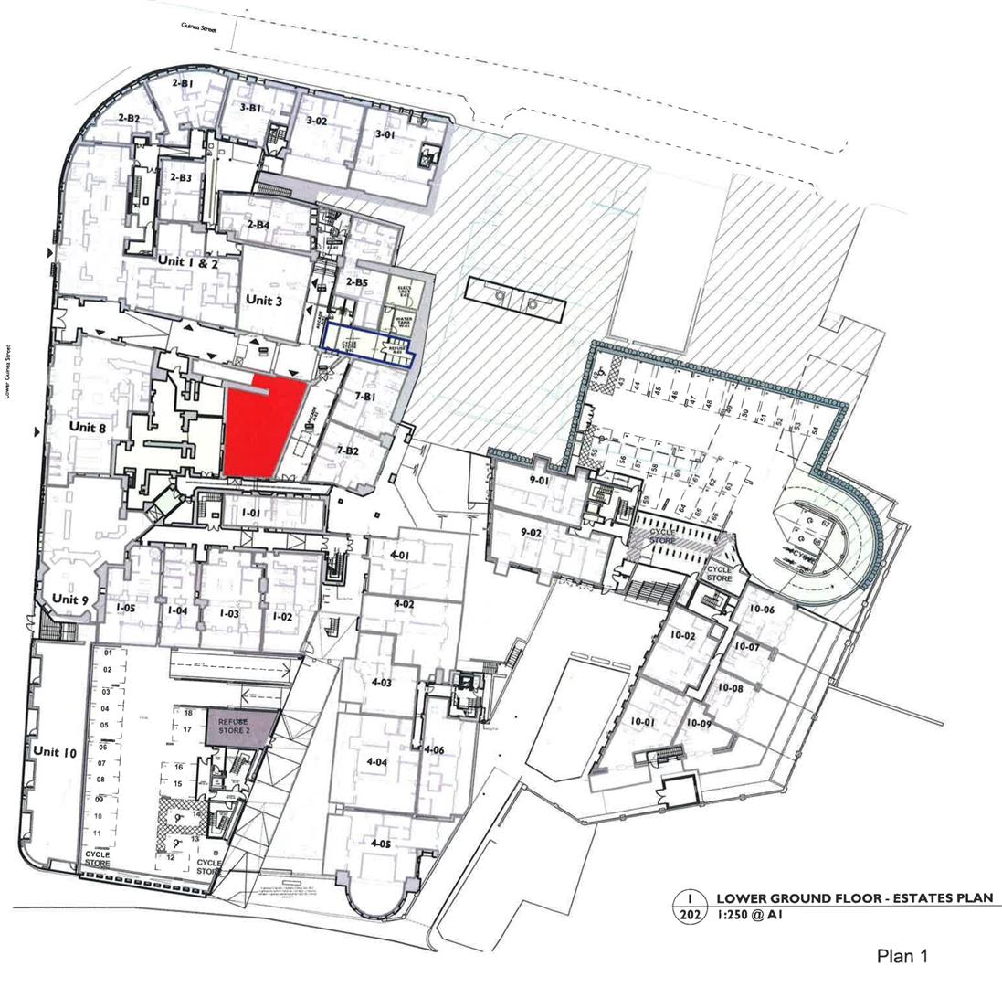
FLOOR PLAN -

The floor plan is provided for indicative purposes only and should not be relied upon.

LEASE DETAILS -

The unit is available to let on a new internal repairing and insuring basis, subject to estate service charge. Each party to incur their own respective legal fees.

TENANT APPLICATION FEE -

The ingoing tenant will be charged an application fee of £300 plus VAT (£360 inc VAT) towards the costs incurred in undertaking appropriate credit and reference checks. Accounts will be requested where available and a deposit and/or personal guarantee may be required.

VIEWINGS -

By appointment.

VAT -

All figures quoted are exclusive of VAT unless otherwise stated. The unit is opted for VAT, and therefore VAT will be applicable to the rent.

CODE FOR LEASING BUSINESS PREMISES -

We advise all interested parties to refer to the RICS Code for Leasing Business Premises, link available via our website.