2, Elmhurst Avenue, Eastville, Bristol, BS5 6QJ

Auction Guide £450,000
Sold


8

  • SOLD FOR £480,000
  • Substantially extended semi-detached house
  • Arranged as an 8-bedroom HMO
  • Potential rental income in the region of £62,400 PA
  • Quiet residential cul de sac just off Fishponds Road
  • 8-week completion

A substantially extended semi-detached house that is currently arranged as an 8-bedroom HMO. The property is currently let producing £52,800 per annum but is to be sold with vacant possession. There is scope to increase the rental income to a figure in the region of £62,800 per annum following some cosmetic improvements. The property benefits from a driveway to the front, a low maintenance garden to the rear and is conveniently located on a quiet residential cul de sac just off Fishponds Road. A superb opportunity for investors seeking a high-yielding rental property.

FOR SALE BY AUCTION -

This property is due to feature in our online auction on 26 June 2025 at 6.00pm. Bidding is via proxy, telephone or online remote bidding.

VIEWINGS -

By appointment.

SUMMARY -

SOLD FOR £480,000

DESCRIPTION -

A significantly extended semi-detached property currently configured as an 8-bedroom House in Multiple Occupation (HMO), generating an impressive £52,800 per annum. Offered for sale with vacant possession, this property presents an exceptional opportunity to add value and boost rental returns, with the potential to achieve circa £62,800 per annum following cosmetic enhancements.

Well-positioned on a quiet residential cul-de-sac just off Fishponds Road, the property benefits from strong tenant demand and excellent access to local amenities and transport links. Additional features include off-street parking via a private driveway, and a low-maintenance rear garden – ideal for tenants and minimal upkeep.

This is a prime investment prospect for landlords seeking strong yields and future growth potential in a high-demand rental area.

LOCATION -

The property is convenient located on Elmhurst Avenue opposite Ridgeway Cemetery. Easy access is provided to a wide range of local amenities on Fishponds Road and excellent transport links are provided to the M32 and city centre.

ACCOMMODATION -

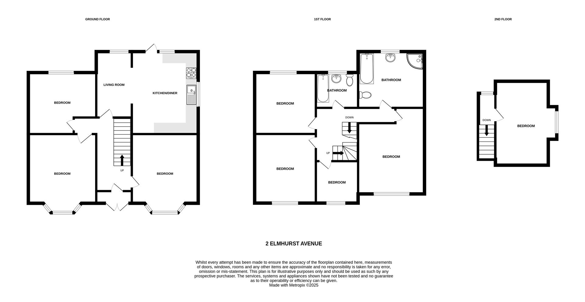
The ground floor accommodation comprises an entrance hall, an open-plan kitchen/dining/living room, three double bedrooms and a bathroom. On the first floor are four further bedrooms and a large bathroom whilst the converted loft space provides the final bedroom.

Please refer to floorplan for approximate room measurements and internal layout.

RENTAL DETAILS -

The property is currently let producing a total rental income of £52,800 per annum but is to be sold with vacant possession. Following some cosmetic improvements, we would anticipate a market rent in the region of £62,800 per annum (£650 pcm per room).

TENURE -

The property is for sale on a freehold basis with vacant possession.

COMPLETION -

Completion for this lot will be 8 weeks from exchange of contracts or sooner by mutual agreement.

HMO LICENSING & PLANNING -

An HMO licence for 8 people was granted on 14/01/2025.

HMO licensing regulations and planning requirements are subject to regular changes, updates and even individual interpretations by the Local Authority. Prospective buyers are therefore required to make their own enquiries with the Local Authority and review the documents contained in the auction legal pack fully to satisfy themselves that the property is compliant in this respect. Maggs & Allen accept no liability in the event that any Licensing or Planning requirements/documents are not in order at the point of sale.

ENERGY PERFORMANCE CERTIFICATE (EPC) -

Rating: C

LETTING - WHAT CAN MAGGS & ALLEN ACHIEVE FOR YOU? -

Maggs & Allen's experienced letting team are happy to discuss the rental of this property and can advise on maximising the investment. We offer Full Management, Let Only and Rent Collection Services. Contact Jessica Archer and her team on 0117 9499000 or email lettings@maggsandallen.co.uk.

AUCTION OR BRIDGING FINANCE REQUIRED? -

Do you need a mortgage or loan quickly? Maggs & Allen have specialist Independent Brokers who can arrange residential and commercial finance on all types of property. Contact the Auction Team today to be put through to our mortgage and loan experts on 0117 9734940 or email admin@maggsandallen.co.uk

BUYER'S PREMIUM -

Please be advised that all purchasers are subject to a £1,800 plus VAT (£2,160 inc VAT) buyer’s premium payable upon exchange of contracts.

*GUIDE PRICE -

Guide Prices are provided as an indication of each seller's minimum expectation. They are not necessarily figures which a property will sell for and may change at any time prior to the auction. Each property will be offered subject to Reserve Price (a figure below which the Auctioneer cannot sell the property during the auction) which we expect will be set within the Guide Range or no more than 10% above a single figure Guide.

RESERVE PRICE -

The seller's minimum acceptable price at auction and the figure below which the auctioneer cannot sell. The reserve price is not disclosed and remains confidential between the seller and the auctioneer. Both the guide price and the reserve price can be subject to change up to and including the day of the auction.

PROXY, TELEPHONE & ONLINE REMOTE BIDDING -

The auction will be held online via live video stream with buyers able to bid via telephone, online or by submitting a proxy bid. You will need to complete our remote bidding form, which is available to download from our website. The completed form, ID (driving licence or passport and a recent utility bill stating the home address of the purchaser) and a bank transfer for the Preliminary Deposit must be received no later than 24 hours before the date of the auction.

PRELIMINARY DEPOSITS -

The Preliminary Deposit required for each lot you wish to bid for is £5,000.

If you bid is successful, the balance of the deposit monies and Buyer’s Premium (£1,800 plus VAT) must be transferred to our client account within 24 hours of the auction sale. If you are unsuccessful at the auction, your Preliminary Deposit will be returned to you within 5 working days.

RENTAL ESTIMATES -

All rental estimates are provided in good faith. They should be verified by your own professional advisors prior to a commitment to purchase.