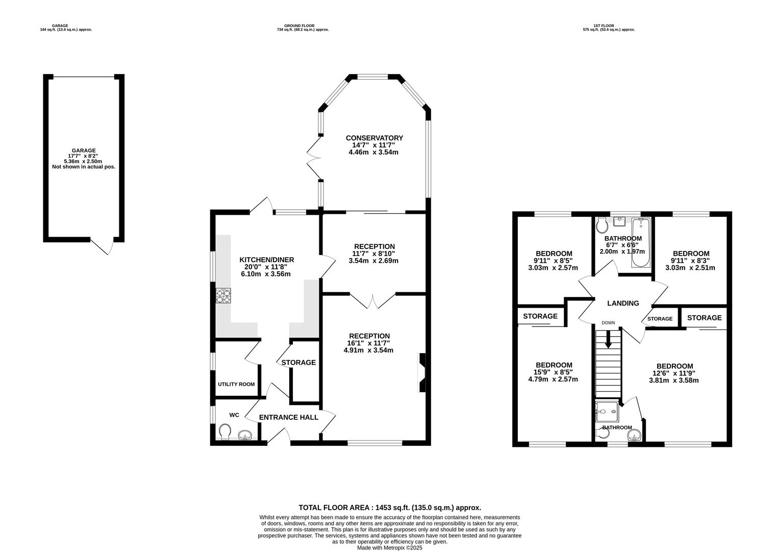
Located on a lovely, quiet development in Henleaze, this four-bedroom, three-reception room detached property makes for a superb family home. Offering a prospective buyer the opportunity to put their own stamp on it with cosmetic changes, the property further benefits from off-street parking and a secure garage.
                                        
                                        Internally -  
                                        Entering the hallway from the porch, you will be greeted by a hallway providing access in turn to a ground floor WC, kitchen and the reception rooms. 
The largest reception room is located to the front of the property and has been used predominantly as a lounge. This in turn leads via double doors into a dining area/second reception and further to a south-westerly facing conservatory. 
The kitchen/breakfast room is a superb family area, offering plentiful storage with a range of matching base and wall-mounted units, and comfortably able to accommodate a dining table. Completing the ground floor is a handy under-stairs storage cupboard and utility room. 
Ascending to the first floor landing, you will find four bedrooms - comprised of two doubles, and two singles - and the main bathroom. 
The master bedroom is located to the front of the property, and features in-built storage and an en suite shower room fitted with a three-piece suite comprising a shower enclosure, basin and toilet. A second double bedroom sat to the front of the property also features in-built storage and a view of the green. 
The bathroom is fitted with a three-piece suite comprising a bath, toilet and basin and also accessible from the landing is a handy storage cupboard. 
Two single bedrooms complete the first floor.
                                        
                                        Externally -  
                                        The property can be accessed from both the garden, or via front door which faces the open green spaces of the playing fields. This particular approach leads to a porch, leading in turn into the hallway. 
The garden has the benefit of being south west facing, a favourable aspect given it attracts the sun through much of the day and into the evening. The garden is split between a lawned area bordered by mature shrubs and trees, and a patio area accessed immediately from both the conservatory and the kitchen. 
A secure garage (additionally accessible from the patio) and off-street parking complete the external aspect of the property.
                                        
                                        Vendor's Comments -  
                                        The home is in a quiet, safe and secure area. The road is a vibrant, friendly community that is a blend of age groups. The neighbours will be there to help you if you need it or leave you in peace if that is what you are looking for. Our family has lived there since it was brand new and watched the community thrive. All local amenities are within 10-20 minutes walk including Tescos, parks, tennis courts, GP, Henleaze and Westbury on Trym.
                                        
                                        Location -  
                                        Located on a much sought-after development built in the 1990's, with well-maintained grounds and within a short walk of amenities. 
Henleaze more broadly is a suburban gem with good quality housing largely developed in the 1930s, with Edwardian and Victorian streets on its fringes. The neighbourhood boasts a tranquil atmosphere, featuring green spaces like Henleaze Lake, Horfield Common, and of course the Downs - offering residents a wealth of picturesque walks.
The bustling Henleaze Road high street boasts a wide range of independent shops, cafes, butchers and greengrocers, with Waitrose and the cinema sat on Northumbria Drive. North View, located at the end of Northumbria Drive is home to highly regarded Little French and Prego restaurants.
The neighbourhood’s reputation for excellent local schools makes it particularly appealing for families. With good connectivity to Bristol's city centre, Henleaze offers a blend of residential charm and superb convenience.
                                        
                                        Schools -  
                                        Henleaze Junior School - Distance: 0.28 miles
Bishop Road Primary School - Distance: 0.48 miles
St Bonaventure's Catholic Primary School - Distance: 0.52 miles
Redland Green School - Distance: 0.94 miles