4 York Court, Upper York Street, Bristol, BS2 8QF

£12,700 Per Annum - To Let

  • Ground floor offices
  • Approximately 1,087 sq ft
  • Close to city centre
  • New lease available



Share:

Light and modern ground floor offices of approximately 1,087 sq ft situated close to Bristol city centre.

DESCRIPTION -

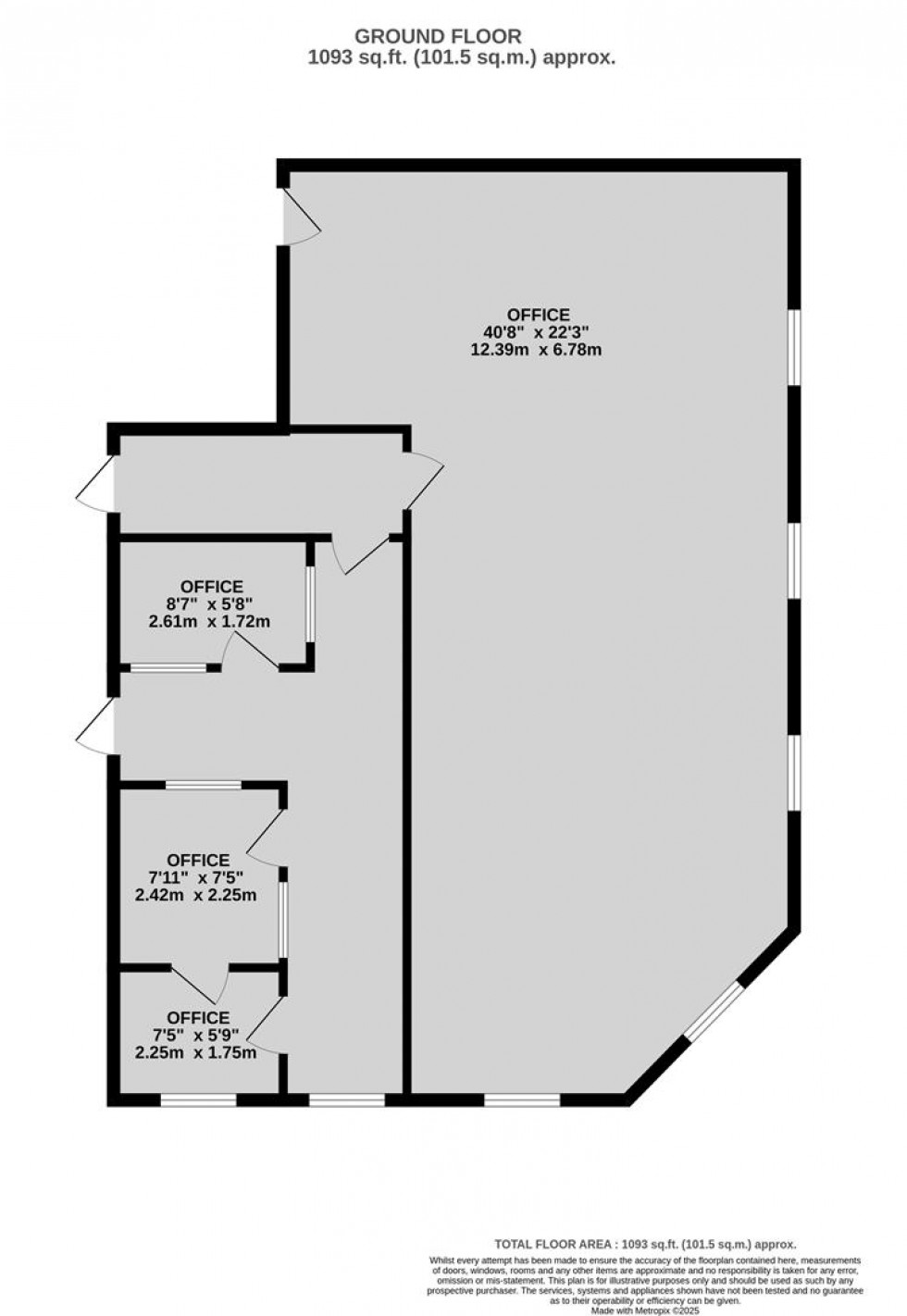
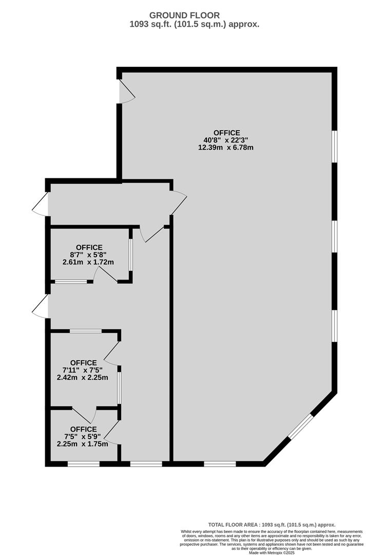
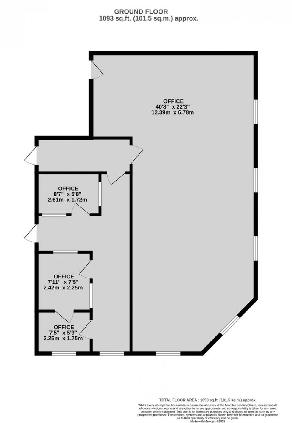
Bright and modern ground floor offices of approximately 1,087 sq ft arranged as main open plan office with 2 separate office suites and kitchenette. Benefits include gas central heating, suspended ceilings and intercom entry.

LOCATION -

Situated in Stokes Croft within close proximity to the '5102' building on St James' Barton roundabout as well as Portland Square and Cabot Circus.

LEASE DETAILS -

The offices are available to let on an effectively new full repairing & insuring basis, subject to a service charge.
Each party to incur their own legal costs.

BUSINESS RATES -

The rateable value with effect from May 2024 is £10,250. We therefore would expect those eligible for small business relief to benefit from 100% exemption at this time. However, we advise all interested parties to confirm directly with the local authority.

ENERGY PERFORMANCE CERTIFICATE (EPC) -

EPC rating: TBC.

FLOOR PLAN -

The floor plan is provided for indicative purposes only and should not be relied upon.

VAT -

We understand that the property is elected for VAT.

VIEWINGS -

By appointment.

TENANT APPLICATION FEE -

The ingoing tenant will be charged an application fee of £300 plus VAT (£360 inc VAT) towards the costs incurred in undertaking appropriate credit and reference checks. Accounts will be requested where available and a deposit and/or personal guarantee may be required.

CONTROL OF ASBESTOS REGULATIONS -

As per the Control of Asbestos Regulations 2012, the owner or tenant of the property, or anyone else who has control over it and/or responsibility for maintaining it, must comply with the regulations which may include the detection of and/or management of any asbestos or asbestos related compounds contained at the property. Maggs & Allen has not tested or inspected for Asbestos and therefore recommend all interested parties to make their own enquiries.

CODE FOR LEASING BUSINESS PREMISES -

We advise all interested parties to refer to the RICS Code for Leasing Business Premises, link available via our website.