South Liberty Lane, Bristol, BS3 2SZ

£82,700 Per Annum - To Let

  • Well presented industrial unit
  • First floor office space
  • Approximately 6,913 sq ft
  • Secure yard



Share:

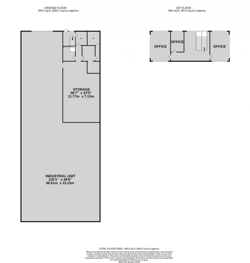
This well presented industrial unit spans approximately 6,913 sq ft in total, offering a functional and versatile space suitable for a range of industrial purposes. The property features a generously sized ground floor warehouse area, covering around 5,971 sq ft. This area includes ample storage space, along with toilet facilities.

On the first floor, you'll find approximately 943 sq ft of recently refurbished office space. The modern, clean, and well designed offices offer a comfortable and efficient working environment, ideal for administrative tasks or management operations.

Additionally, the unit benefits from a spacious and secure yard, providing ample outdoor storage or loading/unloading space. Roller shutter access adds convenience for vehicle entry, further enhancing the accessibility of the property.

Offered to let by way of an assignment of the existing lease which runs until January 2029.

DESCRIPTION -

This well presented industrial unit spans approximately 6,913 sq ft in total, offering a functional and versatile space suitable for a range of industrial purposes. The property features a generously sized ground floor warehouse area, covering around 5,971 sq ft. This area includes ample storage space, along with toilet facilities.

On the first floor, you'll find approximately 943 sq ft of recently refurbished office space. The modern, clean, and well designed offices offer a comfortable and efficient working environment, ideal for administrative tasks or management operations.

Additionally, the unit benefits from a spacious and secure yard, providing ample outdoor storage or loading/unloading space. Roller shutter access adds convenience for vehicle entry, further enhancing the accessibility of the property.

LOCATION -

The unit is strategically located on South Liberty Lane in the vibrant area of Ashton, a well established industrial and commercial district within easy reach of key transportation routes. This prime location offers excellent accessibility, making it a highly desirable base for businesses seeking a central position with strong connections to the surrounding areas.

LEASE DETAILS -

The unit is available by way of a lease assignment, the current lease term runs until January 2029.

Each party to incur their own legal costs with the landlord's associated costs split 50/50 between the ingoing and outgoing tenant.

BUSINESS RATES -

The rateable value with effect from April 2023 is £31,250.

ENERGY PERFORMANCE CERTIFICATE (EPC) -

EPC rating: C (valid until March 2033)

FLOOR PLAN -

The floor plan is provided for indicative purposes only and should not be relied upon.

VAT -

All figures quoted are exclusive of VAT unless otherwise stated.

VIEWING -

By appointment with Maggs & Allen.

TENANT APPLICATION FEE -

The ingoing tenant will be charged an application fee of £300 plus VAT (£360 inc VAT) towards the costs incurred in undertaking appropriate credit and reference checks. Accounts will be requested where available and a deposit and/or personal guarantee may be required.

CONTROL OF ASBESTOS REGULATIONS -

As per the Control of Asbestos Regulations 2012, the owner or tenant of the property, or anyone else who has control over it and/or responsibility for maintaining it, must comply with the regulations which may include the detection of and/or management of any asbestos or asbestos related compounds contained at the property. Maggs & Allen has not tested or inspected for asbestos and therefore recommend all interested parties to make their own enquiries.

CODE FOR LEASING BUSINESS PREMISES -

We advise all interested parties to refer to the RICS Code for Leasing Business Premises, link available via our website.