Portview Road, Bristol, BS11 9JE

£1,500pcm - Let Agreed

  • Light industrial unit
  • Approximately 1,800 sq ft
  • Rear yard
  • Forecourt
  • 2 roller shutters



Share:

Light industrial unit of approximately 1,800 sq ft located on Portview Road, Avonmouth.

DESCRIPTION -

Light industrial unit of approximately 1,800 sq ft, ideally suited for a variety of commercial, trade, or light manufacturing uses. The property is predominantly arranged as an open plan workshop area, adjoining office, storage areas and WC. The unit benefits from roller shutter access, rear yard and a front forecourt, providing customer or staff parking. The unit is well suited to a variety of business uses seeking an adaptable workspace.

LOCATION -

The unit is situated on Portview Road, Avonmouth, one of Bristol’s most established and well connected industrial and distribution hubs. This location provides excellent access to the M5 motorway (Junction 18), as well as the wider national road network via the M4/M5 interchange, making it ideal for businesses involved in logistics, manufacturing, or trade services.

LEASE DETAILS -

The unit is available to let on a new Full Repairing and Insuring Lease. Each party to incur their own respective legal fees.

BUSINESS RATES -

The rateable value with effect from April 2023 is £12,250. We therefore would expect those eligible for small business relief to benefit at this time. However, we advise all interested parties to confirm directly with the local authority.

ENERGY PERFORMANCE CERTIFICATE (EPC) -

EPC rating: D (valid until April 2035)

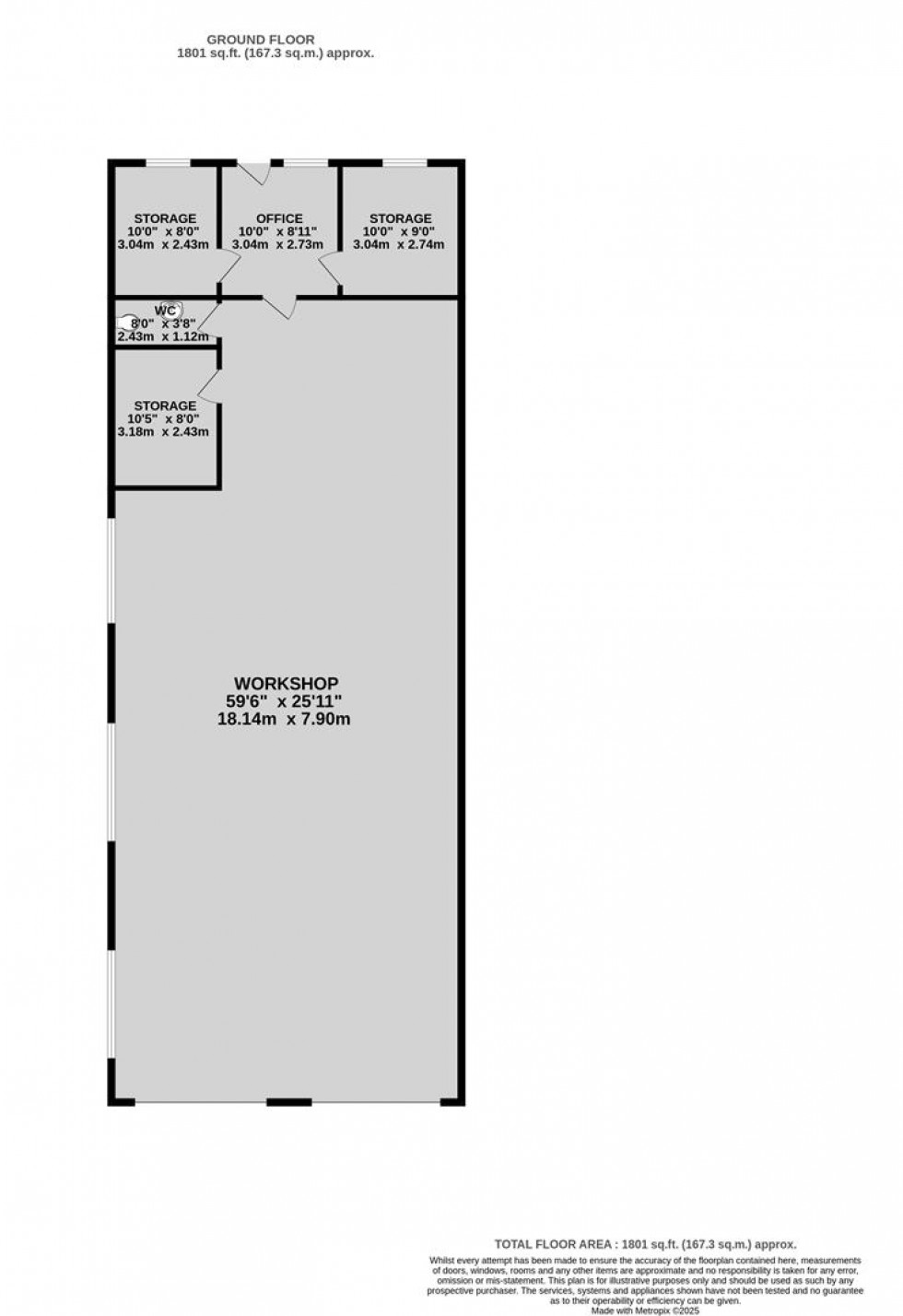
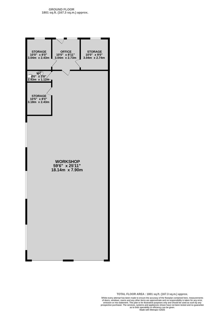
FLOOR PLAN -

The floor plan is provided for indicative purposes only and should not be relied upon.

VAT -

All figures quoted are exclusive of VAT unless otherwise stated.

VIEWINGS -

By appointment with Maggs & Allen.

TENANT APPLICATION FEE -

The ingoing tenant will be charged an application fee of £300 plus VAT (£360 inc VAT) towards the costs incurred in undertaking appropriate credit and reference checks. Accounts will be requested where available and a deposit and/or personal guarantee may be required.

CONTROL OF ASBESTOS REGULATIONS -

As per the Control of Asbestos Regulations 2012, the owner or tenant of the property, or anyone else who has control over it and/or responsibility for maintaining it, must comply with the regulations which may include the detection of and/or management of any asbestos or asbestos related compounds contained at the property. Maggs & Allen has not tested or inspected for Asbestos and therefore recommend all interested parties to make their own enquiries.

CODE FOR LEASING BUSINESS PREMISES -

We advise all interested parties to refer to the RICS Code for Leasing Business Premises, link available via our website.