419, Gloucester Road, Horfield, Bristol, BS7 8TZ

Asking Price £305,000 - Sold Subject to Contract

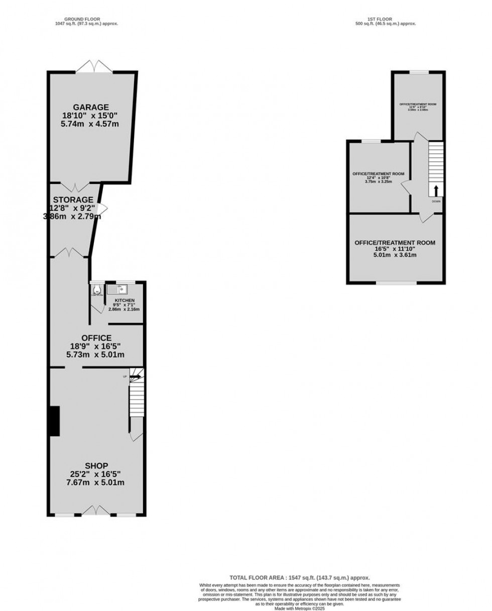
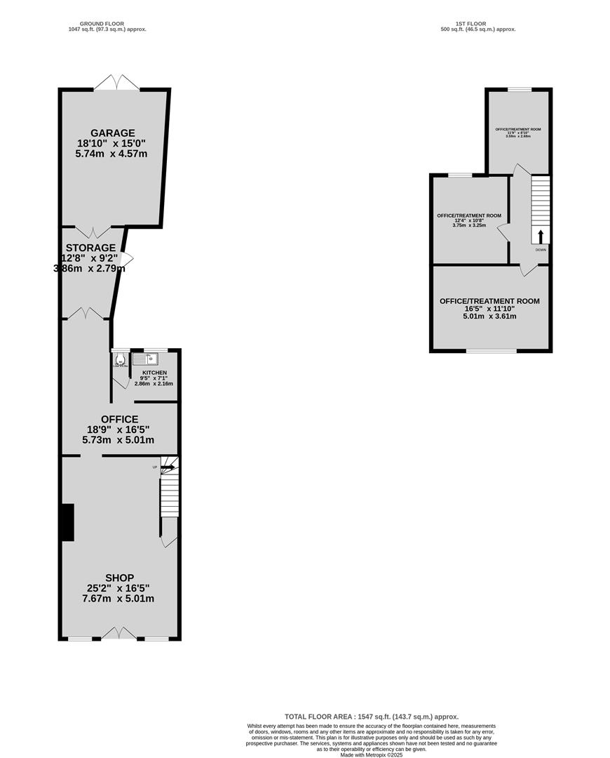
  • 2 storey commercial property
  • First floor residential potential
  • Approximately 1,547 sq ft
  • Forecourt
  • Rear garage



Require Finance?

Compare Property Finance from over 100 lenders
Click HERE to start your search

A representive from South West Business Finance will contact you to discuss your options



Share:

2 storey commercial property of approximately 1,547 sq ft located in a great position on Gloucester Road. Offered for sale with vacant possession.

DESCRIPTION -

This 2 storey commercial property of approximately 1,547 sq ft presents an excellent opportunity for owner occupiers, investors, or developers seeking versatile space with future potential. The building comprises a ground floor retail unit, ideally suited for a variety of retail or service based businesses. To the rear of the retail area, there is additional storage space along with a secure garage.

The first floor currently serves as ancillary space, which could be used for offices, staff facilities, or additional storage. The upper floor also offers potential for conversion into a self contained residential unit, subject to consent.

LOCATION -

The property occupies a prominent and highly desirable position on Gloucester Road, one of Bristol’s most vibrant and well known commercial thoroughfares. Renowned for its eclectic mix of independent shops, cafés, restaurants, and local businesses, Gloucester Road attracts a high volume of foot traffic throughout the day and into the evening. With excellent public transport links and strong connectivity to the city centre, as well as nearby residential neighbourhoods, the property is perfectly positioned to benefit from both local and passing trade.

TENURE -

Understood to be freehold.

BUSINESS RATES -

The rateable value with effect from April 2023 is £7,200. We therefore would expect those eligible for small business relief to benefit from 100% exemption at this time. However, we advise all interested parties to confirm directly with the local authority.

ENERGY PERFORMANCE CERTIFICATE (EPC) -

EPC rating: TBC.

FLOOR PLAN -

The floor plan and aerial image are provided for indicative purposes only and should not be relied upon.

VAT -

All figures quoted are exclusive of VAT unless otherwise stated.

VIEWINGS -

By appointment with Maggs & Allen.

CONTROL OF ASBESTOS REGULATIONS -

As per the Control of Asbestos Regulations 2012, the owner or tenant of the property, or anyone else who has control over it and/or responsibility for maintaining it, must comply with the regulations which may include the detection of and/or management of any asbestos or asbestos related compounds contained at the property. Maggs & Allen has not tested or inspected for Asbestos and therefore recommend all interested parties to make their own enquiries.