75, Devonshire Road, Westbury Park, Bristol, BS6 7NH

Offers In The Region Of £850,000 - Sold Subject to Contract

5 1 2
  • A handsome mid-terrace Edwardian residence
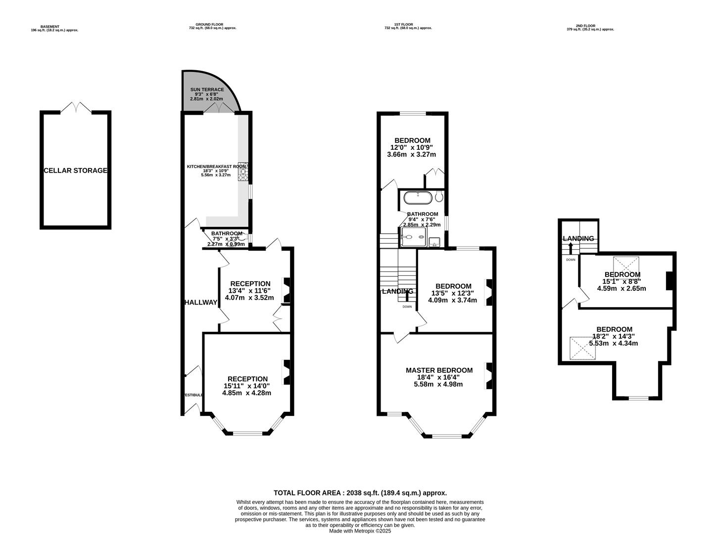
  • A natural five double bedroom property offering a generous footprint (approx. 1845 sq.ft.)
  • Two reception rooms plus a large kitchen/diner with bespoke quadrant balcony
  • Pretty, characterful garden with rear access
  • Full-width bay-fronted master bedroom
  • Located on a popular road, close to the Downs
  • Westbury Park School and Redland Green School nearby
  • Offered with no onward chain
  • Retaining attractive original detailing in many areas, particularly notable being the cornicing



Share:

Rich in original features throughout and offered with no onward chain, this five-bedroom property enjoys a prime location within easy reach of Redland Green and Westbury Park Infant and Junior School.

Hall Floor -

Entered via the vestibule, retaining original tessellated floor and attractive architrave; the hall floor presents two reception rooms, cloak room and kitchen/breakfast room.

The bay-windowed front reception room is especially impressive, retaining a wealth of original detailing including sandstone fire surround with cast iron fireplace and wrought iron dog grate, stunning cornicing, picture rails, sash windows, and attractive stain glass top lights.

A second reception room offers a charming exposed brick chimney breast fitted with bespoke oak doors housing good storage options, and direct access to a delightful, secluded garden.

A dual-aspect kitchen/breakfast room with stunning cornicing retained, is located to the rear, providing ample space for dining and appliances including a fitted AGA cooker, and featuring double doors opening onto a bespoke quadrant balcony overlooking the garden.

A conveniently positioned understairs cloak room completes the hall floor.

First Floor -

Ascending to the first floor, you will discover three bedrooms and the bathroom accessed from a split-level landing.

The principal bedroom is particularly notable, featuring a striking bay window inviting in plentiful natural light, and feature fireplace to the far wall. Bedrooms two and three are also double bedrooms, both with built-in storage.

Completing this level is the family bathroom, a characterful space boasting exposed stripped oak floorboards, the original cast iron bath, elegant stone tiling, and a contemporary continental-style walk-in shower.

Second Floor -

75 Devonshire Road has the benefit of providing a second floor that is an original feature of the property. Both bedrooms located on this level accommodate double beds, and the front-facing bedroom offers an attractive original dormer to the front elevation. Additionally, both bedrooms features good eaves storage options.

Externally -

Approached from roadside into a small front garden via original gated entrance with block paving, fronted by a low-level stone wall with retained original wrought-iron railings, immediately you will note the handsome nature of the building - adorned by a mature Wisteria in the front patio. This particular property benefits from its position sitting opposite Ladysmith Road; allowing in more natural light into the property in the winter months and providing a more open aspect from the lounge, master and second floor bedroom.

To the rear is a lovely rear garden benefitting from rear access, additionally accessed from the dining room. A characterful space, from the garden there is also access to a large under-croft offering extensive storage.

Schools -

Westbury Park School - Distance: 0.14 miles
Henleaze Junior School - Distance: 0.47 miles
Redland Green School - Distance: 0.53 miles

Location -

Westbury Park is a charming residential neighbourhood known for its Victorian architecture and family-friendly atmosphere. The area features well-maintained homes and gardens, creating a picturesque suburban setting.

Residents enjoy the community feel with local schools, parks, and amenities within easy reach including a Waitrose and local cinema. Coldharbour Road and Henleaze Road are within walking distance, serving as central hubs offering a vibrant mix of independent shops, cafes, and boutiques. North View is host to highly regarded restaurants in the form of Little French and Prego.

Green spaces like Redland Green and Durdham Downs provide opportunities for outdoor activities, contributing to the neighbourhood’s appeal. Well-connected to Bristol's city centre, Westbury Park maintains a peaceful residential character while ensuring convenient access to amenities and transportation. It is a sought-after destination for those seeking classic charm, community spirit, and modern convenience.

EPC Graph for Devonshire Road | Westbury Park