27, Eastfield, Henleaze, Bristol, BS9 4BG

£750,000 - Sold

3 1 2
  • A three-bedroom, semi-detached family home
  • Well-presented accommodation
  • Open-plan kitchen/diner
  • Extensive, westerly-facing rear garden
  • Driveway and single garage
  • Modern bathroom
  • Scope to extend further
  • Situated in a sought-after area for families
  • Sat conveniently between the high streets of Henleaze and Westbury-on-Trym
  • Beautiful green spaces of the Downs nearby



Share:

A thoughtfully renovated three-bedroom family home with westerly-facing garden, garage and parking. Located within a sought-after pocket of Henleaze.

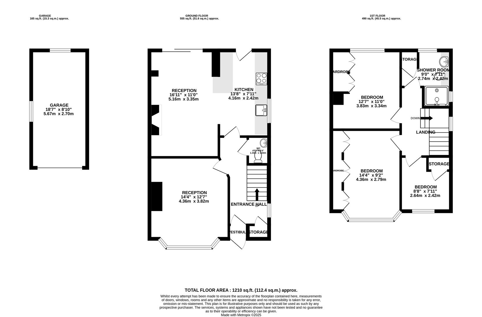
Ground Floor -

The property is accessed via an entrance vestibule, offering hanging space for coats and leading directly into a spacious entrance hall with original oak parquet flooring, storage cupboard and stairs rising to the first floor. There is also access to a recently-modernised downstairs WC, comprising sink and toilet.

The hall then leads into a large front reception room with electric feature fireplace and a sizeable bay window overlooking the front gardens.

Towards the rear of the property is a open-plan, extended kitchen/living area, benefitting from a westerly-facing aspect. The living space is bright and open, with sliding doors to the rear garden, and provides ample space for a dining table and further lounge area centred around a wood-burning stove. The kitchen has been thoughtfully designed to suit the space, and comprises a range of wall and base-mounted units with work surfaces and shaker-style fronts. Integrated appliances include a dishwasher, electric oven, electric hob with extractor, and additional space for a fridge/freezer and washing machine. This space benefits from wood-effect flooring throughout, and a door leads onto the sunny rear patio.

First Floor -

Upstairs, there are two large double bedrooms, both with an abundance of fitted storage, as well as a third single bedroom/office with a fitted cupboard and front-aspect views over Eastfield; all of which are accessed from a light and bright landing benefitting from a side aspect window. The shower room has been recently updated, and comprises a three-piece suite of toilet, sink with vanity unit and fitted drawers, and a large shower cubicle with mains shower over. This space benefits from dual-aspect frosted windows and access to the airing cupboard.

Externally -

From Eastfield, the property is approached via a sizeable driveway offering parking for multiple vehicles, with double wooden gates to the side access. The front garden is a well-maintained, lawned area with attractive borders.

To the rear, the driveway continues through the side access to a single garage benefitting from light and power, with up-and-over door and side door. The westerly-facing rear garden is an excellent size and has been beautifully manicured by the current owners; comprising an expansive lawned area, patio, as well as a pretty, shaded area towards the bottom of the garden which has been laid to stone chippings and offers further seating options.

Vendor's Comments -

"We've always loved the location here – being so close to the shops in both Henleaze and Westbury-on-Trym is really handy, and it's such a quiet road to live on. The neighbours are all friendly too, and the annual street party is always a highlight. The way the house is positioned means the garden and patio get lovely sunshine from late morning right through the evening, and it's great that the garden isn't overlooked. Inside, the house stays really warm thanks to the good insulation, and the log burner is brilliant for making it extra cosy when you need it."

Location -

Henleaze is a suburban gem with good quality housing largely developed in the 1930s, with Edwardian and Victorian streets on its fringes. The neighbourhood boasts a tranquil atmosphere, featuring green spaces like Henleaze Lake, Horfield Common, and of course the Downs - offering residents a wealth of picturesque walks.

The bustling Henleaze Road high street boasts a wide range of independent shops, cafes, butchers and greengrocers, with Waitrose and the cinema sat on Northumbria Drive. North View, located at the end of Northumbria Drive is home to highly regarded Little French and Prego restaurants.

The neighbourhood’s reputation for excellent local schools makes it particularly appealing for families. With good connectivity to Bristol's city centre, Henleaze offers a blend of residential charm and superb convenience.

Schools -

Redmaids' High School - Distance: 0.1 miles
E-Act St Ursula's Academy - Distance: 0.29 miles
Badminton School - Distance: 0.48 miles
Bristol Free School - Distance: 0.7 miles

EPC Graph for Eastfield | Henleaze