Lawrence Avenue, Easton, Bristol, BS5 0LE

£1,000pcm - Let Agreed

  • New Development of 3 Units
  • 770 ft² - 1,242 ft²
  • Roller Shutter Access
  • Allocated Parking
  • Secure and Central Location



Share:

An exiting development of 3 small workshops situated in a central location just off St Mark's Road in Easton. The units provide between approx. 770 ft² and 1,242 ft² and each benefit from toilet and kitchen facilities, roller shutter access and allocated parking.

DESCRIPTION -

An exiting development of 3 small workshops situated in a central location. The units provide between approx. 770 ft² and 1,242 ft² and each benefit from toilet and kitchen facilities, roller shutter access and allocated parking,.

LOCATION -

The units are located just off St Mark's Road in Easton.

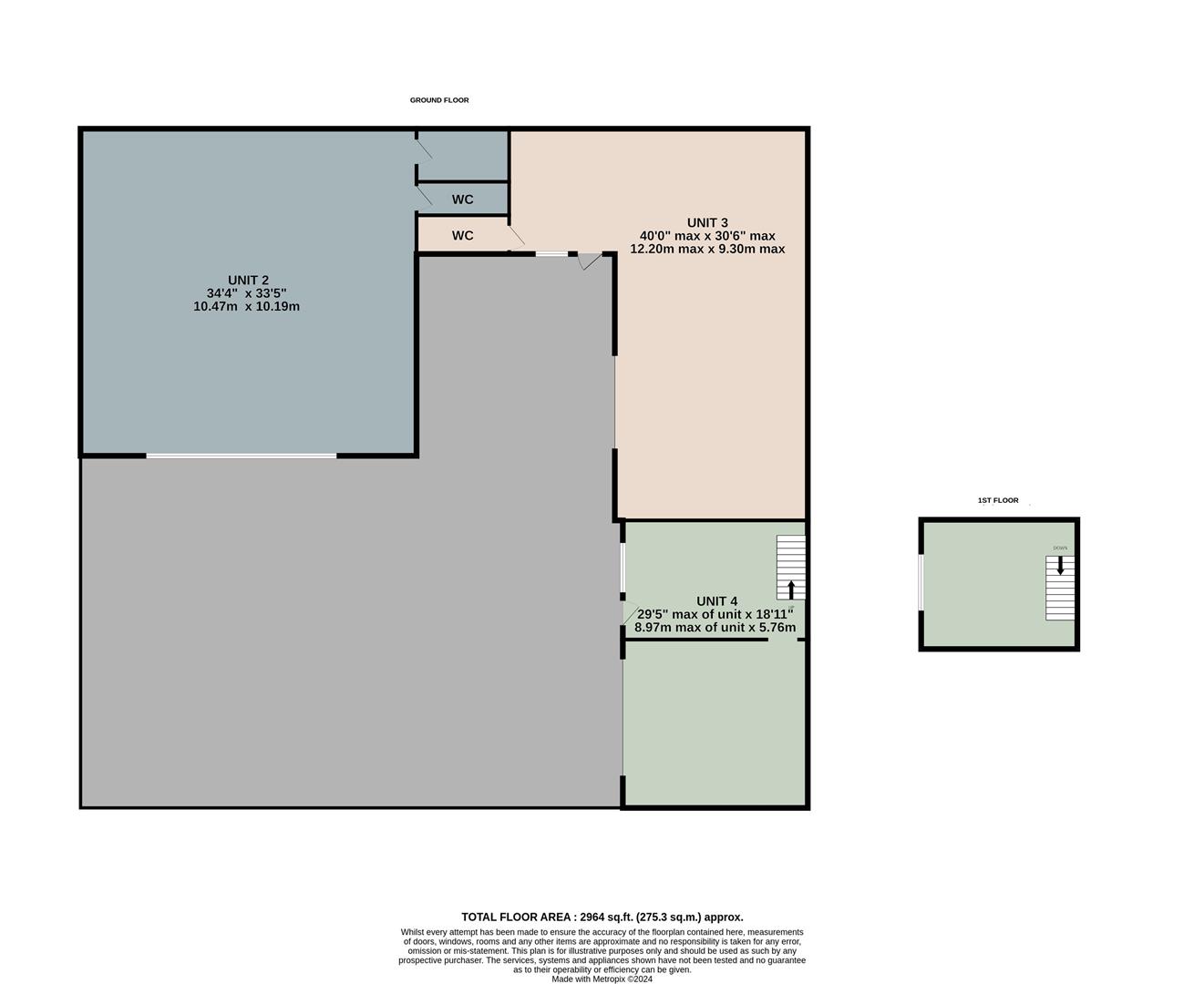
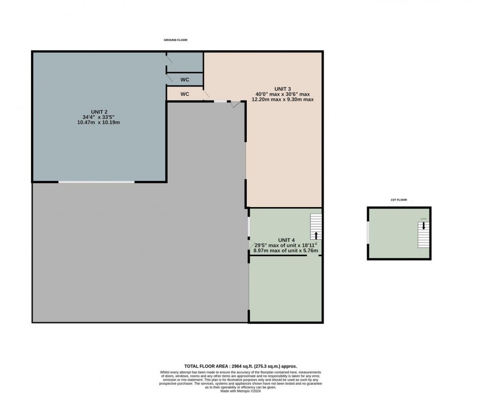
AVAILABLE UNITS -

Unit 2 (approx. 1,242 ft² / 115.4 m²): £1,150pcm (£13,800pa)
Unit 3 (approx. 950 ft² / 88.3 m²): £1,000pcm (£12,000pa)
Unit 4 (approx. 770 ft² / 71.5 m²): £800pcm (£9,600pa)

BUSINESS RATES -

To be confirned.

ENERGY PERFORMANCE CERTIFICATES -

Unit 1 & 2: D - Valid to July 2034.
Unit 3: D - Valid to July 2034.
Unit 4: D - Valid to July 2034.

FLOOR PLAN -

The floor plans and Schedule of Areas are provided for indicative purposes only and should not be relied on.

TENANT APPLICATION FEE -

The ingoing tenant will be charged an application fee of £300 plus VAT (£360 inc VAT) towards the costs incurred in undertaking appropriate credit and reference checks. Accounts will be requested where available and a deposit and/or personal guarantee may be required.

VAT -

All figures quoted are exclusive of VAT unless otherwise stated.

VIEWINGS -

By appointment.

LEASE DETAILS -

The units are available to let on new Repairing and Insuring basis for a term in the region of 3-5 years. Each party to incur their own respective legal fees.

The tenants will be liable for their share of electric use (calculated by way of sub meters). Water and a share of any communal costs, such as the buildings insurance premium, will be charged on a fair proportion basis. However, there will not be a monthly service charge as such.

CODE FOR LEASING BUSINESS PREMISES -

We advise all interested parties to refer to the RICS Code for Leasing Business Premises, link available via our website.

CONTROL OF ASBESTOS REGULATIONS -

As per the Control of Asbestos Regulations 2012, the owner or tenant of the property, or anyone else who has control over it and/or responsibility for maintaining it, must comply with the regulations which may include the detection of and/or management of any asbestos or asbestos related compounds contained at the property. Maggs & Allen has not tested or inspected for Asbestos and therefore recommend all interested parties to make their own enquiries.