83, Lake Road, Henleaze, Bristol, BS10 5JE

Asking Price £675,000 - Sold

3 1 2
  • An extended and much-improved 1930s semi-detached residence
  • Sizeable, south westerly-facing rear garden
  • Extended kitchen/diner with bi-folding doors opening to rear garden
  • Large driveway with garage
  • Views of Henleaze Swimming Lake
  • Four-piece family bathroom
  • Offered with no onward chain
  • A much-sought after location



Share:

An attractive, extended 1930s three-bedroom home backing directly onto Henleaze Swimming Lake. Offering an open plan kitchen/diner and expansive, westerly-facing rear garden. Situated on an ever-popular road within Henleaze, offered to the market with no onward chain.

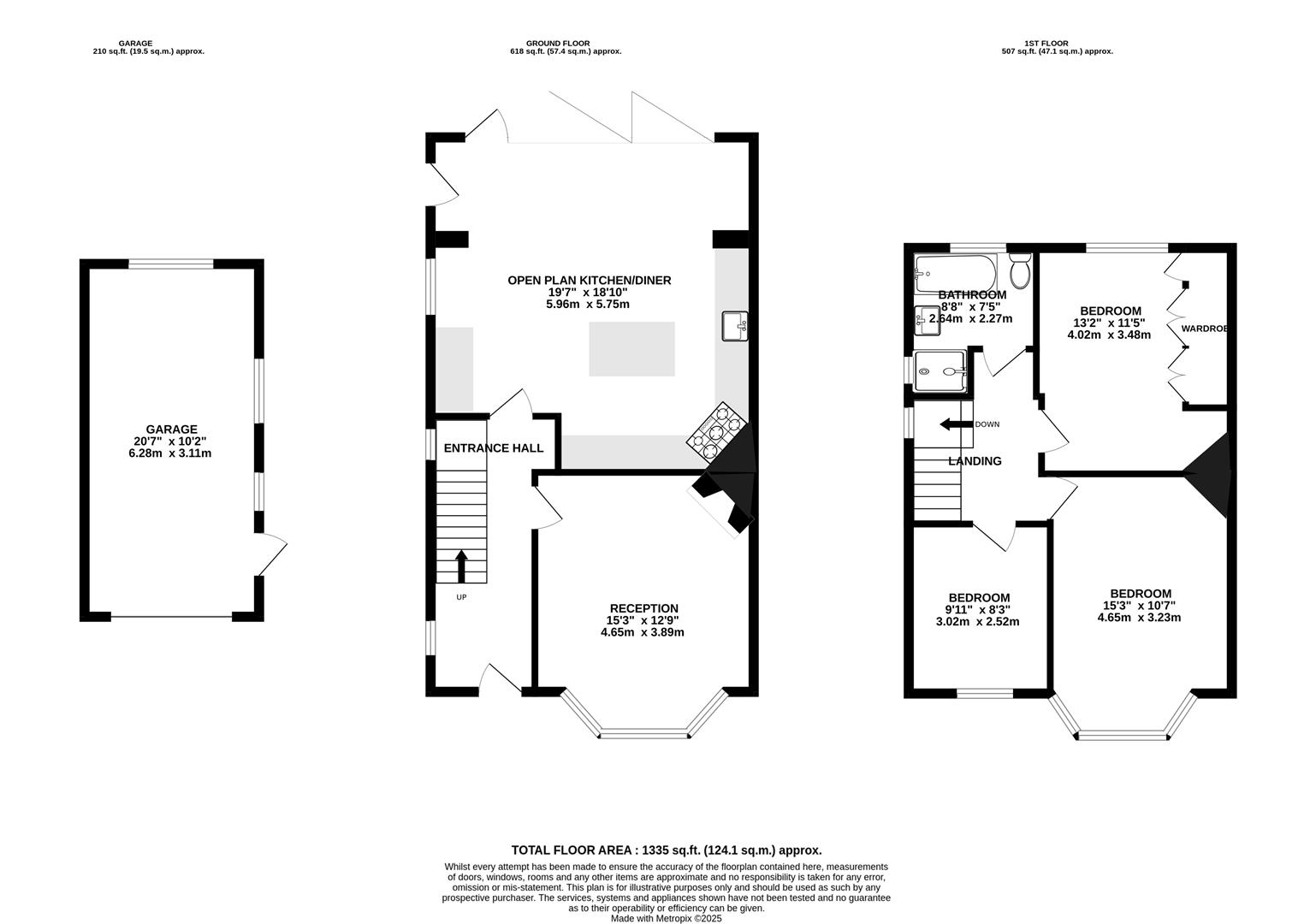
Ground Floor -

The ground floor opens into a wide entrance hall, with stairs rising to the first-floor landing and doors leading to the main living areas. This in turn leads into a spacious, bay-fronted lounge offering a range of traditional 1930s features such as a corner fireplace and original exposed ceiling beams. Towards the end of the hallway, an internal door opens into the hub of the home; a beautifully-extended, bright and generous kitchen/diner with bi-folding doors opening onto the sunny, westerly-facing rear garden. The kitchen was fitted in September 2022, and comprises a matching range of wall and base-mounted units with centre island, fronted with shaker style doors and quartz work surfaces. Integrated appliances include a full-sized dishwasher, undermount sink, fridge/freezer and extractor over the hob, as well as space for a range cooker. A handy floor-to-ceiling utility cupboard offers space and plumbing for a washing machine and tumble dryer.

First Floor -

A dogleg staircase rises to a bright landing area with window to side, providing access to the bedrooms and bathroom. All three bedrooms are of generous proportions, two of which are spacious doubles. The master bedroom benefits from a large bay window to front, and the second bedroom houses large built-in wardrobes with a window overlooking the rear garden and lake beyond. The third bedroom is a large single, which could also be used as an office or study. The bathroom was also fitted in September 2022, and comprises a well-fitted four piece suite of toilet, bath, sink with vanity unit and large shower cubicle. The room has been partially tiled, with wood effect flooring and extractor fan.

Externally -

From Lake Road, the property is entered via a large, block-paved driveway with double wooden gates opening to the side access, where you will find a further off-road parking area and single garage with up-and-over door.

To the rear, and perhaps one of the best features of the property, is an expansive, westerly-facing rear garden which backs directly onto Henleaze Swimming Lake. The garden is primarily laid to lawn and scattered with mature shrubs and fruit trees, with a recently-fitted patio area accessed directly from the bi-folding doors. A side door opens into the garage, and a gate opens to the side access. To the rear of the garden, you will find attractive views of the lake.

Location -

Henleaze is a suburban gem with good quality housing largely developed in the 1930s, with Edwardian and Victorian streets on its fringes. The neighbourhood boasts a tranquil atmosphere, featuring green spaces like Henleaze Lake, Horfield Common, and of course the Downs - offering residents a wealth of picturesque walks.

The bustling Henleaze Road high street boasts a wide range of independent shops, cafes, butchers and greengrocers, with Waitrose and the cinema sat on Northumbria Drive. North View, located at the end of Northumbria Drive is home to highly regarded Little French and Prego restaurants.

The neighbourhood’s reputation for excellent local schools makes it particularly appealing for families. With good connectivity to Bristol's city centre, Henleaze offers a blend of residential charm and superb convenience.

Schools -

Badocks Wood E0ACT Academy approx. 0.3 miles
Horfield Church of England Primary School approx. 0.3 miles
Westbury-on-Trym Church of England Academy approx. 0.4 miles
Bristol Free School approx. 0.5 miles
Redmaids High School approx. 0.5 miles

Vendor's comments -

This is a wonderful home. It has a cottage style feel but is a light, airy and spacious house. We love the light coming in from many directions and the morning sun in the living room. We love the combination of modern and yet traditional. It has always felt very unique and full of character. We have loved sitting in the garden enjoying the sounds of the birds, the view of the lake and having the sun until late evening in the summer months. We would entertain regularly in the new kitchen-diner with its view onto the garden lawn and many trees and flowers. We picked the fruits and berries to make pies and crumbles. We would often read in the summer house where it is warm and quiet. Our children loved the freedom of being able to roam in the garden which felt like being out in the countryside whilst in fact being in a city close to everything you need. We were lucky to have Henleaze Road on our doorstep with its variety of shops and would often go for walks in the beautiful Badocks Woods behind the house with its beautiful Autumn colours, bridges and river. There is also a lovely supportive community around Lake Road and the adjoining roads.

EPC Graph for Lake Road | Henleaze