Clifton Down Road, Clifton, Bristol, BS8 4AL

£17,520 Per Annum - To Let

  • Period office block
  • Clifton Village
  • 2 office suites available
  • Approx. 440 sq ft (per office)



Share:

These charming period offices, set within a historic building located in Clifton Village. Each office retains classic architectural features while offering modern amenities to meet your business needs. Offered to let on an effectively all inclusive basis.

DESCRIPTION -

These charming period offices, set within a historic building, provide a unique and inspiring work environment. Each office retains classic architectural features while offering modern amenities to meet your business needs. The last available office measures approximately 276 sq ft and is offered to let on an effectively all inclusive basis.

LOCATION -

The offices are ideally located in Clifton Village, close to the scenic expanse of The Downs. Clifton Village is a charming and historic area in the city of Bristol, known for its picturesque streets, vibrant community, and unique architectural heritage. This affluent neighborhood offers a mix of independent shops, cafes, and restaurants, making it a popular destination for both locals and visitors.

CURRENT AVAILABILITY -

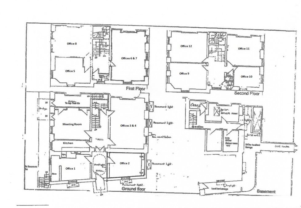
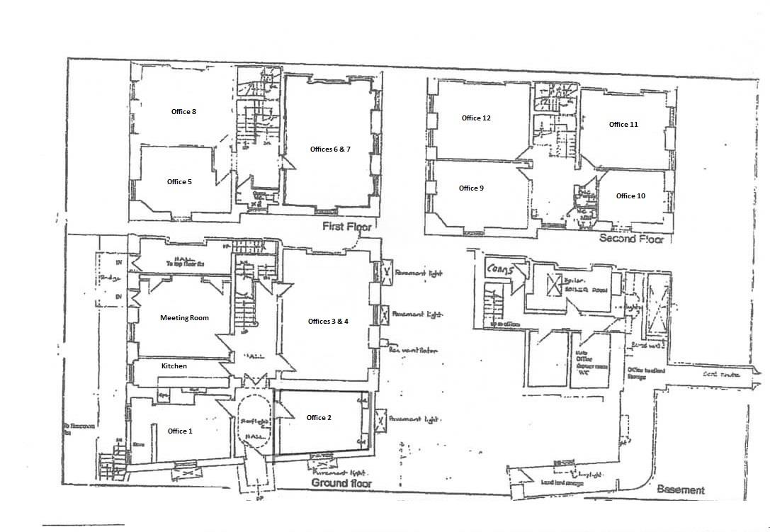
Suite 3 & 4 - £1,460pcm (approx. 440 sq ft)
Suite 6 & 7 - £1,460pcm (approx. 440 sq ft)

LEASE DETAILS -

The offices are available to let inclusive of services, broadband, 24/7 access, secure fibre broadband, use of kitchenette, shower and toilet facilities, cleaning/waste disposal and use of the meeting room.

BUSINESS RATES -

We understand the office suites are eligible for small business rate relief. However, we advise all interested parties to confirm directly with the local authority.

ENERGY PERFORMANCE CERTIFICATE (EPC) -

We understand as the property is a listed building an EPC is not required.

FLOOR PLAN -

The floor plan is provided for indicative purposes only and should not be relied upon.

VAT -

We understand that VAT is not applicable.

VIEWINGS -

By appointment with Maggs & Allen.

TENANT APPLICATION FEE -

The ingoing tenant will be charged an application fee of £250 plus VAT (£300 inc VAT) towards the costs incurred in undertaking appropriate credit and reference checks. Accounts will be requested where available and a deposit and/or personal guarantee may be required.

CONTROL OF ASBESTOS REGULATIONS -

As per the Control of Asbestos Regulations 2012, the owner or tenant of the property, or anyone else who has control over it and/or responsibility for maintaining it, must comply with the regulations which may include the detection of and/or management of any asbestos or asbestos related compounds contained at the property. Maggs & Allen has not tested or inspected for asbestos and therefore recommend all interested parties to make their own enquiries.

CODE FOR LEASING BUSINESS PREMISES -

We advise all interested parties to refer to the RICS Code for Leasing Business Premises, link available via our website.