High Street, Staple Hill, Bristol, BS16 5HH

£950pcm - Let Agreed

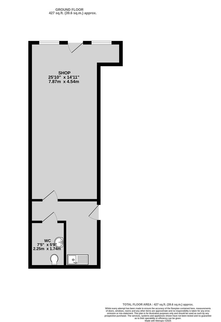
  • Newly refurbished shop
  • Approximately 427 sq ft
  • Busy trading position
  • Use class E



Share:

This newly refurbished and well presented ground floor retail unit/office space offers approximately 427 sq ft of versatile accommodation. The premises are designed with an open plan layout, providing a bright and flexible space that can be easily adapted to suit a variety of business needs. It also benefits from rear toilet facilities and kitchenette, ensuring comfort and practicality for daily operations.

The property falls under Use Class E, making it suitable for a wide range of commercial activities, including retail, office, and other business uses, subject to consent. Offered to let on an effectively new full repairing and insuring basis.

DESCRIPTION -

This newly refurbished and well presented ground floor retail unit/office space offers approximately 427 sq ft of versatile accommodation. The premises are designed with an open plan layout, providing a bright and flexible space that can be easily adapted to suit a variety of business needs. It also benefits from rear toilet facilities and kitchenette, ensuring comfort and practicality for daily operations.

The property falls under Use Class E, making it suitable for a wide range of commercial activities, including retail, office, and other business uses, subject to consent.

LOCATION -

The property is situated in a highly visible and bustling trading position on High Street, Staple Hill, ensuring maximum foot traffic and exposure to passing customers. This great location places the unit at the heart of a vibrant commercial area, surrounded by a mix of established local businesses, retail outlets, and amenities, making it an ideal spot for a range of commercial ventures.

LEASE DETAILS -

The shop is available to let on a new full repairing and insuring Lease. Each party to incur their own respective legal fees.

BUSINESS RATES -

The rateable value with effect from April 2023 is £11,500, although the shop has been since reduced in size. We therefore would expect those eligible for small business relief to benefit from 100% exemption at this time. However, we advise all interested parties to confirm directly with the local authority.

ENERGY PERFORMANCE CERTIFICATE (EPC) -

EPC rating: D (valid until March 2033)

FLOOR PLAN -

The floor plan is provided for indicative purposes only and should not be relied upon.

VAT -

All figures quoted are exclusive of VAT unless otherwise stated.

VIEWINGS -

By appointment.

TENANT APPLICATION FEE -

The ingoing tenant will be charged an application fee of £300 plus VAT (£360 inc VAT) towards the costs incurred in undertaking appropriate credit and reference checks. Accounts will be requested where available and a deposit and/or personal guarantee may be required.

CONTROL OF ASBESTOS REGULATIONS -

As per the Control of Asbestos Regulations 2012, the owner or tenant of the property, or anyone else who has control over it and/or responsibility for maintaining it, must comply with the regulations which may include the detection of and/or management of any asbestos or asbestos related compounds contained at the property. Maggs & Allen has not tested or inspected for Asbestos and therefore recommend all interested parties to make their own enquiries.

CODE FOR LEASING BUSINESS PREMISES -

We advise all interested parties to refer to the RICS Code for Leasing Business Premises, link available via our website.