***SHORT TERM LEASE AVAILABLE***
Offices of approximately 3,007 sq ft located on Fishponds Road, thoughtfully arranged across three levels. The ground floor provides convenient access to the building, featuring a combination of practical storage space and flexible office areas. The first and second floors are dedicated to office space, offering ample room for various professional needs and configurations.
Additional advantages of the property include secure parking facilities, ensuring peace of mind for both employees and visitors. There is also rear access to the building. 
Alternative uses may also be considered, subject to consent.
Offered to let on an effectively new full repairing and insuring basis.
                                        
                                        DESCRIPTION -  
                                        This property offers a total of approximately 3,007 sq ft of office space, thoughtfully arranged across three levels. The ground floor provides convenient access to the building, featuring a combination of practical storage space and flexible office areas. The first and second floors are dedicated to office space, offering ample room for various professional needs and configurations.
Additional advantages of the property include secure parking facilities, ensuring peace of mind for both employees and visitors. There is also rear access to the building. 
Alternative uses may also be considered, subject to consent.
                                        
                                        LOCATION -  
                                        The property is situated in a highly prominent position on Fishponds Road. A wide range of local amenities are available on the doorstep including Natwest Bank, Coffee #1 and both Aldi and Lidl Supermarkets.  Excellent transport links are also provided to the city centre.
                                        
                                        LEASE DETAILS -  
                                        The offices are available to let on an effectively new full repairing and insuring basis. Short term lease available.
                                        
                                        BUSINESS RATES -  
                                        The rateable value with effect from April 2023 is £20,750.
                                        
                                        ENERGY PERFORMANCE CERTIFICATE (EPC) -  
                                        EPC rating: D (expires February 2025)
                                        
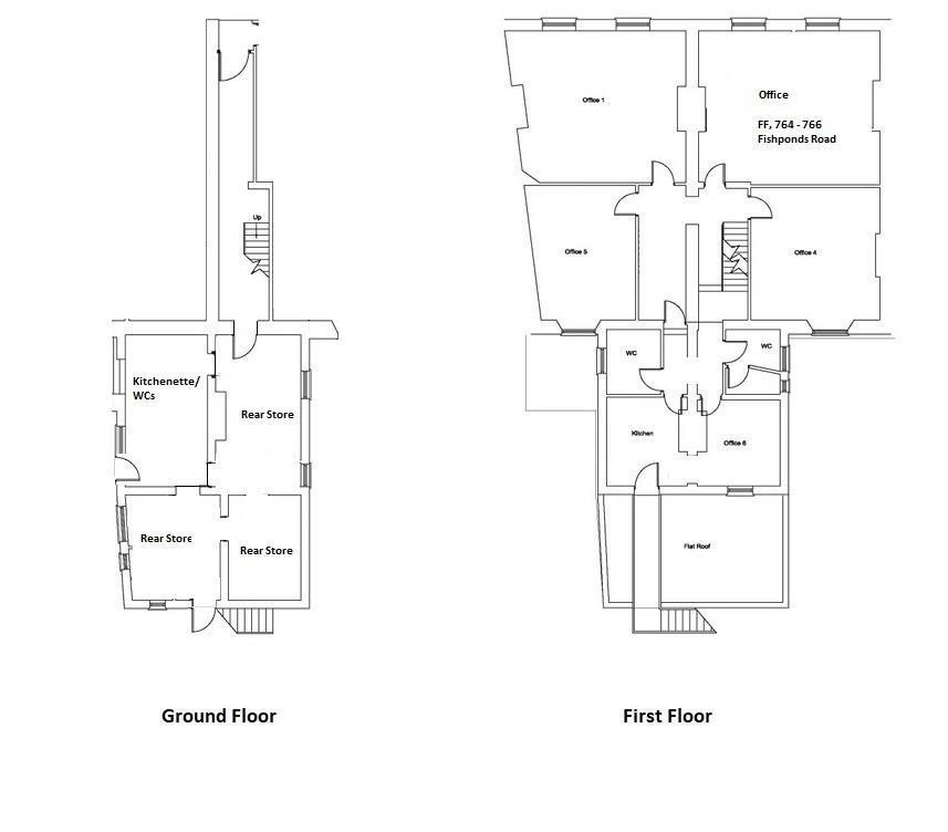
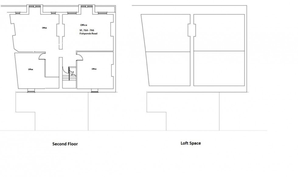
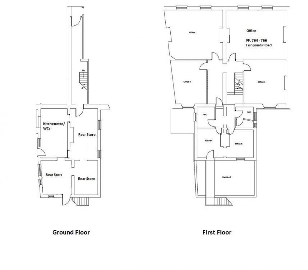
                                        FLOOR PLAN -  
                                        The floor plan is provided for indicative purposes only and should not be relied upon.
                                        
                                        VAT -  
                                        All figures quoted are exclusive of VAT unless otherwise stated.
                                        
                                        VIEWINGS -  
                                        By appointment with Maggs & Allen.
                                        
                                        TENANT APPLICATION FEE -  
                                        The ingoing tenant will be charged an application fee of £300 plus VAT (£360 inc VAT) towards the costs incurred in undertaking appropriate credit and reference checks. Accounts will be requested where available and a deposit and/or personal guarantee may be required.
                                        
                                        CONTROL OF ASBESTOS REGULATIONS -  
                                        As per the Control of Asbestos Regulations 2012, the owner or tenant of the property, or anyone else who has control over it and/or responsibility for maintaining it, must comply with the regulations which may include the detection of and/or management of any asbestos or asbestos related compounds contained at the property. Maggs & Allen has not tested or inspected for Asbestos and therefore recommend all interested parties to make their own enquiries.
                                        
                                        CODE FOR LEASING BUSINESS PREMISES -  
                                        We advise all interested parties to refer to the RICS Code for Leasing Business Premises, link available via our website.