6, Portis Fields, Portishead, Bristol, BS20 6PN

Asking Price £425,000 - Sold Subject to Contract

  • For Sale / To Let
  • Modern Headquarters
  • 10 Allocated Parking Spaces
  • LED Lighting
  • Air Conditioning
  • Countryside Views



Require Finance?

Compare Property Finance from over 100 lenders
Click HERE to start your search

A representive from South West Business Finance will contact you to discuss your options



Share:

A modern two storey semi detached office Head Quarters providing approximately 2,290 ft² (Net Internal Area) with 10 allocated parking spaces. The offices benefit from a modern suspended office ceiling with LED lighting and air conditioning/heating, and stunning views over the neighbouring countryside.

The property is situated in a modern and established business park in Portishead and is available for sale at £425,000, and is also available to let at £30,000pa.

DESCRIPTION -

A modern two storey semi detached office Head Quarters providing approximately 2,290 ft² (Net Internal Area) with 10 allocated parking spaces. The offices benefit from a modern suspended office ceiling with LED lighting and air conditioning/heating, and stunning views over the neighbouring countryside.

This property is available for sale at £425,000, and is also available to let at £30,000pa.

LOCATION -

Portis Fields (also known as Middle Bridge Business Park) is a a modern business park in Portishead, providing easy access to the motorway networks.

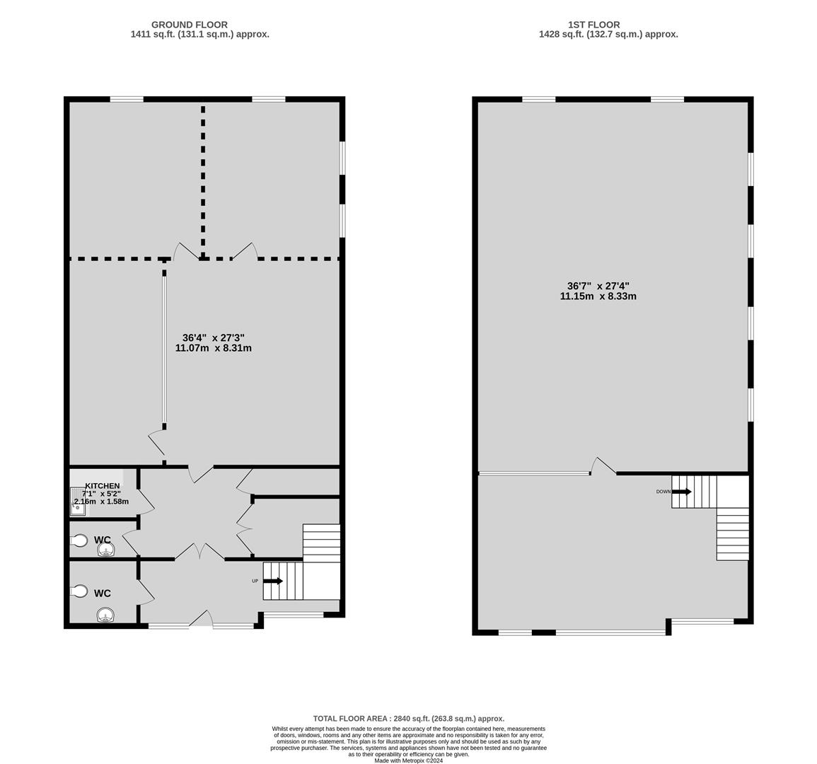
FLOOR AREA -

Ground Floor - Approx 994 ft² (92.3 m²) Net Internal Area
First Floor - Approx. 1,297 ft² (120.5 m²) Net Internal Area
In addition, there is a reception area, male and female toilet facilities, kitchen and under stairs storage area.

FLOOR PLAN -

The floor plan is provided for indicative purposes only and should not be relied upon.

ENERGY PERFORMANCE CERTIFICATE (EPC) -

Rating: B (valid to December 2034).

BUSINESS RATES -

The Rateable Value with effect from April 2023 is £32,750.

TENURE -

The property is available for sale on a freehold basis and with vacant possession. It is alternatively available to let at £30,000pa on a new fully repairing and insuring basis.

VAT -

All figures quoted are exclusive of VAT unless otherwise stated.

VIEWINGS -

By appointment.