1, Vale Court, Pembroke Vale, Clifton, Bristol, BS8 3DN

£465,000 - Sold

2 2 1
  • A large, two-bedroom garden flat in a coveted location
  • Private gardens to front and rear
  • Private, secure garage
  • Sizeable open-plan lounge/diner
  • Two double bedrooms
  • Two bathrooms
  • No onward chain
  • Neutral decor



Share:

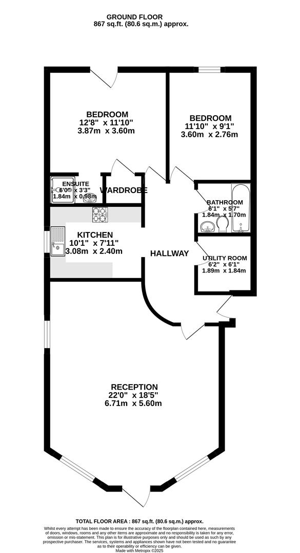
A spacious (approx. 867 sq.ft), light and bright ground floor apartment with private garden to front and rear; and private secure garage. Located on a quiet road off Pembroke Road and offered with no onward chain.

Description -

Vale Court is a modern development of six apartments, though the design of the property externally has been done very tastefully - a façade in keeping with the beautiful period properties that surround the property. Each of the apartments benefits from its own private garage, accessed from the beautiful and quiet road of Pembroke Vale.

The centrally positioned kitchen features a side-facing window and a practical double-galley layout, offering ample worktop space. Its classic, neutral design includes metro tiles, modern white units, an integrated oven and hob, and space for a freestanding fridge/freezer. A wall-mounted gas boiler completes the space. Unusually for the area, the flat also benefits from a separate utility room with a sink and plumbing for a washing machine.

Both bedrooms are spacious doubles at the rear of the development, enjoying morning sun. Neutrally decorated and carpeted, they feature large windows. Bedroom one boasts a built-in wardrobe and an ensuite shower, as well as access to the rear garden; while bedroom two offers space for freestanding furniture. The bathroom includes a three-piece suite comprising shower-over-bath, WC and basin.

One of the highlights of the property is the lounge/diner located at the front of the property; bay-fronted room allowing in plentiful natural light and providing access to the front garden. Measuring 6'7" x 5'6" approx, this is a substnatially larger than average lounge/diner, an excellent space for relaxing and entertaining.

Further benefits include double glazing and gas central heating.

Offered with no onward chain.

Tenure -

We understand the following:
The property is leasehold and there is 960 years remaining on the lease.
Service Charge is £1344 per annum and includes: Buildings insurance, maintenance of common areas, maintenance of fabric of building.
No ground rent.
A management company made up of flat owners own the freehold.

Location -

Perhaps Bristol’s best-known area, Clifton exudes a timeless charm with its historic architecture - predominantly Georgian and Victorian buildings - creating a picturesque and inviting setting. The area is renowned for its green spaces, including the scenic Clifton Downs and the iconic Clifton Suspension Bridge.

Clifton has the rare benefit of being central, with easy access to the centre, but due to its location banking the River Avon, also offering a quick route out of the city towards North Somerset.

Whiteladies Road is host to number of well-regarded furniture shops, cafes, restaurants, pubs and bars and this is likewise the case with the Triangle and Park Street – featuring gorgeous Georgian architecture. A stroll through the Clifton Village is a unique and vibrant shopping experience, characterised by a range of independent shops, boutiques, and cafes that showcase the local businesses.

EPC Graph for Pembroke Vale | Clifton