6, Warminster Road, St. Werburgh's, Bristol, BS2 9UH

Guide Price £475,000
Sold


4 2 2

  • A charming Edwardian mid-terrace
  • Four bedrooms
  • Generous living space
  • A quiet location providing excellent access to the city centre and M32
  • Highly regarded local schools
  • Substantially extended

This charming mid-terrace Edwardian home is nestled in a secluded spot in St Werburghs, and offers excellent living spaces and four bedrooms.

Vendor's Comments -

"The property has been an incredibly happy home for over a decade and a fantastic place to raise our young family. The St Werburgh’s community is truly special, and we’re surrounded by lovely neighbours. The street is quiet but we’re a stone’s throw away to fantastic pubs, the city farm, climbing centres, a lovely school and amazing restaurants. It’s also a short walk into the city centre or the amenities of Gloucester Road. The house itself is a warm and welcoming space, that will bring years of joy to the next occupiers."

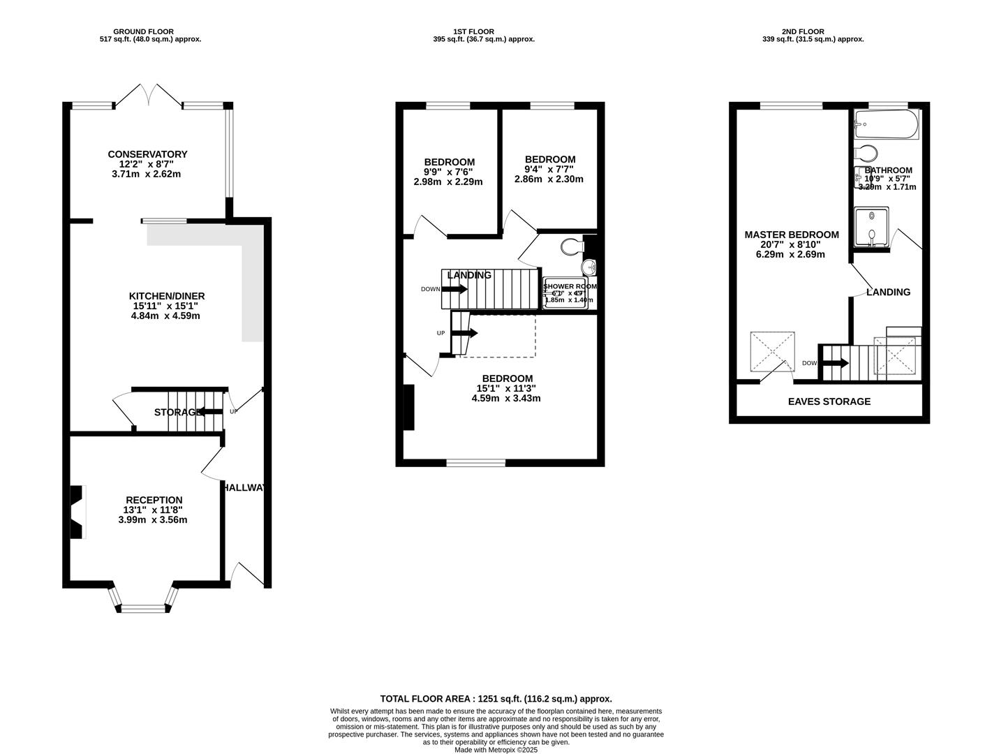
Ground Floor -

The ground floor comprises an entrance hall with wood effect flooring throughout, hanging space for coats and stairs rising to the first floor landing. This is turn leads into the lounge, which offers a cosy, separate living space with bay window to the front elevation and decorative feature mantelpiece and surround, which could be reinstated as a working fireplace.

To the rear of the house, a deceptively-spacious kitchen/diner spans the full width of the property, and provides ample room for cooking, dining and entertaining. The kitchen is fitted with a range of base and wall-mounted units with grey high-gloss fronts and quartz effect working surfaces, and includes integrated electric double ovens, gas hob with extractor fan over, washing machine, full-sized dishwasher and stainless steel sink. Towards the rear of the dining area is a useful under-stairs cupboard, currently housing a freestanding tumble dryer.

At the rear of the property is a conservatory, which in turn leads to the rear garden.

First Floor -

The first floor encompasses a spacious double bedroom, as well as two single bedrooms and a family bathroom, with the fourth bedroom currently being utilised as a home office by the current owners. The bathroom is fully-tiled and comprises toilet with concealed cistern, sink with vanity unit and bath with mixer tap and rainfall shower over. From the landing, a staircase rises to the second floor.

Second Floor -

A sizeable loft conversion with dormer extension carried out by the current owners to provide a sizeable master bedroom and four-piece bathroom suite. The bedroom spans the length of the second floor, benefitting from dual-aspect views with a large window to the rear of the property and skylight to the front elevation. From the bedroom, there is access to eaves storage. The bathroom is beautifully fitted, with a white suite comprising toilet, sink with vanity unit, standalone bath and walk-in shower with rainfall shower over. The floors are fully tiled, with partially tiled walls and window to rear.

Externally -

The front of the property comprises a small courtyard space, with low-level wall and path to front door.

To the rear is a private, low-maintenance garden accessed from the conservatory. The garden is primarily laid to artificial turf with a patio area.

Schools -

St Werburgh's Primary School - Distance: 0.1 miles
Evergreen Primary Academy - Distance: 0.24 miles
Fairfield High School - Distance: 0.4 miles

Location -

Sandwiched between Montpelier, Ashley Down and St. Pauls – St Werburgh’s has a distinct character of its own.

Housing in St Werburgh’s, Bristol, was largely built in the late 19th and early 20th centuries to accommodate the population growth due to Bristol’s industrial expansion. Perhaps the most recognisable example of this is the partially still-standing Brooks Dye Works, which has recently been re-developed into a modern housing development. As a result, the property now boasts a range of Victorian, Edwardian, modern, and unique eco-friendly housing.

Today, St Werburgh’s is known for its strong community spirit, eco-friendly initiatives and alternative culture. For families, Fairfield High and St Werburgh’s Primary School are highly regarded, and the City Farm is a popular destination.

Food & drink in the area doesn’t disappoint either; Better Foods, The Farm, Wiper & True, Namak are just a few of the popular go-to’s in the area.

With an array of beautiful homes, popular cafes, pubs, and green spaces – the area has unsurprisingly become a popular destination for families and young professionals wanting to enjoy a central location with real charm.

EPC Graph for Warminster Road | St Werburghs