Flat 5, 18-19, Park Mansions, Meridian Place, Clifton, Bristol, BS8 1JJ

£265,000 - For Sale

1 1 1
  • One-bedroom flat
  • Superb Clifton location, walking distance to Clifton Village and The Triangle
  • Grade II listed building
  • Approx 600 sq.ft.
  • Double bedroom
  • Separate kitchen and living space
  • Modern bathroom
  • No onward chain



Share:

Situated moments from the Triangle, with Clifton Village just a short walk away, Park Mansions offers a superb location. An ideal first time purchase, offered with no onward chain.

Property Description -

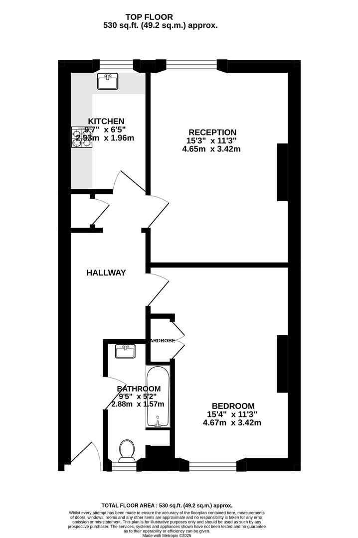
Occupying the upper floor of a handsome Grade II listed building, this one-bedroom apartment offers good square footage (approx. 596 sq.ft), in a tremendous location.

Entering into the hallway, immediately to the right can be found a three-piece bathroom comprising WC, basin and bath complemented by blue metro tiling. Adjacent is the bedroom, with storage cupboard, sash window and hard wood effect flooring.

Unlike many one-bedroom flats, this has the benefit of a separate living area and kitchen. The living area benefits from a large sash window inviting in plentiful natural light, feature archway recess and fitted with hard flooring. Adjacent, the kitchen is fitted with a range of matching grey base and wall-mounted units.

The owners have made a number of improvements to the property, installing a new bathroom in 2020; re-plastering, decorating and new flooring in new rooms in 2021. Further to this, the building has recently had the roof replaced and there are plans to decorate the communal stairwell this year.

Offered to the market with no onward chain.

Vendor's Comments -

The flat is located in a fantastic area, in walking distance to the city centre and The Triangle. Good local facilities include a gym, swimming pool, shops. Added to that we have really good neighbours who are all long term renters, or owner-occupied.

Tenure -

We understand the property is leasehold.

Service charge is £1,876 annually and includes: Communal areas maintenance, communal areas cleaning, general maintenance of building and fire alarm testing.

Clifton -

Clifton exudes a timeless charm with its historic architecture, predominantly Georgian and Victorian buildings, creating a picturesque and inviting atmosphere. The area is renowned for its green spaces, including the scenic Clifton Downs and the iconic Clifton Suspension Bridge, offering residents ample opportunities for outdoor activities and leisurely strolls.

Whiteladies Road is host to number of well regarded furniture shops, cafes, restaurants, pubs and bars and this is likewise the case with the Triangle and Park Street – featuring gorgeous Georgian architecture.

A stroll through the Clifton Village reveals a unique and vibrant shopping experience, characterized by a range of independent shops, boutiques, and cafes that showcase the local businesses. Residents benefit from good transport links, including buses and local train services, facilitating convenient travel within the city. For those with a penchant for exploration beyond Clifton, major roads are easily accessible.

EPC Graph for Meridian Place | Clifton