44, High Street, Shirehampton, Bristol, BS11 0DJ

Auction Guide £325,000 - Sold

  • SOLD FOR £350,000 - 20 March Auction
  • Freehold Mixed-Use Investment
  • Ground floor cafe / 3-bedroom maisonette / lock-up garage
  • Cafe let at £16,200 PA / Maisonette Vacant
  • Potential annual rent of circa £33,600



Share:

A mixed use investment property arranged as a recently refurbished ground floor cafe/lounge with a 3 bedroom maisonette above. The cafe is let at £16,200pa and the maisonette is offered for sale with vacant possession although we consider the market rent to lie in the region of £1,300-£1,400pcm. In addition, there is a single lock up garages to the rear which is let at £50pcm.

The property therefore offers the potential to produce a total annual rent in the region of £33,000pa.

FOR SALE BY AUCTION -

This property is due to feature in our online auction on 20 March 2025 at 6.00pm. Bidding is via proxy, telephone or online remote bidding.

VIEWINGS -

By appointment.

SUMMARY -

SOLD FOR £350,000 - FREEHOLD MIXED-USE INVESTMENT

DESCRIPTION -

A mixed-use investment property arranged as a recently refurbished ground floor cafe with a 3-bedroom maisonette above. The cafe is let at £16,200pa and the maisonette is offered for sale with vacant possession although we consider the market rent to lie in the region of £1,300-£1,400pcm. In addition, there is a single lock up garages to the rear which is let at £50pcm.

The property therefore offers the potential to produce a total annual rent in the region of £33,600pa.

LOCATION -

The property is situated in a prominent position on Shirehampton High Street in a mixed parade opposite Co-operative supermarket. On-street parking is available immediately in front of the property and excellent transport links are provided to the city centre, A4 and the motorway network.

ACCOMMODATION -

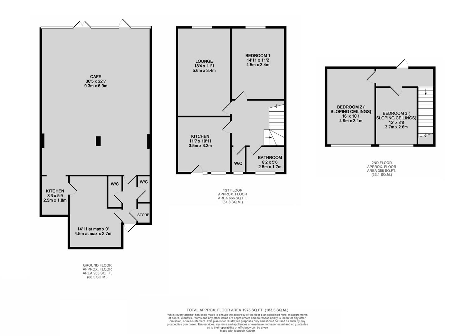
Please refer to floorplan for approximate room measurements and internal layout.

SHOP -

The ground floor is let at £16,200pa on a 21 year term from January 2007, year term with 3 yearly rent views.

MAISONETTE -

The maisonette is offered for sale with vacant possession although we consider the market rent to lie in the region of £1300-£1400pcm.

GARAGE -

There is a single lock up garage located to the rear of the shop which is let at £50pcm.

TENURE -

The property is for sale on a freehold basis, subject to the ground floor cafe lease and garage tenancy.

COMPLETION -

Completion for this lot will be 4 weeks from exchange of contracts or sooner by mutual agreement.

ENERGY PERFORMANCE CERTIFICATES (EPCs) -

EPC Ratings:
Ground Floor Shop - D (expires June 2029)
Maisonette - E

LETTING - WHAT CAN MAGGS & ALLEN ACHIEVE FOR YOU? -

Maggs & Allen's experienced letting team are happy to discuss the rental of this property and can advise on maximising the investment. We offer Full Management, Let Only and Rent Collection Services. Contact Jessica Archer and her team on 0117 9499000 or email lettings@maggsandallen.co.uk.

AUCTION OR BRIDGING FINANCE REQUIRED? -

Do you need a mortgage or loan quickly? Maggs & Allen have specialist Independent Brokers who can arrange residential and commercial finance on all types of property. Contact the Auction Team today to be put through to our mortgage and loan experts on 0117 9734940 or email admin@maggsandallen.co.uk

BUYER'S PREMIUM -

Please be advised that all purchasers are subject to a £1,500 plus VAT (£1,800 inc VAT) buyer’s premium payable upon exchange of contracts.

*GUIDE PRICE -

Guide Prices are provided as an indication of each seller's minimum expectation. They are not necessarily figures which a property will sell for and may change at any time prior to the auction. Each property will be offered subject to Reserve Price (a figure below which the Auctioneer cannot sell the property during the auction) which we expect will be set within the Guide Range or no more than 10% above a single figure Guide.

RESERVE PRICE -

The seller's minimum acceptable price at auction and the figure below which the auctioneer cannot sell. The reserve price is not disclosed and remains confidential between the seller and the auctioneer. Both the guide price and the reserve price can be subject to change up to and including the day of the auction.

PROXY, TELEPHONE & ONLINE REMOTE BIDDING -

The auction will be held online via live video stream with buyers able to bid via telephone, online or by submitting a proxy bid. You will need to complete our remote bidding form, which is available to download from our website. The completed form, ID (driving licence or passport and a recent utility bill stating the home address of the purchaser) and a bank transfer for the Preliminary Deposit must be received no later than 24 hours before the date of the auction.

PRELIMINARY DEPOSITS -

The Preliminary Deposit required for each lot you wish to bid for will be calculated based upon the Guide Price as follows:

£1,000 - £150,000: £5,000
£151,000 and above: £10,000

If you bid is successful, the balance of the deposit monies and Buyer’s Premium (£1,800 inc VAT) must be transferred to our client account within 24 hours of the auction sale. If you are unsuccessful at the auction, your Preliminary Deposit will be returned to you within 5 working days.

RENTAL ESTIMATES -

All rental estimates are provided in good faith. They should be verified by your own professional advisors prior to a commitment to purchase.

EPC Graph for High Street, Shirehampton, Bristol