Brislington Hill, Bristol, BS4 5BE

£700pcm - Let Agreed

  • £700pax
  • New Lease Available
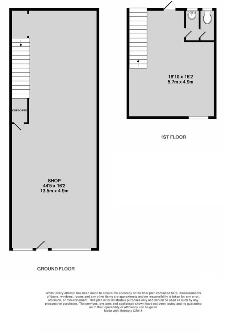
  • Approx. 1,000 ft²
  • Two Storey
  • Visitors Car Park



Share:

A well presented and modern retail unit of approximately 1,000 ft² arranged over ground and first floor. The shop was previously let as a Barbershop with modern suspended ceiling with LED lighting, ground floor wash hand basin, and first floor toilets.

The property also benefits from a large communal visitors car park to the rear, and it is situated in a prominent position on the Bath Road.

DESCRIPTION -

A well presented and modern retail unit of approximately 1,000 ft² arranged over ground and first floor. The shop was previously let as a Barbershop with modern suspended ceiling with LED lighting, ground floor wash hand basin, and first floor toilets. The property also benefits from a large communal visitors car park to the rear, and it is situated in a prominent position on the Bath Road.

LOCATION -

Situated on the A4 (Brislington Hill), the property offers easy access to Bristol City Centre, Keynsham, and Bath. Ample free parking is provided by the communal car park to the rear.

BUSINESS RATES -

The rateable value with effect from April 2023 is £9,100. We would expect those eligible for small business relief to benefit for 100% exemption at this time. However we advise all interested parties confirm this with the local authority.

ENERGY PERFORMANCE CERTIFICATE -

Rating: D - valid to December 2028.

FLOOR PLAN -

The floor plan is provided for indicative purposes only and should not be relied upon.

VAT -

We are informed VAT is applicable to this property and will therefore be charged on the rent.

CODE FOR LEASING BUSINESS PREMISES -

We advise all interested parties to refer to the RICS Code for Leasing Business Premises, link available via our website.

LEASE DETAILS -

Offered To Let on a new effectively fully repairing and insuring tease, subject to a 2 year mutual break clause.

Each party to incur the own respective legal costs.

A deposit of £500 + VAT is payable before the draft lease can be issued, to cover the landlord's abortive fees should the matter not proceed to completion. On successful completion of the lease this will form part of the
security deposit.

TENANT APPLICATION FEE -

The ingoing tenant will be charged an application fee of £250 plus VAT (£300 inc VAT) towards the costs incurred in undertaking appropriate credit and reference checks. Accounts will be requested where available and a deposit and/or personal guarantee may be required.

VIEWINGS -

By appointment.

CONTROL OF ASBESTOS REGULATIONS -

As per the Control of Asbestos Regulations 2012, the owner or tenant of the property, or anyone else who has control over it and/or responsibility for maintaining it, must comply with the regulations which may include the detection of and or management of any asbestos or asbestos related compounds contained at the property. Maggs & Allen has not tested or inspected for Asbestos and therefore recommend all the interested parties to make their own enquiries.

EPC Graph for Brislington Hill, Bristol