22, St. Albans Road, Westbury Park, Bristol, BS6 7SJ

Asking Price £795,000 - Sold

4 2 2
  • A classic Edwardian mid-terrace residence
  • Redland Green School catchment area
  • Open-plan lounge/diner
  • Separate kitchen/breakfast room with access to garden
  • Four bedrooms with scope to convert loft subject to necessary permissions
  • Original features retained in places
  • Two bathrooms



Share:

A classic Edwardian mid-terrace residence comprising generous room sizes throughout and character in abundance. Located within the Redland Green School catchment area, and moments from Coldharbour Road.

Approach -

Gated approach with re-instated period style brick pathway and courtyard leading to original panelled front door. This Edwardian mid-terrace had the Bath stone refurbished 15 years ago and presents a very handsome building.

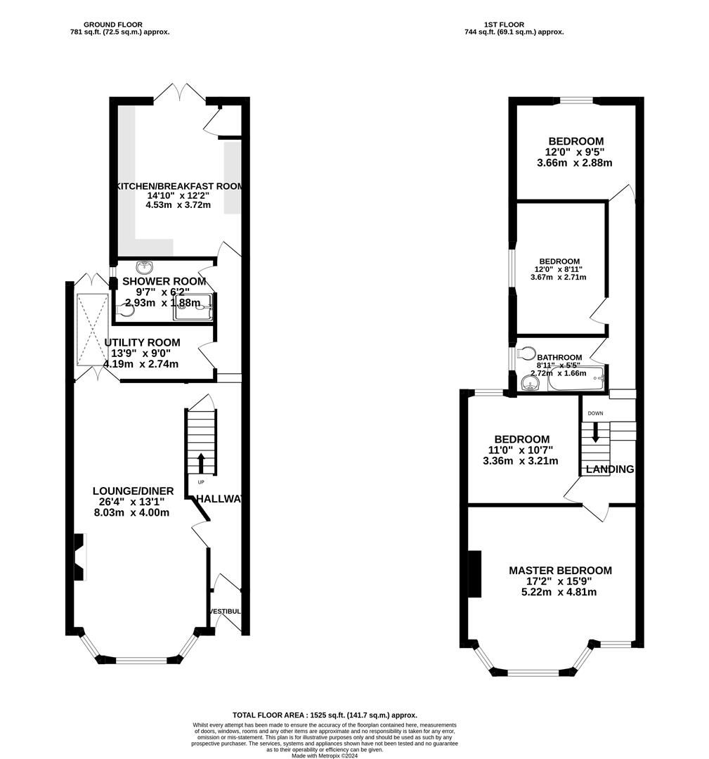
Ground Floor -

You will be greeted by a classic vestibule which along with the hallway has an array of period features including stunning cornicing and original staircase. The floorboards have been exposed and make for an inviting entrance into the property.

The lounge and dining room have been opened up to create what is a sizeable lounge/diner with bay window and feature fireplace, in turn providing access to the utility room. An archway at the rear of the room leads back through to the hallway, whereby you will find an understairs storage cupboard.

A utility room accessible through original Crittall doors from the lounge, and additionally from the hallway sits adjacent to a ground floor shower room comprising a three-piece suite including WC, basin and shower enclosure.

The kitchen/breakfast room is located at the very rear of the building and is a well-sized room, with patio doors leading to the decking and garden.

First Floor -

A split level landing provides access to each of the bedrooms, as well as the family bathroom with shower-over-bath, WC and basin.

Spanning the width of the building, the master room is particularly impressive; boasting a large bay window and plentiful natural light flooding the space.

Adjacent, bedroom 2 is a well-sized double room with grey carpet, original panelled door and overlooking the courtyard. Two further bedrooms - both well-sized - can be found towards the rear of the property.

External -

Accessed from the kitchen via patio doors is a decked area with storage beneath, in turn leading down to the garden. The garden has the benefit from rear access, and is divided between a lawned area with mature borders, and a courtyard leading down the right hand side of the property - all of which is level.

Location -

Westbury Park is a charming residential neighbourhood known for its Victorian architecture and family-friendly atmosphere. The area features well-maintained homes and gardens, creating a picturesque suburban setting.

Residents enjoy the community feel with local schools, parks, and amenities within easy reach. Coldharbour Road serves as a central hub, offering a vibrant mix of independent shops, cafes, and boutiques.

Green spaces like Redland Green and Durdham Downs provide opportunities for outdoor activities, contributing to the neighbourhood’s appeal. Well-connected to Bristol's city centre, Westbury Park maintains a peaceful residential character while ensuring convenient access to amenities and transportation. It's a sought-after destination for those seeking classic charm, community spirit, and modern convenience.

Schools -

Westbury Park School - Distance: 0.16 miles
Redland Green School - Distance: 0.45 miles
Bishop Road Primary School - Distance: 0.66 miles

EPC Graph for St Albans Road | Westbury Park