An extended ground floor shop of approximately 1,100 ft² situated in a highly desirable trading position in Clevedon. The shop is let to the Connells Group (trading as Woods Estate Agents). The tenant is currently holding over at a low rent of approx £8,400pa, but they have expressed interest to renew the lease. 
 
The maisonette above is also available by separate negotiation.
                                        
                                        DESCRIPTION -  
                                        A Grade II mixed use period property situated in a highly desirable location in Clevedon. 
The ground floor shop measures approximately 1,100 ft² and is let to the Connells Group, trading as Woods Estate Agents. They are now holding over at a low rent of approx. £700pcm, but we understand they would like to renew. We consider a rent of circa £18,000pa would be more appropriate. 
The first and second floor is arranged as a self contained and spacious (approx 900 ft²) 3 bedroom maisonette with rear garden. The maisonette is offered for sale with vacant possession.
The shop and flat are offered for sale together, although a sale of the two parts separately will be considered.
                                        
                                        LOCATION -  
                                        The property is situated in a sought after location in Clevedon, on Hill Road.  Hill Road is well known for his charming blend of Victorian Character and boasts a mix of independent boutiques, cafes and restaurants.
                                        
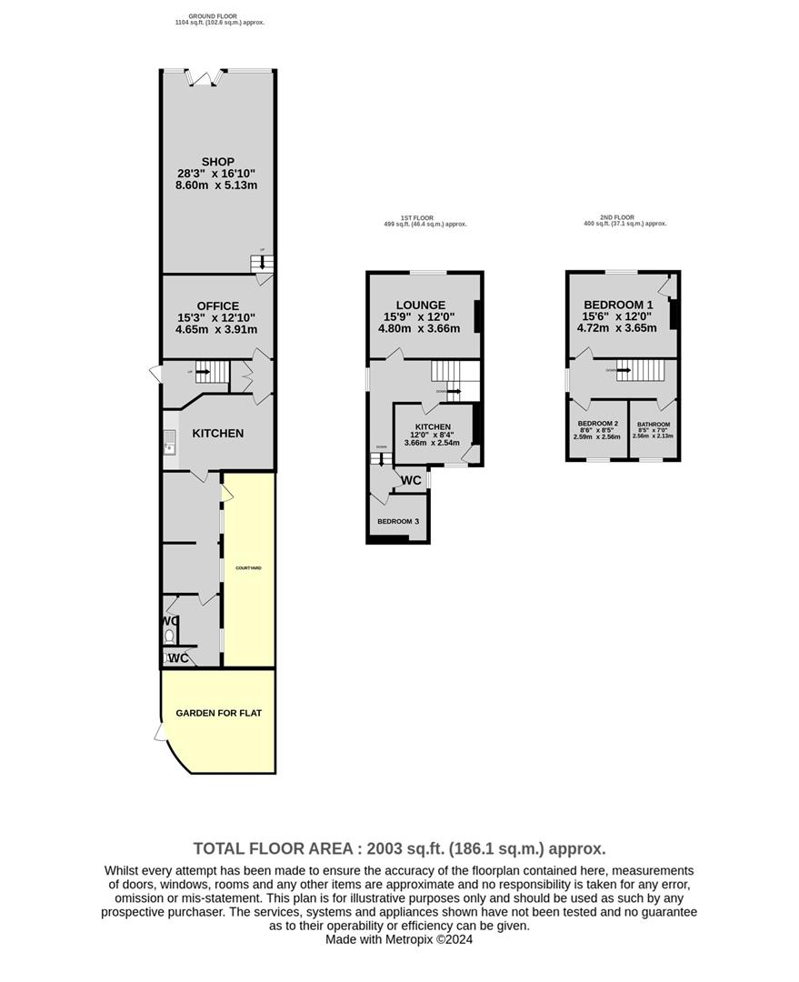
                                        ACCOMODATION -  
                                        The ground floor is is arranged as a retail unit to the front, with rear office, kitchen, further stores, male and female toilets, with an enclosed courtyard.
The maisonette is self contained with side access, and is arranged on the first floor as a large lounge, spacious kitchen, third bedroom and wc. On the second floor there are two further bedrooms and a bathroom.
                                        
                                        ASKING PRICE -  
                                        The flat and shop are available together at £465,000.
Alternatively, the shop is available for sale at £220,000 and the maisonette at £295,000.
                                        
                                        FLOOR PLAN -  
                                        The floor plan is provided for indicative purposes only and should not be relied upon.
                                        
                                        VAT -  
                                        All figures quoted are exclusive of VAT unless otherwise stated.
                                        
                                        TENANCY DETAILS -  
                                        
                                        
                                        SHOP -  
                                        The shop is let to the Connells Group, trading as Woods Estate Agents at a low passing rent of approx. £700pcm. We understand their lease term has ended but that they would like to renew. However, should a purchaser wish to occupy the premises themselves or redevelop the ground floor, there may be grounds to obtain vacant possession.
                                        
                                        FLAT -  
                                        The flat is offered for sale with vacant possession but we would anticipate a potential rent of approximately £1,500pcm based on a conventional Assured Shorthold Tenancy.
                                        
                                        ENERGY PERFORMANCE CERTIFICATE (EPC) -  
                                        EPC rating: E (valid until December 2034)
                                        
                                        BUSINESS RATES / COUNCIL TAX -  
                                        The Rateable Value for the ground floor, with effect from April 2023, is £6,800. We therefore would expect those eligible for small business relief to benefit from 100% exemption at this time. However, we advise all interested parties to confirm directly with the local authority.
The maisonette has a Council Tax Band B.
                                        
                                        VIEWINGS -  
                                        By appointment.
                                        
                                        CONTROL OF ASBESTOS REGULATIONS -  
                                        As per the Control of Asbestos Regulations 2012, the owner or tenant of the property, or anyone else who has control over it and/or responsibility for maintaining it, must comply with the regulations which may include the detection of and/or management of any asbestos or asbestos related compounds contained at the property. Maggs & Allen has not tested or inspected for Asbestos and therefore recommend all interested parties to make their own enquiries.