Flaxpits Lane, Winterbourne, Bristol, BS36 1JY

£975pcm - Let Agreed

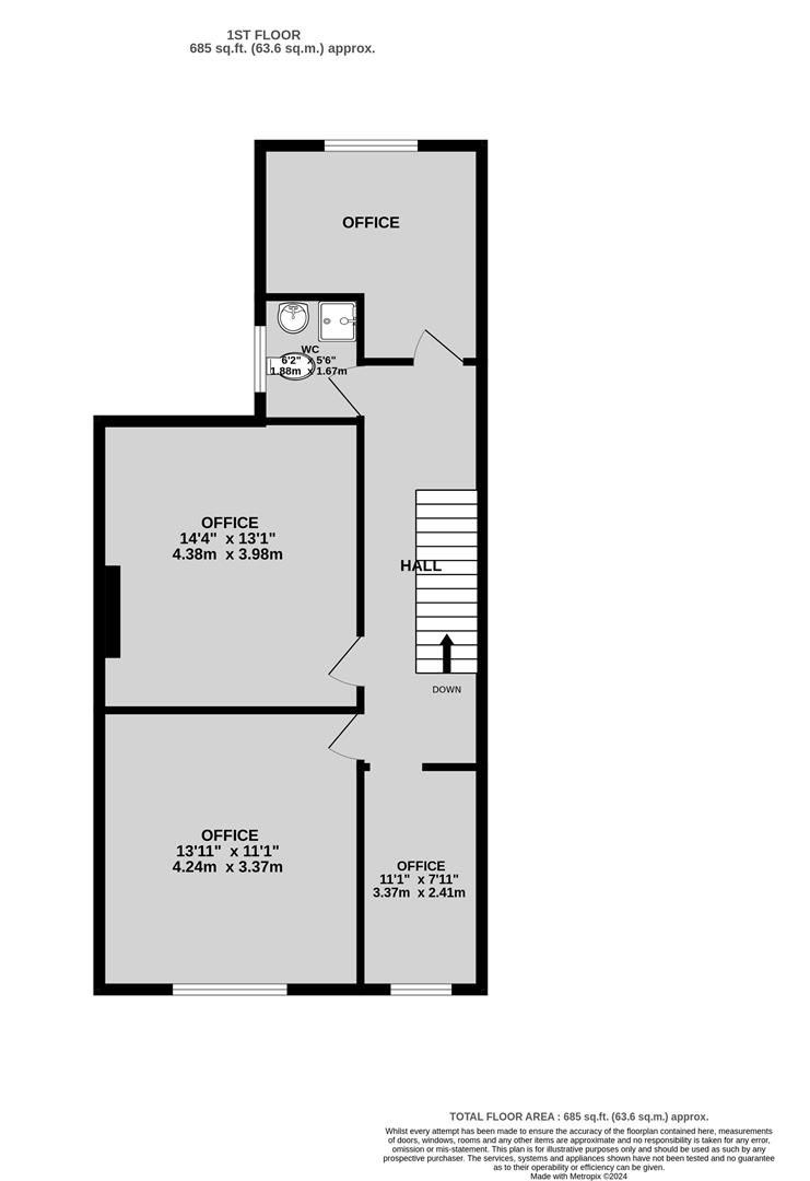
  • First floor offices
  • Approximately 685 sq ft
  • Designated parking space
  • Well presented



Share:

Well presented first floor offices of approximately 685 sq ft located on Flaxpits Lane, Winterbourne. The property is arranged as 4 separate office suites with bathroom. The property has recently been refurbished and has the benefit of 1 designated parking space. Offered to let on an effectively new full repairing and insuring basis, subject to annual mutual break options. The premises may suit other uses within the E use class, subject to consent.

DESCRIPTION -

Well presented first floor offices of approximately 685 sq ft arranged as 4 separate office suites with bathroom. The property has recently been refurbished and has the benefit of 1 designated parking space. May suit other uses within the E use class, subject to consent.

LOCATION -

Situated on Flaxpits Lane, Winterbourne within close proximity to the M32 motorway providing easy access to the Bristol City Centre. Nearby notable occupiers include Co-op Supermarket, Post Office and St Peters Hospice.

PARKING -

There is designated parking at the rear of the property for approximately 1 vehicles.

LEASE DETAILS -

Available to let on the basis of a new full repairing and insuring basis with annual mutual break options.

Each party incur their own legal fees.

FLOOR PLAN -

The floor plan is provided for indicative purposes only and should not be relied upon.

BUSINESS RATES -

The rateable value effective from April 2023 as per the VOA website is £5,900.

We would expect those eligible for small business relief to benefit for 100% exemption at this time. However we advise all interested parties confirm this with the local authority.

ENERGY PERFORMANCE CERTIFICATE -

Rating: E (valid until October 2028)

VAT -

All figures quoted are exclusive of VAT unless otherwise stated.

VIEWINGS -

By appointment with Maggs & Allen.

TENANT APPLICATION FEE -

The ingoing tenant will be charged an application fee of £300 plus VAT (£360 inc VAT) towards the costs incurred in undertaking appropriate credit and reference checks. Accounts will be requested where available and a deposit and/or personal guarantee may be required.

CONTROL OF ASBESTOS REGULATIONS -

As per the Control of Asbestos Regulations 2012, the owner or tenant of the property, or anyone else who has control over it and/or responsibility for maintaining it, must comply with the regulations which may include the detection of and/or management of any asbestos or asbestos related compounds contained at the property. Maggs & Allen has not tested or inspected for asbestos and therefore recommend all interested parties to make their own enquiries.

CODE FOR LEASING BUSINESS PREMISES -

We advise all interested parties to refer to the RICS Code for Leasing Business Premises, link available via our website.

EPC Graph for Flaxpits Lane, Winterbourne, Bristol