56, Colston Street, Bristol, BS1 5AZ

Auction Guide £300,000 - Sold

  • SOLD FOR £325,000 - 21 November Auction
  • Three storey Grade II listed period building
  • Ground floor retail unit with living accommodation above and behind
  • Basement level
  • 12-week completion

An exciting opportunity to acquire a unique three-storey Grade II listed building in a prime location on Colston Street, a stones throw from the historic Christmas Steps. This well-maintained property features a ground floor shop or office, with living accommodation behind and spread over the two upper floors plus an additional basement level. The building has potential for various uses (subject to consents) and is perfect for anyone looking to blend their living and working spaces in this central setting.

FOR SALE BY AUCTION -

This property is due to feature in our online auction on 21 November 2024 at 6.00pm. Bidding is via proxy, telephone or online remote bidding.

VIEWINGS -

By appointment.

SUMMARY -

SOLD FOR £325,000 - SUBSTANTIAL GRADE II LISTED PERIOD BUILDING IN A PRIME LOCATION ON COLSTON STREET

DESCRIPTION -

An exciting opportunity to acquire a unique three-storey Grade II listed building in a prime location on Colston Street, a stones throw from the historic Christmas Steps. This well-maintained property features a ground floor shop or office, with living accommodation behind and spread over the two upper floors plus an additional basement level. The building has potential for various uses (subject to consents) and is perfect for anyone looking to blend their living and working spaces in this central setting.

LOCATION -

The property is ideally located on Colston Street, just a short walk from the historic Christmas Steps. Surrounded by a vibrant mix of independent shops, specialty retailers, and a variety of food and drink venues, it’s perfectly situated to take advantage of all that Bristol city centre has to offer.

ACCOMMODATION -

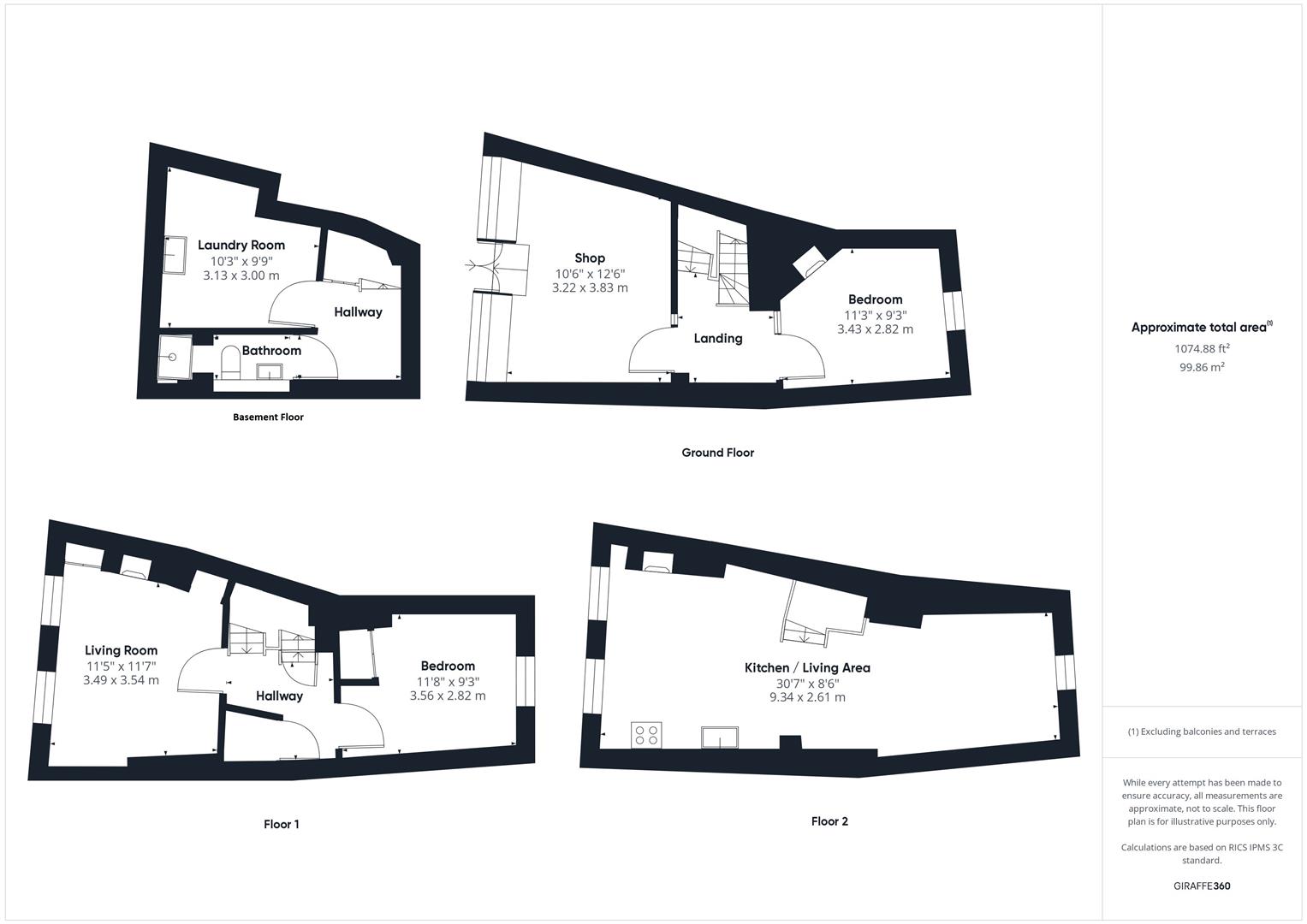
The ground floor comprises a shop/office of just over 130 sq ft,, bedroom and stairs to the first floor living accommodation. The first floor comprises a living room with two sash windows to the front and second bedroom. On the second floor is the kitchen and further living space with stunning views across the city. In addition there is a basement which is arranged as a bathroom and laundry room.

Please refer to floorplan for approximate room measurements and internal layout.

COMPLETION -

Completion for this lot will be 12 weeks from exchange of contracts or sooner by mutual agreement.

ENERGY PERFORMANCE CERTIFICATE (EPC) -

EPC Rating: D

LETTING - WHAT CAN MAGGS & ALLEN ACHIEVE FOR YOU? -

Maggs & Allen's experienced letting team are happy to discuss the rental of this property and can advise on maximising the investment. We offer Full Management, Let Only and Rent Collection Services. Contact Jessica Archer and her team on 0117 9499000 or email lettings@maggsandallen.co.uk.

AUCTION OR BRIDGING FINANCE REQUIRED? -

Do you need a mortgage or loan quickly? Maggs & Allen have specialist Independent Brokers who can arrange residential and commercial finance on all types of property. Contact the Auction Team today to be put through to our mortgage and loan experts on 0117 9734940 or email admin@maggsandallen.co.uk

BUYER'S PREMIUM -

Please be advised that all purchasers are subject to a £1,500 plus VAT (£1,800 inc VAT) buyer’s premium payable upon exchange of contracts.

*GUIDE PRICE -

Guide Prices are provided as an indication of each seller's minimum expectation. They are not necessarily figures which a property will sell for and may change at any time prior to the auction. Each property will be offered subject to Reserve Price (a figure below which the Auctioneer cannot sell the property during the auction) which we expect will be set within the Guide Range or no more than 10% above a single figure Guide.

RESERVE PRICE -

The seller's minimum acceptable price at auction and the figure below which the auctioneer cannot sell. The reserve price is not disclosed and remains confidential between the seller and the auctioneer. Both the guide price and the reserve price can be subject to change up to and including the day of the auction.

PROXY, TELEPHONE & ONLINE REMOTE BIDDING -

The auction will be held online via live video stream with buyers able to bid via telephone, online or by submitting a proxy bid. You will need to complete our remote bidding form, which is available to download from our website. The completed form, ID (driving licence or passport and a recent utility bill stating the home address of the purchaser) and a bank transfer for the Preliminary Deposit must be received no later than 24 hours before the date of the auction.

PRELIMINARY DEPOSITS -

The Preliminary Deposit required for each lot you wish to bid for will be calculated based upon the Guide Price as follows:

£1,000 - £150,000: £5,000
£151,000 and above: £10,000

If you bid is successful, the balance of the deposit monies and Buyer’s Premium (£1,800 inc VAT) must be transferred to our client account within 24 hours of the auction sale. If you are unsuccessful at the auction, your Preliminary Deposit will be returned to you within 5 working days.

RENTAL ESTIMATES -

All rental estimates are provided in good faith. They should be verified by your own professional advisors prior to a commitment to purchase.