Napier House, Meadow Grove, Shirehampton, Bristol, BS11 9PH

Auction Guide £350,000 - Sold

  • SOLD FOR £440,000 - 17 October Auction
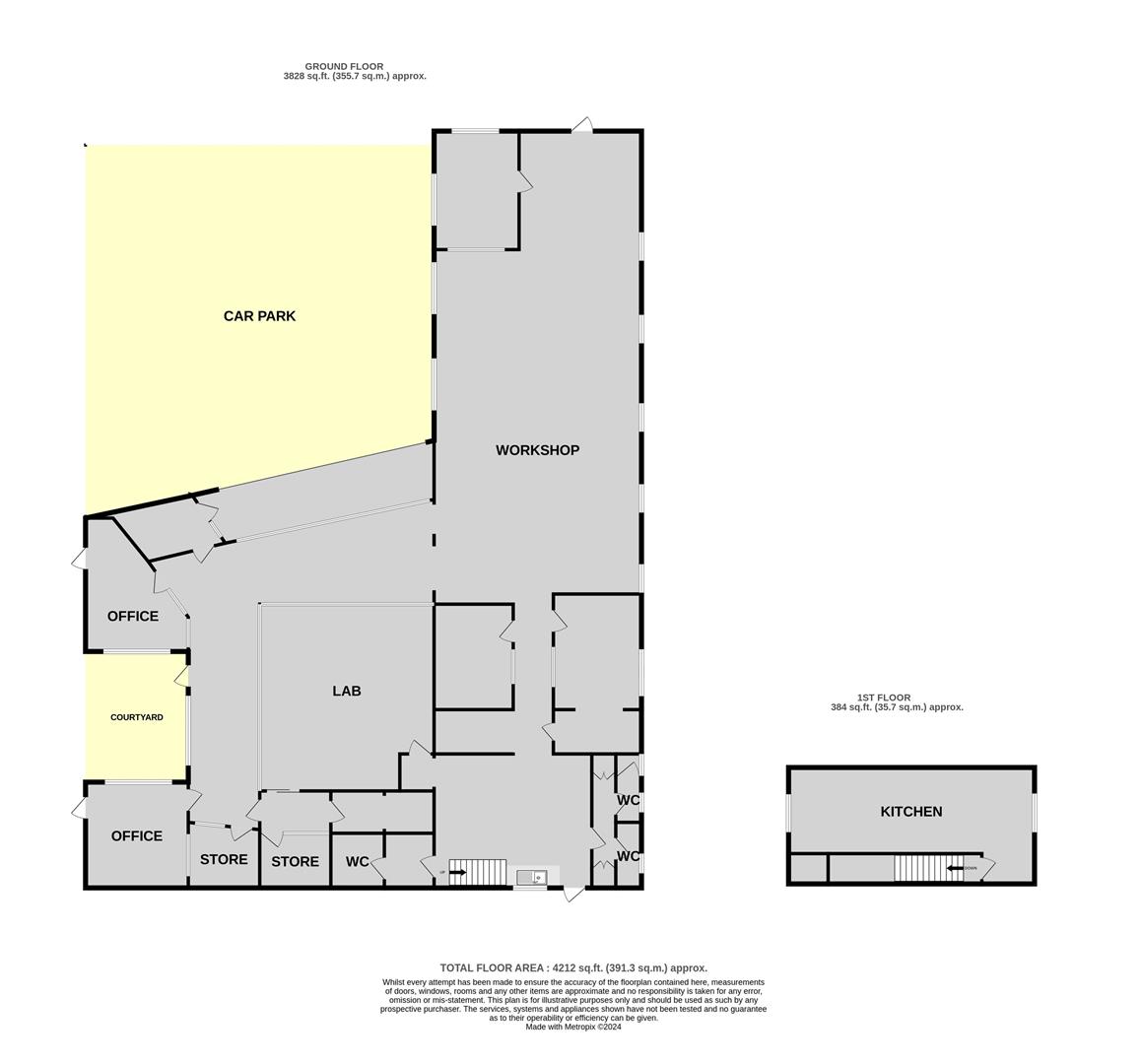
  • Substantial commercial unit of approx. 4,200ft²
  • Potential for redevelopment, subject to consents
  • Car park to the front
  • Site area of circa 0.21 acres
  • In need of Renovation



Require Finance?

Compare Property Finance from over 100 lenders
Click HERE to start your search

A representive from South West Business Finance will contact you to discuss your options



Share:

COMMERCIAL UNIT OF APPROX 4,200 FT² WITH PARKING WITH POTENTIAL FOR REDEVELOPMENT
A detached workshop/office of approximately 4,200 ft² (390m²) in need of renovation, benefiting from a car park to the front. The site measures approximately 0.21 of an acre and offers potential for residential redevelopment, but would also suit a retail trade counter, nursery, gym user or workshop/office user (subject to obtaining the necessary consents).

FOR SALE BY AUCTION -

This property is due to feature in our online auction on 17 October 2024 at 6.00pm. Bidding is via proxy, telephone or online remote bidding.

VIEWINGS -

By appointment.

SUMMARY -

SOLD FOR £440,000 - UNIT OF APPROX 4,200 FT² WITH PARKING WITH POTENTIAL FOR REDEVELOPMENT

DESCRIPTION -

A detached workshop/office of approximately 4,200 ft² (390m²) in need of renovation, benefiting from a car park to the front. The site measures approximately 0.21 of an acre and offers potential for residential redevelopment, but would also suit a retail trade counter, nursery, gym user or workshop/office user (subject to obtaining the necessary consents).

LOCATION -

The site is situated on the corner of Meadow Grove and Lower High Street, Shirehampton, in a predominantly residential location.

ACCOMMODATION -

The unit is arranged as two connecting buildings and is otherwise predominantly open plan but has been partitioned to create various separate offices. In addition there is a car park to the front providing ample off street parking.

SITE PLAN -

Please note that the indicative site plan has been updated. Interested parties should refer to the online legal pack for copies of the Title plan and Register.

BUSINESS RATES -

The Rateable Value with effect from April 2023 is £23,750.

COMPLETION -

Completion for this lot will be 5th December 2024 or sooner by mutual agreement.

ENERGY PERFORMANCE CERTIFICATE (EPC) -

Rating: C

TENURE -

We understand the site is to be sold on a freehold basis and with vacant possession.

LETTING - WHAT CAN MAGGS & ALLEN ACHIEVE FOR YOU? -

Maggs & Allen's experienced letting team are happy to discuss the rental of this property and can advise on maximising the investment. We offer Full Management, Let Only and Rent Collection Services. Contact Jessica Archer and her team on 0117 9499000 or email lettings@maggsandallen.co.uk.

AUCTION OR BRIDGING FINANCE REQUIRED? -

Do you need a mortgage or loan quickly? Maggs & Allen have specialist Independent Brokers who can arrange residential and commercial finance on all types of property. Contact the Auction Team today to be put through to our mortgage and loan experts on 0117 9734940 or email admin@maggsandallen.co.uk

BUYER'S PREMIUM -

Please be advised that all purchasers are subject to a £1,500 plus VAT (£1,800 inc VAT) buyer’s premium payable upon exchange of contracts.

*GUIDE PRICE -

Guide Prices are provided as an indication of each seller's minimum expectation. They are not necessarily figures which a property will sell for and may change at any time prior to the auction. Each property will be offered subject to Reserve Price (a figure below which the Auctioneer cannot sell the property during the auction) which we expect will be set within the Guide Range or no more than 10% above a single figure Guide.

RESERVE PRICE -

The seller's minimum acceptable price at auction and the figure below which the auctioneer cannot sell. The reserve price is not disclosed and remains confidential between the seller and the auctioneer. Both the guide price and the reserve price can be subject to change up to and including the day of the auction.

PROXY, TELEPHONE & ONLINE REMOTE BIDDING -

The auction will be held online via live video stream with buyers able to bid via telephone, online or by submitting a proxy bid. You will need to complete our remote bidding form, which is available to download from our website. The completed form, ID (driving licence or passport and a recent utility bill stating the home address of the purchaser) and a bank transfer for the Preliminary Deposit must be received no later than 24 hours before the date of the auction.

PRELIMINARY DEPOSITS -

The Preliminary Deposit required for each lot you wish to bid for will be calculated based upon the Guide Price as follows:

£1,000 - £150,000: £5,000
£151,000 and above: £10,000

If you bid is successful, the balance of the deposit monies and Buyer’s Premium (£1,800 inc VAT) must be transferred to our client account within 24 hours of the auction sale. If you are unsuccessful at the auction, your Preliminary Deposit will be returned to you within 5 working days.

RENTAL ESTIMATES -

All rental estimates are provided in good faith. They should be verified by your own professional advisors prior to a commitment to purchase.