85, Cranbrook Road, Redland, Bristol, BS6 7BZ

Asking Price £700,000 - Sold

4 1 3
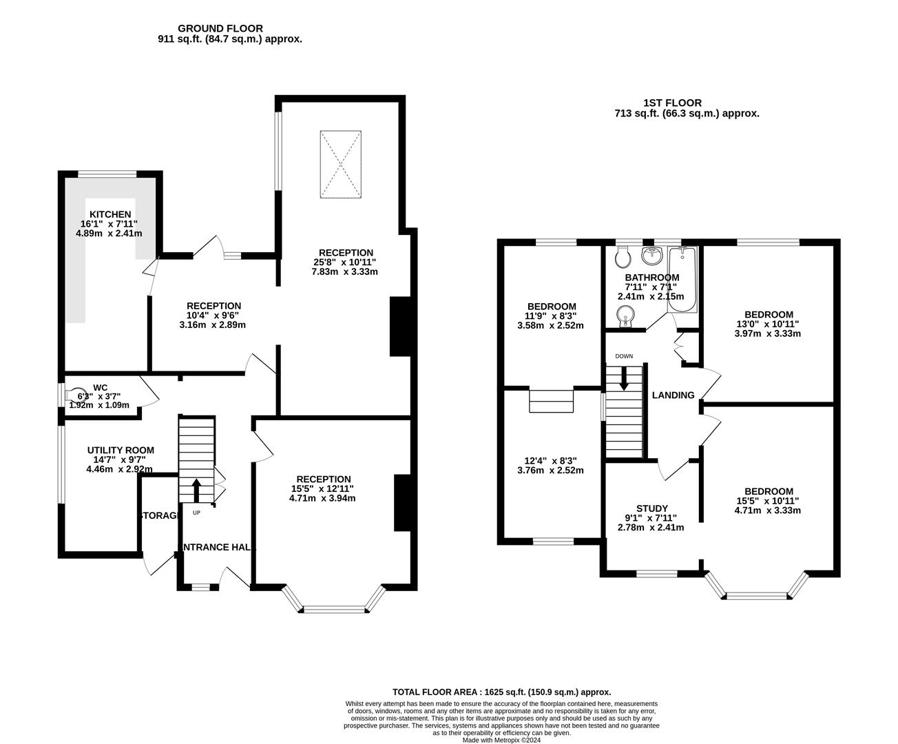
  • A substantial (1600 sq.ft.) semi-detached residence
  • Requiring refurbishment throughout
  • Off-street parking
  • No onward chain
  • A large terraced garden
  • Located in the Redland Green School APR
  • Retaining original features in places
  • Expansive, open-plan second reception room



Share:

Sat within the Redland Green School APR and backing directly onto allotments, comes this well-proportioned four-bedroom1920's semi-detached residence, with off-street parking. Requiring a full renovation, the property is offered with no onward chain.

Property Details -

Upon entering through a spacious hall, you will find the first reception room to your right, featuring a bay window, cornicing, built-in shelving and picture rails. Sat behind is the second reception room; an expansive and extended space retaining original picture frames and fitted with modern electric fireplace benefitting from plentiful natural light through skylight and side window overlooking the courtyard. Adjacent is a dining room with patio doors providing access to the garden, in turn leading to the kitchen. Completing the ground floor is a utility room and WC.

Ascending to the first floor; the master bedroom, located at the front of the house, is a generously sized double with a bay window and picture rails. Two additional well-proportioned bedrooms are also positioned at the front. Toward the rear, you'll find another large double bedroom, as well as two interconnecting double rooms that are ideal as an occasional bedroom, study, or dressing room. The main bathroom features tiled walls, a bathtub, sink, WC, and bidet.

The tiered rear garden, facing southwest and approximately 90 feet in length, is mature and offers immense scope to improve. It includes a patio area off the dining room, a central area that is is mainly lawn, as is the upper tier - all surrounded by mature shrubs and trees. At the very rear of the property are outbuildings that could be utilised as home offices, or storage.

Location -

The property boasts a tremendous location. Nearby green spaces like Redland Green and the Downs provide peace and quiet, while independent shops and cafés offer a unique local experience. Chandos Road is famous for its array of highly regarded eateries, including Snobby’s and the Michelin Star Wilson’s, whilst neighbouring Westbury Park - on its doorstep - offers an array of popular cafes and restaurants both on Coldharbour Road and North View including the impressive Little French.

Cultural richness thrives with art galleries and theatres, complemented by the youthful energy of the University of Bristol and the highly regarded Redland Green School – meaning it is also an academic hub within the city.

This is a charming residential neighbourhood known for its diverse architecture and family-friendly atmosphere. The area features well-maintained homes and gardens, creating a picturesque suburban setting. The property's fantastic location ensures easy transportation access, including Redland Station within walking distance, making it a gateway to explore Bristol and beyond.

Diverse dining options, family-friendly amenities, and a blend of history and modernity make it a special place to live.

Schools -

Redland Green School approx. 0.2 miles
St Bonaventure's Catholic Primary School approx. 0.3 miles
Bishop Road Primary School approx. 0.4 miles
Westbury Park School approx. 0.5 miles

EPC Graph for Cranbrook Road | Redland