32, Berkeley Road, Westbury Park, Bristol, BS6 7PJ

Asking Price £675,000 - Sold

3 1 2
  • A classic three-bedroom family home
  • Southerly facing garden
  • Westbury Park School nearby
  • Retaining many original features
  • Two reception rooms plus separate kitchen
  • Two double bedrooms and one single bedroom
  • Ground floor WC
  • Well proportioned, measuring approximately 1231 sq.ft.
  • No onward chain



Share:

A fine three-bedroom mid-terrace residence retaining a wealth of ornate original features and boasting a southerly facing garden. Providing immense scope to modernise, and offered with no onward chain.

Property Details -

For those wanting a property retaining a wealth of original features, with scope to modernise and extend, this could be an ideal offering. Located in leafy Westbury Park, this pretty mid-terrace has a traditional configuration, with well-proportioned rooms throughout,

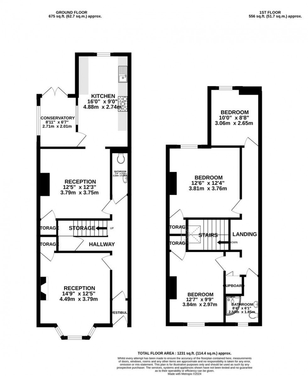
Accessed via classic vestibule, the hallway provides access to each of the reception rooms as well as the ground floor WC and under-stairs storage cupboard.

The first reception is a bay-windowed room boasting an array of ornate original features including cornicing, ceiling rose, fireplace, doors, sash windows, and with built-in storage cupboard. The second reception room also retain picture rails, built in storage cupboard and large sash window looking into the sun room; and is semi-open plan, opening into the kitchen/breakfast room.

Fully fitted with a range of base and wall-mounted units, the kitchen offers space for a small breakfast table and in turn opens into the sun room, modern addition to the property and a lovely space for relaxing.

Ascending to the first floor via wide landing with sky light providing plentiful natural light and featuring original staircase and bannisters, you will find each of the bedrooms and the shower room. Bedroom one is located at the front of the property, and retains original picture rail, sash windows and a built-in storage cupboard. Adjacent is the shower room, currently fitted with a three-piece suite including walk-in shower. Similar properties nearby have reconfigured this area of the property, enlarging the room to create a sizeable family bathroom. Bedroom two also benefits from original doors, picture rails and sash windows, as well as a built-in storage cupboard and is a generously sized double. Completing the first floor is the third bedroom, situated at the rear of the property and overlooking the garden below. This is a well-sized single bedroom that could serve as an ideal study.

Externally there is a low-maintenance courtyard garden accessible from the sun room. Benefitting from a southerly aspect, the garden is currently arranged with a terraced borders to rear, which if removed could result in a further usable space. To the front of the property is a low-maintenance courtyard garden.

Offered to the market with no onward chain.

Location -

Westbury Park is a charming residential neighbourhood known for its Victorian architecture and family-friendly atmosphere. The area features well-maintained homes and gardens, creating a picturesque suburban setting.

Residents enjoy the community feel with local schools, parks, and amenities within easy reach. Henleaze Road and North View offer a vibrant mix of independent shops, cafes, boutiques and a cinema.

Green spaces like Redland Green and Durdham Downs provide opportunities for outdoor activities, contributing to the neighbourhood’s appeal. Well-connected to Bristol's city centre, Westbury Park maintains a peaceful residential character while ensuring convenient access to amenities and transportation. It's a sought-after destination for those seeking classic charm, community spirit, and modern convenience.

Schools -

Westbury Park School approx. 0.1 miles
Elmlea Infant School approx. 0.5 miles
Elmlea Junior School approx. 0.5 miles
Redland Green School approx. 0.6 miles

EPC Graph for Berkeley Road | Westbury Park