417, Gloucester Road, Horfield, Bristol, BS7 8TZ

Asking Price £365,000 - Sold Subject to Contract

  • Shop & Self Contained Flat
  • Gloucester Road
  • Potential Rent of Circa £31,800pa



Require Finance?

Compare Property Finance from over 100 lenders
Click HERE to start your search

A representive from South West Business Finance will contact you to discuss your options



Share:

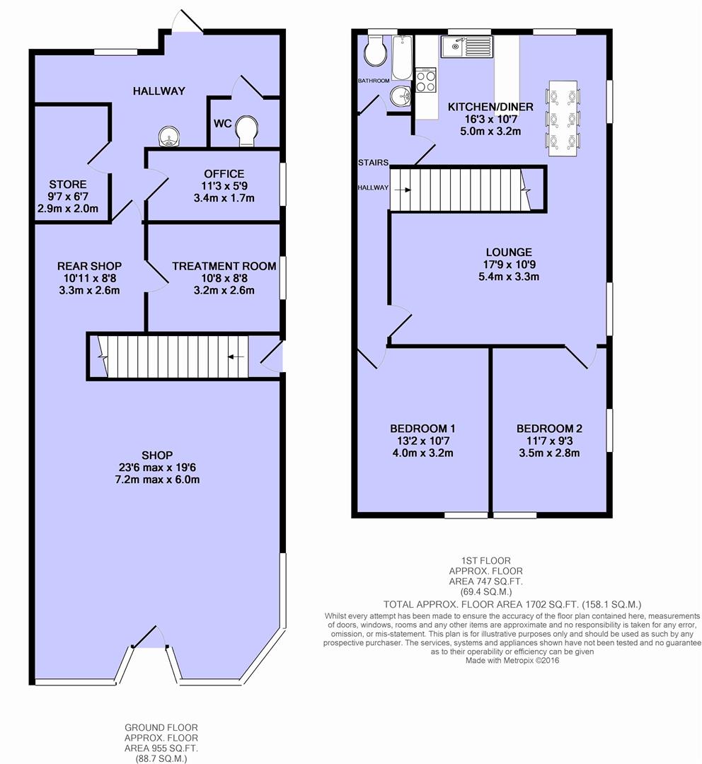
A end of terraced mixed-use property arranged as a ground floor shop of approx. 950 ft², with a self contained two bedroom flat above (approx 810 ft²). The property further benefits from a small courtyard to the rear which provides off street parking.

The shop is offered for sale with vacant possession, although we consider the market rent to the lie in the region of £15,000pa. The flat is currently let at £950pcm but we consider the market rent to lie in the order of £1,400pcm. The property therefore offers the potential to produce a gross annual rent of £31,800pa.

DESCRIPTION -

A end of terraced mixed-use property arranged as a ground floor shop of approx. 950 ft², with a self contained two bedroom flat above (approx 810 ft²). The property further benefits from a small courtyard to the rear which provides off street parking.

The shop is offered for sale with vacant possession, although we consider the market rent to the lie in the region of £15,000pa. The flat is currently let at £950pcm but we consider the market rent to lie in the order of £1,400pcm. The property therefore offers the potential to produce a gross annual rent of £31,800pa.

LOCATION -

Situated in the ever popular Gloucester Road in Horfield. Neighbouring occupiers include Grounded cafe/bar and Domino's.

BUSINESS RATES -

Shop: £9,500 with effect from April 2023
Flat: Council Tax Band A.

ENERGY PERFORMANCE CERTIFICATE (EPC) -

Rating:
Shop: E - Valid to May 2034.
Flat: D - Valid to March 2025.

FLOOR PLAN -

The floor plan is provided for indicative purposes only and should not be relied upon. The shop area has been partitioned to create two separate treatment rooms since the plan was commissioned.

VAT -

All figures quoted are exclusive of VAT unless otherwise stated.

TENURE -

Offered for sale on a freehold basis.

TENANCY DETAILS -

The shop is currently let but is offered for sale with vacant possession.

The flat is let on an Assured Shorthold Tenancy agreement at £950pcm but offers potential to increase substantially.

VIEWINGS -

By appointment.

CONTROL OF ASBESTOS REGULATIONS -

As per the Control of Asbestos Regulations 2012, the owner or tenant of the property, or anyone else who has control over it and/or responsibility for maintaining it, must comply with the regulations which may include the detection of and/or management of any asbestos or asbestos related compounds contained at the property. Maggs & Allen has not tested or inspected for Asbestos and therefore recommend all interested parties to make their own enquiries.