Gloucester Road, Bishopston, Bristol, BS7 8AT

£2,500pcm - Let Agreed

  • Two Storey Public House + Beer Cellar
  • Very Well Presented
  • Fully Equipped Kitchen
  • Comprehensive Inventory



Share:

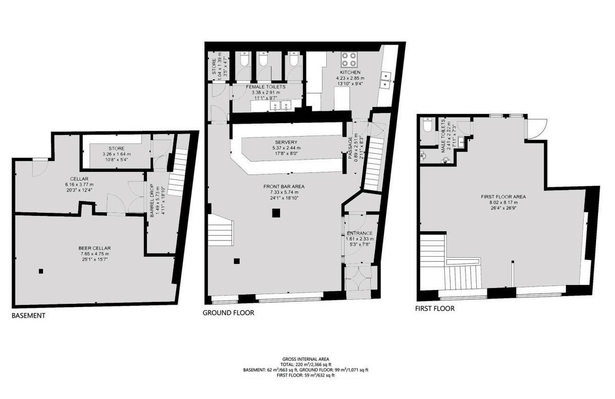
Previously known as the Gloucester Road Ale House & Kitchen, this is a well presented two storey public house with additional beer cellar. The premises has been fully refurbished in recent years and provide approximately 2,366 ft² (220m²). The property benefits from gas central heating, air conditioning and has a fully equipped commercial kitchen.

The premises are available to let on a free of tie, new effectively fully repairing and insuring term. A comprehensive inventory is also available by negotiation.

DESCRIPTION -

Previously known as the Gloucester Road Ale House & Kitchen, this is a well presented two storey public house with additional beer cellar. The premises has been fully refurbished in recent years and provide approximately 2,366 ft² (220m²). The property benefits from gas central heating, air conditioning and has a fully equipped commercial kitchen. The premises are available to let on a free of tie, new effectively fully repairing and insuring term.

The premises are available to let at £22,000pa for the ground floor and cellar, or £30,000pa to include the additional first floor extended restaurant area.

LOCATION -

The property is situated in a highly desirable and busy trading position on Gloucester Road in Bishopston within a short distance of The Promenade.

ACCOMODATION -

The building provides approximately 2,366 ft² over three storey's. The ground floor is arranged predominantly as an open plan bar, with commercial kitchen and toilet facilities to the rear. The first floor provides restaurant seating and further toilet facilities, and the beer cellar is fitted with beer lines with additional cellar storage.

BUSINESS RATES -

The rateable value with effect from April 2023 is £10,750.

ENERGY PERFORMANCE CERTIFICATE (EPC) -

Rating: B - Valid to March 2033.

VAT -

All figures quoted are exclusive of VAT unless otherwise stated. We understand the property is opted for VAT and will therefore be applicable to the rent.

INVENTORY -

A comprehensive inventory is available for sale by separate negotiation.

LEASE DETAILS -

The premises are available to let on an effectively fully repairing and insuring basis. Each party to incur their own respective legal fees.

TENANT APPLICATION FEE -

The ingoing tenant will be charged an application fee of £300 plus VAT (£360 inc VAT) towards the costs incurred in undertaking appropriate credit and reference checks. Accounts will be requested where available and a deposit and/or personal guarantee may be required.

FLOOR PLAN -

The floor plan is provided for indicative purposes only and should not be relied upon.

VIEWINGS -

Strictly by appointment with Maggs & Allen.

CODE FOR LEASING BUSINESS PREMISES -

We advise all interested parties to refer to the RICS Code for Leasing Business Premises, link available via our website.

CONTROL OF ASBESTOS REGULATIONS -

As per the Control of Asbestos Regulations 2012, the owner or tenant of the property, or anyone else who has control over it and/or responsibility for maintaining it, must comply with the regulations which may include the detection of and/or management of any asbestos or asbestos related compounds contained at the property. Maggs & Allen has not tested or inspected for Asbestos and therefore recommend all interested parties to make their own enquiries.