Ashton Vale Road, Bristol, BS3 2HT

£500 Per Month - To Let

  • Approximately 350 ft² of office space
  • Easily accessible from major transport links
  • Prime location on Ashton Vale Road
  • Suitable for a variety of business uses



Share:

Two self contained first floor offices of approximately of 350 ft² and 540 ft² benefiting from 4 allocated car parking spaces. The offices are available to let together at 790 ft² (with a connecting door) or separately.

The offices are available to let on an effectively full repairing and insuring basis.

DESCRIPTION -

Two self contained first floor offices of approximately of 350 ft² and 540 ft² benefiting from 4 allocated car parking spaces or two for each office. The offices are available to let together at 790 ft² (with a connecting door) or separately.

LOCATION -

The property is situated on Ashton Vale Road, just off Wintersoke Road, in Ashton, South Bristol.

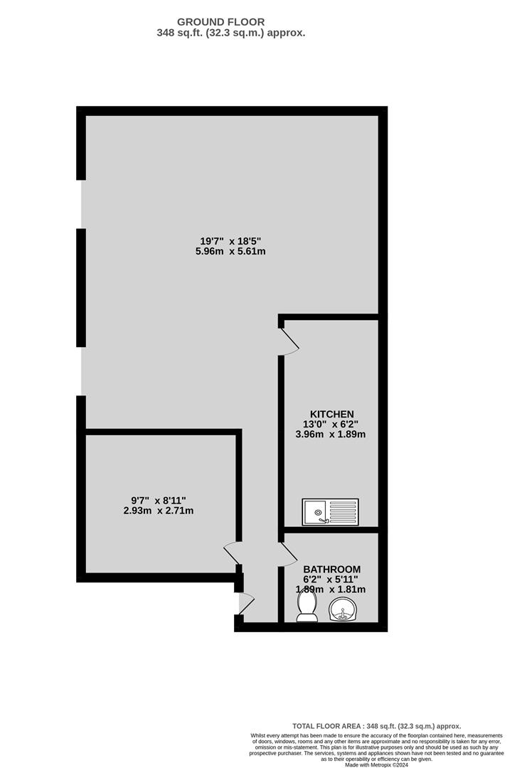
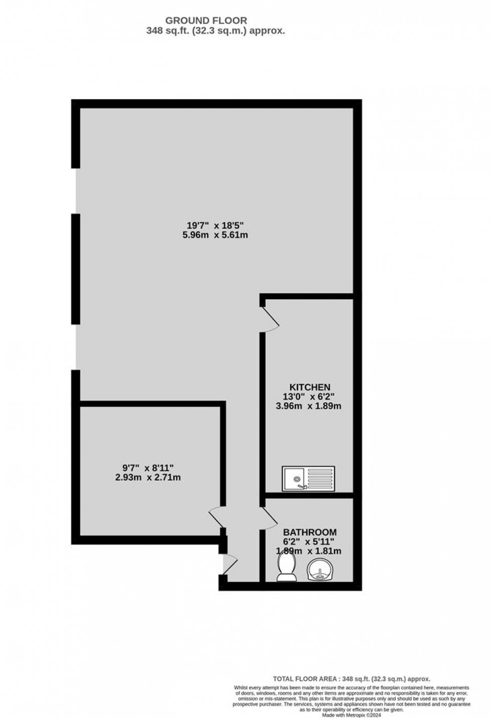
FLOOR PLAN -

The floor plan is provided for indicative purposes only and should not be relied upon.

BUSINESS RATES -

The office suites are yet to be rated separately for business rates. However, we would expect those eligible for small business relief are likely to benefit from 100% exemption at this time. However, we advise all interested parties to confirm directly with the local authority.

TENANT APPLICATION FEE -

The ingoing tenant will be charged an application fee of £250 plus VAT (£300 inc VAT) towards the costs incurred in undertaking appropriate credit and reference checks. Accounts will be requested where available and a deposit and/or personal guarantee may be required.

LEASE DETAILS -

The offices are available to let on an effectively full repairing and insuring basis (although the landlord will be liable to maintain the roof).
The larger offices is available at £600pcm and the smaller offices at £500pcm. Each party to incur their own respective legal fees.

VIEWINGS -

By appointment.

VAT -

We understand that VAT is applicable to the rent.

ENERGY PERFORMANCE CERTIFICATE (EPC) -

Rating: E

CODE FOR LEASING BUSINESS PREMISES -

We advise all interested parties to refer to the RICS Code for Leasing Business Premises, link available via our website.

CONTROL OF ASBESTOS REGULATIONS -

As per the Control of Asbestos Regulations 2012, the owner or tenant of the property, or anyone else who has control over it and/or responsibility for maintaining it, must comply with the regulations which may include the detection of and/or management of any asbestos or asbestos related compounds contained at the property. Maggs & Allen has not tested or inspected for Asbestos and therefore recommend all interested parties to make their own enquiries.